
Cityview by Ownit Homes
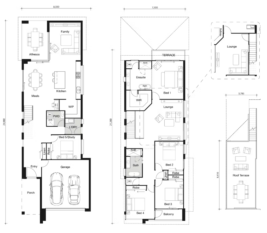
Set across three spectacular storeys, the Cityview is a magnificently designed home devoted to relaxed family living.
The expansive open plan layout forms the heart of this family home with glass sliding doors opening onto the outdoor entertaining area, creating the perfect fusion between indoor and outdoor living.
Cleverly designed for a narrow block, the Cityview feels spacious and open thanks to an abundance of natural light. As well as a luxurious master bedroom complete with walk-in robe and ensuite, this home features a private children’s wing that includes an additional lounge area, three spacious bedrooms and a main bathroom.
The Cityview takes maximum advantage of a narrow lot with our optional Roof Terrace™. This innovative extension provides a unique additional entertaining hub without having to compromise on backyard or land size.
5