Claremont by Ownit Homes

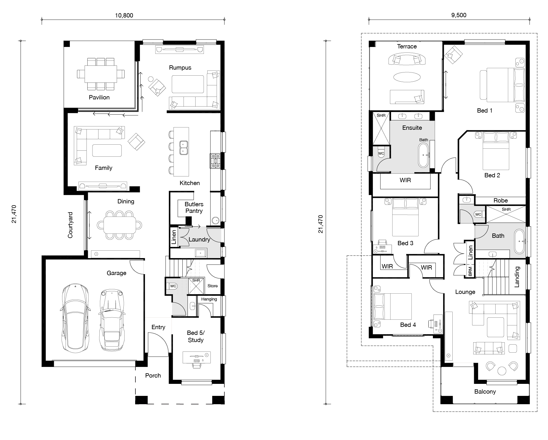
Ideal for families, the Claremont boasts five bedrooms, three bathrooms, three living areas and two outdoor living areas. Combining luxury and practicality for day to day living, the Claremont really is a dream family home.

Influenced by a luxury presidential suite, the master bedroom features a large ensuite and walk-in robe and flows out on to an adjoining terrace making it the ultimate parents’ retreat. The front wing of the upper level includes three additional bedrooms, a main bathroom with separate WC and vanity and an additional lounge area with balcony.

Downstairs the kitchen is the heart of the home and is surrounded by family, meals and separate rumpus room giving everyone plenty of space to relax and unwind.


Floor-plan options for Claremont

Claremont
Bed 5
Bath 3
Living 3
Car 2
Builder: Ownit Homes
Home Design: Claremont
Building Type: Double Storey
Floor Area: 388m2
House Width: 10.8m
House Length: 21.47m
Min Block Width: 12.5m
Claremont by Ownit Homes