Horizon by Ownit Homes

This streamlined, open plan design is perfect for families, balancing lifestyle and function

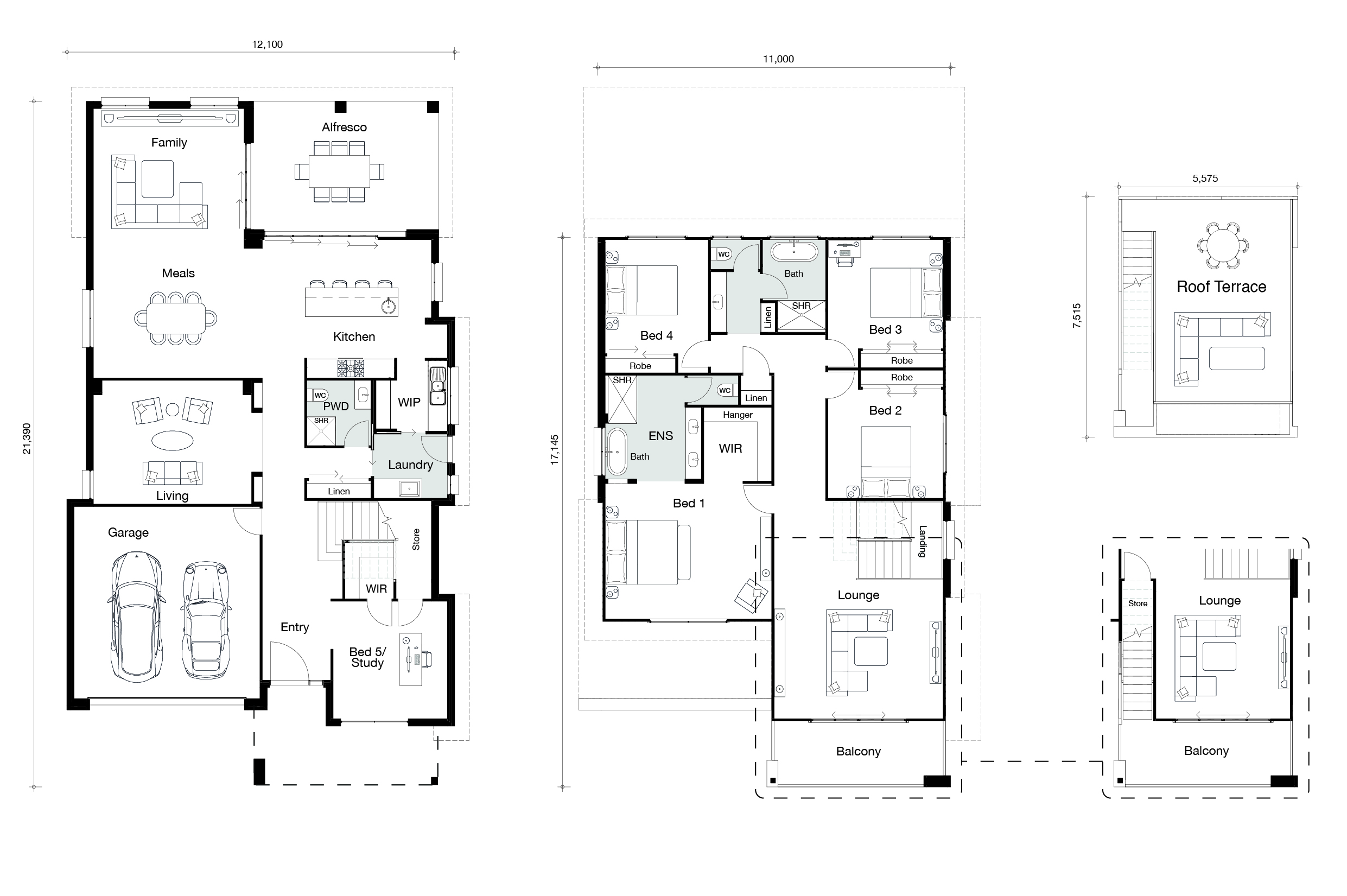
The Horizon brings the outside in, with seamless sliding glass doors opening the light-filled meals, kitchen and family areas on to the outdoor alfresco. A separate living area offers an inner sanctuary for entertainment and relaxation, as well as a study or fifth bedroom option at the front of the house.

The upper floor of this family haven includes a lounge area, master bedroom complete with ensuite and walk-in robe and three additional bedrooms serviced by a large main bathroom with separate washcloth, shower and vanity.

The Horizon home comes with the option to add our unique Roof Terrace™, creating a third floor and external entertainment area. With five bedrooms, three internal living areas and three external entertaining options, the Horizon is ideal for today’s modern family lifestyle.


Floor-plan options for Horizon

Horizon
Bed 5
Bath 3
Living 3
Car 2
Builder: Ownit Homes
Home Design: Horizon
Building Type: Double Storey
Floor Area: 419m2
House Width: 12.1m
House Length: 21.3913m
Horizon by Ownit Homes