Milan by Ownit Homes

The clever Milan design packs a huge punch for a narrow lot home! The creative use of space maximises living areas for an impressive family home that flaunts both style and functionality.

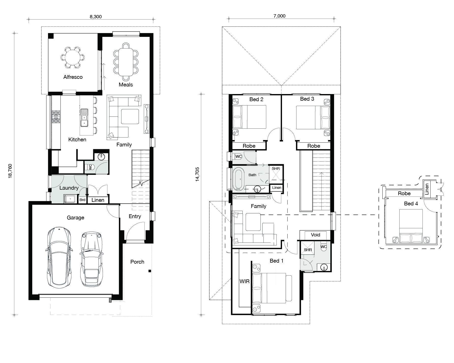
The Milan features open plan living downstairs with the gallery style kitchen positioned perfectly to be the centre of all entertainment. Opening onto the alfresco, the meals and family area are equipped with a powder room and plenty of accessible storage.

The upper floor includes the master bedroom with ensuite and walk in wardrobe plus two bedrooms that are serviced by a main bathroom and separate washcloth. This design also encompasses an additional living area upstairs that overlooks the staircase and two voids or alternatively, the option is available to change the design to suit a larger family by having a fourth bedroom.


Floor-plan options for Milan

Milan
Bed 3
Bath 2.5
Living 2
Car 2
Builder: Ownit Homes
Home Design: Milan
Building Type: Double Storey
Floor Area: 229m2
House Width: 8.3m
House Length: 18.76m
Min Block Width: 10m
Milan by Ownit Homes