Panorama by Ownit Homes

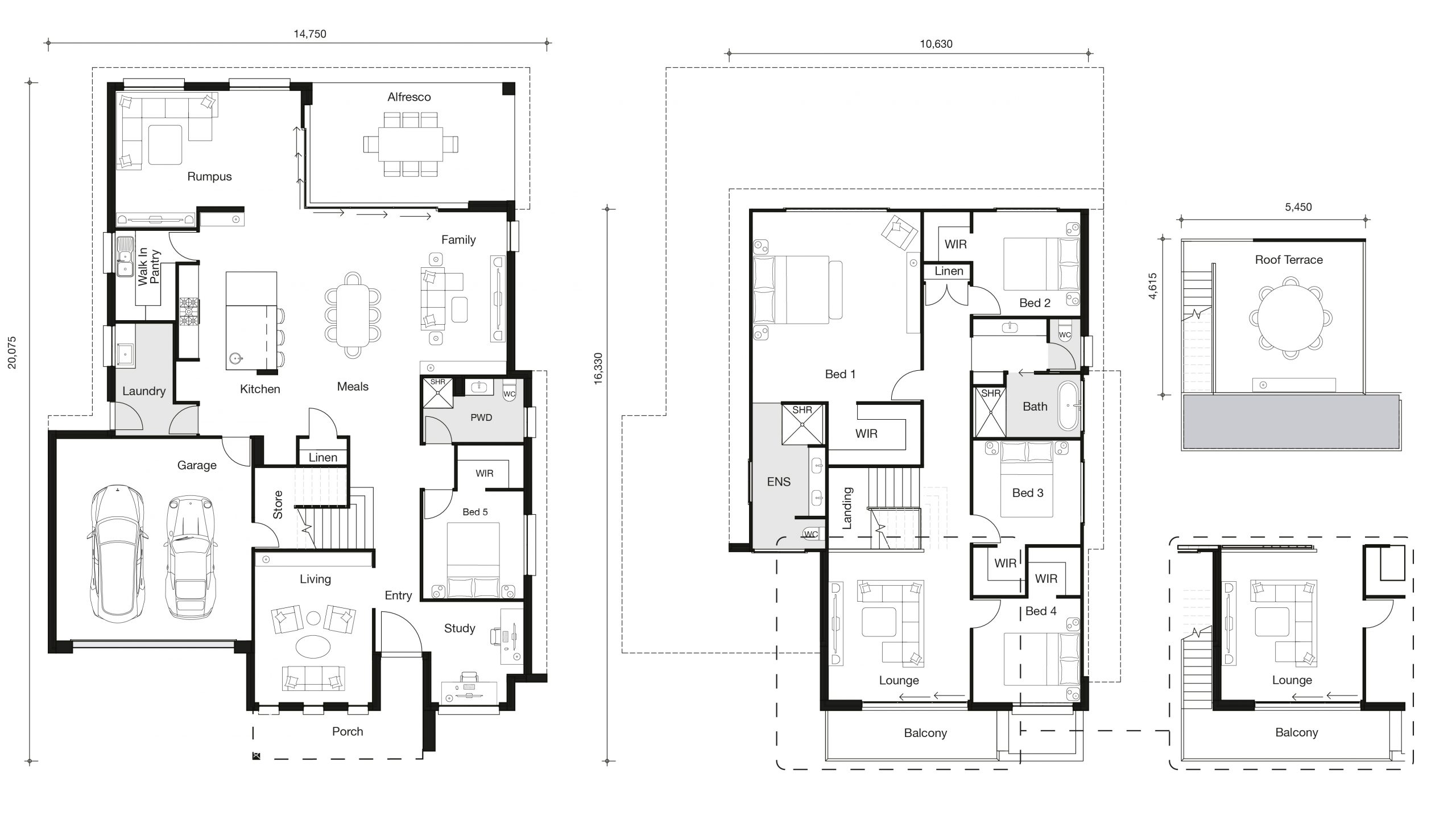
Suited for wider blocks of land, the Panorama is an impressive three storey home featuring our innovative Roof Terrace™ to make the most of Queensland’s tropical climate and our passion for outdoor entertaining.

The perfect home for year-round entertaining, this design features an open plan family, meals and kitchen area that flows on to an alfresco area via concealed stacked doors, blurring the lines between indoors and out.

On the upper level, the master bedroom in the Panorama feels luxurious and spacious. Over five metres wide it includes a roomy and hidden walk in robe along with a private adjoining ensuite.

The large bedrooms, each complete with a walk-in wardrobe, are serviced by a lounge area and superbly functional main bathroom with separate vanity and washcloth for practical living.


Floor-plan options for Panorama

Panorama
Bed 5
Bath 3
Living 4
Car 2
Builder: Ownit Homes
Home Design: Panorama
Building Type: Double Storey
Floor Area: 414m2
House Width: 14.3m
House Length: 20.08m
Min Block Width: 18m
Panorama by Ownit Homes