Parkview Entertainer by Ownit Homes

Radiating sophistication and a touch of glam, the Parkview Entertainer was designed with narrow blocks in mind.

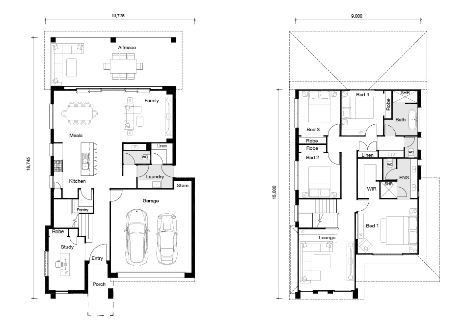
Opening the front door and past the wide open staircase, you will be relaxed by the glimpse of the alfresco beyond the open plan living areas. Be delighted by the seven-meter stacker doors opening from the kitchen, meals and family rooms onto the alfresco, bringing the outside in and ensuring outdoor living is easily and beautifully accessible.

The spacious living continues upstairs, featuring a large lounge area and master suite with walk-in robe and ensuite. The children’s wing of the upper floor includes an additional three bedrooms which are serviced by a generous main bathroom with separate washcloth, vanity and shower. Downstairs, you will find a large study which can be turned into another living area or fifth bedroom.

With two living areas, four bedrooms plus study, two and a half bathrooms and an abundance of practical storage spaces, this design is very much a favourite among families.


Floor-plan options for Parkview Entertainer

Parkview Entertainer
Bed 5
Bath 2.5
Living 2
Car 2
Builder: Ownit Homes
Building Type: Double Storey
Floor Area: 289m2
House Width: 10.73m
House Length: 18.75m
Min Block Width: 12.5m
Parkview Entertainer by Ownit Homes