Skyview by Ownit Homes

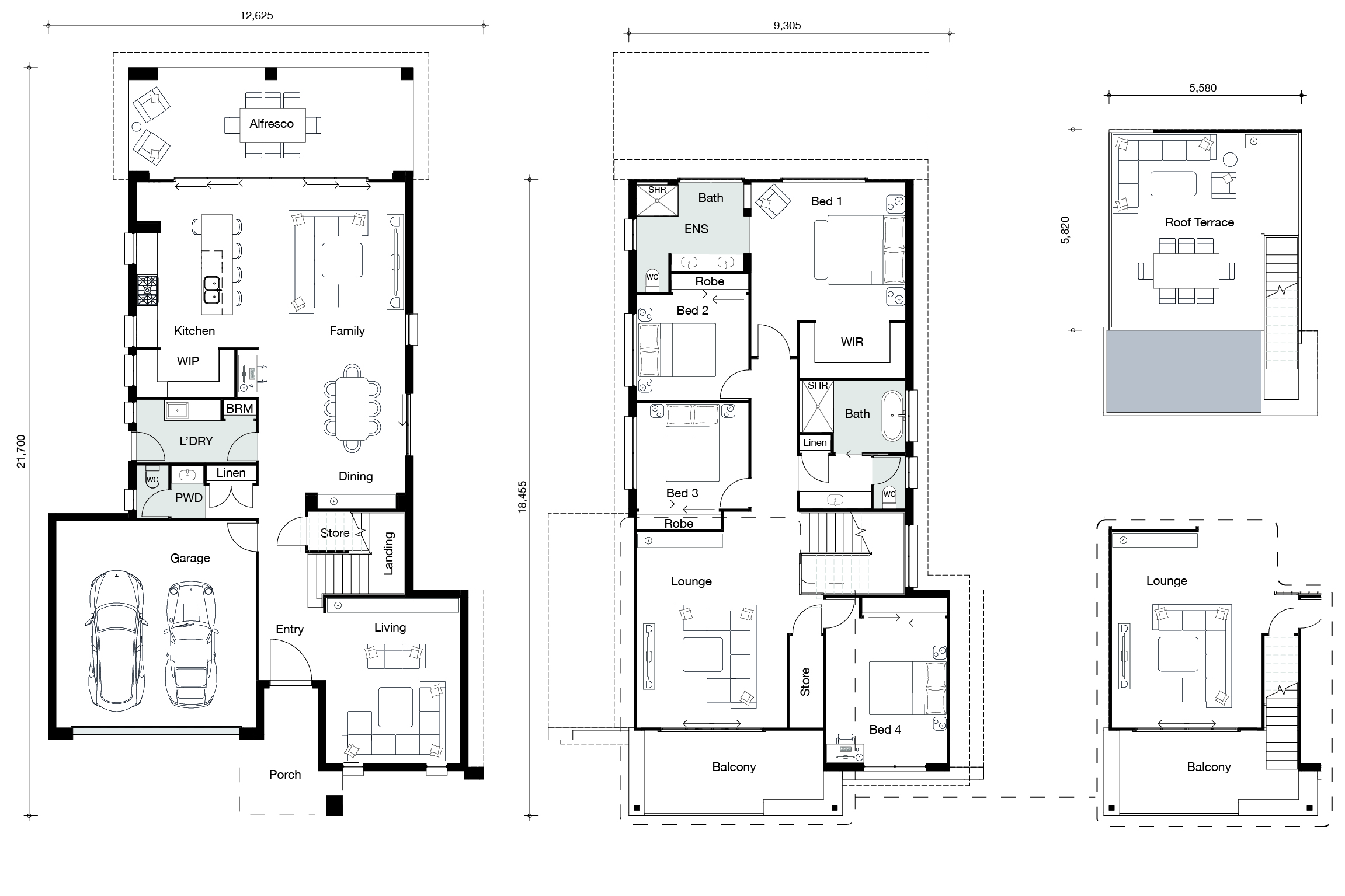
The Skyview is an impressive two storey home that literally takes family living to the next level with the signature Ownit Homes Roof Terrace.

The Roof Terrace has been carefully designed to maximise the entertainment value of the house with a third outdoor living area – meaning you don’t have to compromise on backyard space or land size.

Downstairs this home features a generous, light filled open plan living and dining space that flows through to a large alfresco area – just one of three external living areas that blur the lines between indoors and out in this dream family home.

Up the timber mono-stringer staircase, the upper level features a luxury parents retreat with generous shower, double vanity and walk-in robe. Moving through the expansive open-plan living area there are three large bedrooms and a bathroom with separate toilet, shower and vanity for harmonious family living.


Floor-plan options for Skyview

Skyview
Bed 4
Bath 2.5
Living 3
Car 2
Builder: Ownit Homes
Home Design: Skyview
Building Type: Double Storey
Floor Area: 392m2
House Width: 12.18m
House Length: 21.7m
Min Block Width: 14m
Skyview by Ownit Homes