Sorrento Vogue by Ownit Homes

The Sorrento Vogue showcases easy family living accentuated by luxurious design. Offering a thoughtful mix of open spaces with private living and study options, this home gives everyone their own space to create and unwind.

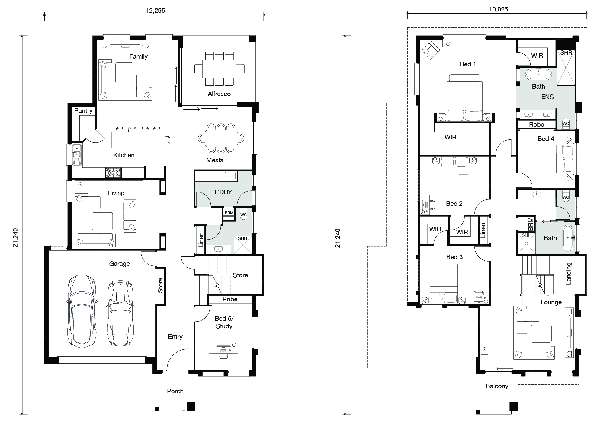
The kitchen is the hub of this home, surrounded by a dining and family area opening up via hidden stacker doors to a spacious alfresco area ensuring the effortless flow between indoor and outdoor living. An additional bathroom, separate living room and study (or fifth bedroom) complete the lower floor.

Upstairs you will find an additional four bedrooms including a master suite complete with ensuite and his and hers walk-in wardrobe, main bathroom and another living space leading on to the front balcony.

With five bedrooms, three bathrooms, three large living areas along with plenty of storage, the Sorrento is a perfect fit for growing Queensland families.


Floor-plan options for Sorrento Vogue

Sorrento Vogue
Bed 5
Bath 3
Living 3
Car 2
Builder: Ownit Homes
Home Design: Sorrento Vogue
Building Type: Double Storey
Floor Area: 373m2
House Width: 12.3m
House Length: 21.24m
Min Block Width: 14m
Sorrento Vogue by Ownit Homes