Lavante by Perry Homes

DISPLAY HOME

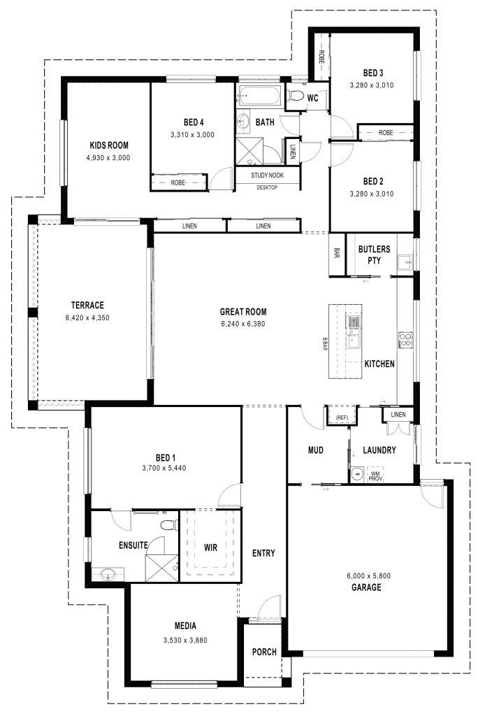
Introducing the Lavante – an expansive home design perfect for a corner block or acreage property. To the front of the home is the media room or formal lounge room along with the master suite. The master bedroom will certainly inspire you. Generous in size, the master suite boasts a large ensuite and walk-in robe.

Designed for a busy family, the Lavante has its very own mud room – separate to the laundry. The ideal place to set school bags down and leave muddy shoes! The open plan living, kitchen and dining room – the great room – is perfect for an entertainer and opens out to a large undercover area.

The zoned kids’ accommodation is to the rear of the home, with the larger plan having a dedicated kid’s activity or rumpus room.


Floor-plan options for Lavante

Lavante 31
Bed 4
Bath 2
Living 3
Car 2
Builder: Perry Homes
Home Design: Lavante
Building Type: Single Storey
Floor Area: 295.39m2
House Width: 15.5m
House Length: 24.04m

Display Homes & 3D Tours for Lavante by Perry Homes

Loading...
Lavante by Perry Homes