Shorehouse by Plunkett Homes

DISPLAY HOME

The Shorehouse embodies a fresh take on the classic coastal beach house by combining contemporary coastal and Hamptons-inspired design. The design elements complement each other in a harmonious blend of sharp lines, a crisp colour palette, texture and shadow.
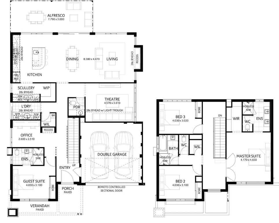
With four-bedrooms and three-bathrooms this double storey home has been thoughtfully designed for a large family. Those who love to entertain will appreciate the open-plan living and dining area, home theatre, gourmet kitchen, scullery, and enormous alfresco space. With abundant natural light, the inside and outside blend seamlessly, creating an ideal atmosphere for hosting gatherings. The kitchen is a haven for home chefs, offering ample bench space and storage for all your kitchen essentials to create culinary masterpieces. Positioned at the front of the house, the fourth bedroom comes with its own ensuite, making it an ideal space for guests or older children who value their privacy.
The Shorehouse is a refreshing and delightful experience, much like taking a dip in the ocean on a sunny day.

 


Floor-plan options for Shorehouse

Shorehouse
Bed 4
Bath 3
Living 2
Car 2
Home Design: Shorehouse
Building Type: Double Storey
Floor Area: 315m2
House Width: 15m
Min Block Width: 15m

Display Homes & 3D Tours for Shorehouse by Plunkett Homes

Loading...

More House and Land Packages by Plunkett Homes (Home Builder)

Bed  4 Bath  2 Car  2
Suburb: West Pinjarra WA 6208
Land Size: 10,032.00m²
Floor Area: 262sq
At Plunkett Homes we have a history of building Farmhouse home designs that are comfortable, homely and welcoming. Our modern farmhouse designs include Federation , Hampton , Contemporary and Mid-Century style homes. We know you'll love the warmth and character built into each and every home design. Enjoy the relaxation, comfort, and serenity of our truly amazing country style homes.

Build this 4 bedroom 2 bathroom home in Greenlands Meadows, this estate offers access to major regional towns via Forrest Highway. To the north access Mandurah, Rockingham and Perth, and to the south enjoy connection to the beachside towns of Bunbury, Busselton and Margaret River.

Inclusions:
• FOR A LIMITED TIME ONLY the Chef's Kitchen Upgrade plus ......
• Choice of four stylish elevations
• Modern 970mm wide entry door*
• 20mm Essastone benchtops to kitchen
• Luxury Westinghouse 900mm kitchen appliances
• Ducted reverse cycle air-conditioning
• Internal Wall painting
• Builder standard range of floor tiling
• Builders standard range of carpet
• Builders standard range of window treatments
• Double bowl overmount kitchen sink with gooseneck mixer
• Soft close doors and drawers throughout
• All cabinet work throughout your home is custom made to measure
• Laminated cabinetry with inset trough to laundry
• 300mm x 300mm ceramic floor tiles & 300mm x 300mm or 400mm x 200mm ceramic wall tiles to wet areas
• Hobless showers with framed pivot screens to ensuite and bathroom
• Choice of black or chrome mixer taps in kitchen, bathroom and laundry
• Bypass sliding robes to minor bedrooms
• R5 ceiling insulation with cavity wall insulation as required
Price: $825,700
Bed  4 Bath  2 Car  2
Suburb: West Pinjarra WA 6208
Land Size: 10,123.00m²
Floor Area: 350sq
Greenlands Meadows offers access to major regional towns via Forrest Highway. To the north access Mandurah, Rockingham and Perth, and to the south enjoy connection to the beachside towns of Bunbury, Busselton and Margaret River.

Pinjarra town centre only a 7 min drive away offers residents easy local shopping and recreational options and only 83 km south of Perth via the recently upgraded Kwinana Freeway.

The Ranch is a 350m2, Federation-style farmhouse design with country living in mind. Spending time with the family is easy with a cinematic home theatre, spacious activity space and the extensive open plan living, dining, and kitchen with bookend sliding doors that opens onto the alfresco area. The four well-appointed bedrooms all feature spacious walk-in robes and finally, the master suite features a deep walk-in robe and spacious ensuite

Large 10,123m2 block of land, rural fencing with 4800mm wide gate all included with your land purchase

Many Farmhouse designs to choose from.

Inclusions:

• Modern 970mm wide entry door*
• 20mm Essastone benchtops to kitchen
• Luxury Westinghouse 900mm kitchen appliances
• Double bowl overmount kitchen sink with gooseneck mixer
• Soft close doors and drawers throughout
• All cabinet work throughout your home is custom made to measure
• Laminated cabinetry with inset trough to laundry
• 300mm x 300mm ceramic floor tiles & 300mm x 300mm or 400mm x 200mm ceramic wall tiles to wet areas
• Hobless showers with framed pivot screens to ensuite and bathroom
• Choice of black or chrome mixer taps in kitchen, bathroom and laundry
• Bypass sliding robes to minor bedrooms
• R5 ceiling insulation with cavity wall insulation as required
• All site cleans, bins and concrete pumps costs are included (subject to site conditions)
Price: $870,000
Shorehouse by Plunkett Homes