Sovereign by Practical Homes

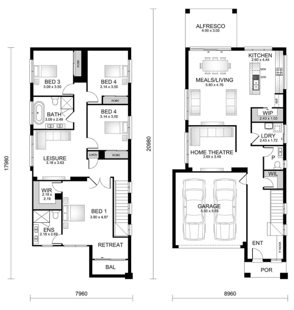
The Sovereign Display is the perfect family home! Four comfortable sized bedrooms, the Main including double vanity to your ensuite, large Walk in Robe, plus a comfortable retreat. Walk in Linen, Walk in Pantry, Home Theatre, IT Nook, upstairs leisure and beautiful kitchen and living space that extends to your alfresco for the perfect entertainment space!
 


Floor-plan options for Sovereign

Sovereign 30
Bed 4
Bath 3
Living 2
Car 2
Home Design: Sovereign
Building Type: Double Storey
Floor Area: 275.61m2
House Width: 8.96m
House Length: 20.98m
Sovereign by Practical Homes