Balmoral by Rawson Homes

DISPLAY HOME

One of our most popular modern house designs. The Balmoral is designed for stylish, easy living celebrating family life and entertaining.

  • This intelligently designed and distinctive home offers a spacious living area that opens onto an alfresco space
  • Perfect for growing families with the option to include an extra bedroom on the ground floor
  • A flexible floor plan that provides the choice a front or side entrance
     

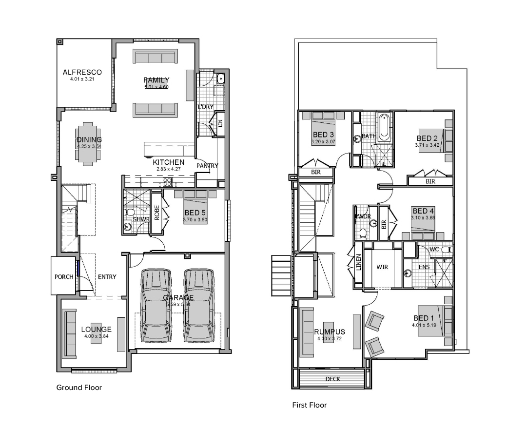
Floor-plan options for Balmoral

Balmoral 34
Bed 4
Bath 2.5
Living 2
Car 2
Home Design: Balmoral
Building Type: Double Storey
Floor Area: 312.15m2
House Width: 10.07m
House Length: 18.695m
Min Block Width: 11.97m
Min Block Depth: 27.97m

Display Homes & 3D Tours for Balmoral by Rawson Homes

Loading...

More House and Land Packages by Rawson Homes (Home Builder)

Bed  4 Bath  2 Car  2
Suburb: Caddens NSW 2747
Land Size: 285.50m²
Floor Area: 305.95m²
Stamp Duty Rebate | Fixed Price | Own Your Land Now, Pay For Your Home Later
OWN YOUR LAND NOW, PAY FOR YOUR HOME LATER
Secure your land now and lock in your future!
Buy and settle on your land today, then start building with just a 5% deposit – and nothing more to pay until it’s complete!
With build-ready land and DA approved designs, say goodbye to waiting and build with confidence today.

- Less up-front savings needed
- More time for you to save
- No progress payments on your build
- Lock in your price today

*Offer limited to eligible lots*

YOUR PLACE TO CALL HOME
Rawson Homes at Caddens Hill Quarter presents an inspired collection of homes, brilliantly located in the most enviable pocket of Caddens. Connected to everything, this estate offers the perfect blend of suburban living with inner city convenience.

INSPIRED DESIGNS
Created to cater to individuals and families who desire the perfect balance between space, style and a strong sense of community, our inspired collection of homes offer considered, architecturally designed residences designed to foster connectivity. Planned to encourage a harmonious connection within the streetscape, each home features thoughtful details and elevated inclusions with a choice of colour schemes, where every detail enhances the liveability and lifestyle on offer.

FINISHED FRONT TO BACK - LANDSCAPING INCLUDED
Each home comes complete with landscaping, enhancing both the front and rear of the property.

This includes:
- Lush green lawns
- A stylish letterbox
- Clothesline in rear yard
- Full height fencing
- A footpath leading to the front door
- Driveway for easy access

LIVE LARGE AS STANDARD - LIFESTYLE INCLUSIONS
This beautiful home comes equipped with a range of lifestyle inclusions for comfort and convenience:
- Ducted air conditioning for ideal climate control
- 2,600mm high ceilings on the ground floor (subject to design) for a spacious feel
- Built-in robes for ample storage
- Roller blinds throughout (excluding wet areas and laundry)

The gourmet kitchen is designed with practical finishes and quality appliances:
- 20mm stone benchtops for a stylish touch
- 900mm SMEG appliances including oven, cooktop and rangehood
- Soft-close drawers and doors for ease of use

Each bathroom and powder room is finished with attention to detail, offering:
- 20mm stone benchtops for a clean look
- A freestanding bath in the main bathroom for relaxation (subject to design)
- Soft-close doors for quiet use (not applicable to semi-recessed cupboards)

AN ENVIABLE LOCATION AN ASPIRATIONAL LIFESTYLE
Designed to foster a vibrant sense of community, Caddens Hill Quarter has been cleverly planned to offer an aspirational lifestyle in an advantageous position surrounded by lifestyle amenity.

EVERYTHING YOU NEED, RIGHT AT YOUR DOORSTEP
Nestled in one of Caddens' most desirable locations, Caddens Hill Quarter offers a perfect urban convenience. The Blue Mountains provide a stunning backdrop for Caddens Hill Quarter, set in an idyllic landscape near Caddens Corner's shopping and dining. Local schools and the University of Western Sydney are only a few minutes away.

A HUB OF CONVENIENCE
- Caddens Corner Located right across the road, this vibrant shopping centre features:
- Retail space, including Woolworths and specialty stores
- Dining precinct at Table Lane, with cafés and restaurants
- Westfield Penrith Just 7km away, providing access to major retail brands, department stores, and entertainment options

SURROUNDED BY QUALITY SCHOOLING
- Primary Schools Claremont Meadows Public School, Kingswood Public School
- High Schools Kingswood High School, St Dominic's College
- Higher Education The University of Western Sydney and Nepean TAFE are just minutes away, ensuring top-tier learning opportunities close to home

WELL CONNECTED TO EVERYTHING
- M4 Motorway provides quick access to Sydney CBD and Penrith
- Penrith CBD just 7.5km away
- Parramatta CBD located 29km away
- Sydney CBD approximately 50km
- Easy access to Kingswood and Werrington Train Stations
- Future Orchard Hills Metro Station to be a key addition to the area's growing transport network
- Western Sydney International Airport will be just 16km away, making national and international travel highly convenient

LEADING MEDICAL SERVICES NEARBY
- Nepean Hospital A major hospital offering comprehensive medical care
- Caddens Corner Medical Services Includes a medical centre, pharmacy, pathology services, acupuncture clinic, and dentist


STAMP DUTY REBATE - THE TIME IS NOW!
For a limited time, we'll cover the stamp duty when you purchase this stunning new home. This exclusive offer won't last long - contact us today before it's gone!
T&Cs apply, limited to split contract packages.

FIXED PRICE, NO SURPRISES
Enjoy peace of mind with a fixed price - know exactly what you’re paying upfront, with no hidden costs or surprises along the way.

DISCLAIMER:
Photographs, artist impressions and other pictures in this flyer are for illustrative purposes only and may show fixtures, fittings or finishes which are not supplied by Rawson Homes, or which are only available in some Rawson Homes designs or when selected as inclusions above the standard inclusions for a particular design. This may include landscaping and outdoor items, floor coverings, doors, furniture, kitchen, bathroom, light fittings, electrical fittings and decorative items, which are shown as examples only. Please refer to your Tender for specific details of the inclusions and exclusions. Please speak to a Rawson Homes Consultant to discuss detailed home pricing for different designs and inclusions.
Price: $1,293,152
Bed  3 Bath  2 Car  1
Suburb: Dubbo NSW 2830
Land Size: 384.30m²
Floor Area: 187.89m²
READY BUILT BY RAWSON HOMES

With construction fully complete, you can enjoy your brand-new home sooner than you thought - secure yours today and get ready to settle in!
• Full turnkey home with landscaping and driveway
• Fixed price with no additional or unexpected costs
• Secure with only a 5% deposit
• Built by a reputable builder with over 45 years’ experience
• Peace of mind with warranties and maintenance period included
• All homes independently assessed for quality

MODERN COMFORT MEETS FAMILY LIVING

This expansive home blends contemporary style with laid-back comfort. Crafted to effortlessly accommodate family life and gatherings, you’ll appreciate the open-plan kitchen that seamlessly connects with the spacious living and dining rooms. These extend effortlessly to the outdoor alfresco, perfect for hosting a BBQ or relaxing with a book. Each well-sized bedroom comes with a built-in wardrobe, with the master suite providing a private retreat with its own ensuite and walk-in wardrobe.

Featured inclusions:
• 20mm stone benchtops to kitchen and bathrooms
• 900mm kitchen appliances
• Ducted air conditioning
• Solar system
• Driveway
• Landscaping

THE BEST ADDRESS IN DUBBO’S MOST PRESTIGIOUS NEW COMMUNITY

This home is part of an exclusive collection of 21 architecturally designed homes built by Rawson Homes, nestled at the serene southern end of Dubbo’s most prestigious master-planned community - Southlakes Estate.
Offering the rare luxury of riverfront living, direct access to lush green spaces and a communal BBQ area, all within the security of a private gated enclave, these homes offer a perfect balance of nature, lifestyle, and quality — all just minutes from the town centre, schools, and essential amenities.

PERFECTLY POSITIONED FOR EVERYDAY LIVING

Education
• Insight Early Learning Southlakes: 1.1km
• St John’s Primary School: 3.4km
• Dubbo South Public School: 4.3km
• Saint Laurence’s Primary School: 4.7km
• St John’s College: 3.0km
• Macquarie Anglican Grammar School: 9.5km
• Central West Leadership Academy: 5.7km
• TAFE NSW Myall Street: 6.4km

Healthcare
• Dubbo Family Doctors: 3.6km
• Dubbo Grove Pharmacy: 3.7km
• ARC Physiotherapy: 4.5km
• Specsavers Dubbo East: 4.0km
• Dubbo Base Hospital: 6.3km

Retail & Recreation
• Orana Mall Shopping Centre: 4.0km
• IGA: 4.8km
• Bunnings: 5.7km
• ALDI: 6.2km
• South Dubbo Dog Park: 3.5km
• South Dubbo Oval: 3.5km
• Wahroonga Park: 4.7km
• Dubbo Regional Botanic Garden: 5.1km
• Dubbo Showground: 6.0km
• Dubbo RSL: 6.5km

Transport
• Argyle Avenue Bus Stop: 500m
• Dubbo Train Station: 6.7km
• Dubbo Regional Airport: 12.2km

DISCLAIMER:

Photographs, artist impressions and other pictures in this flyer are for illustrative purposes only and may show fixtures, fittings or finishes which are not supplied by Rawson Homes, or which are only available in some Rawson Homes designs or when selected as inclusions above the standard inclusions for a particular design. This may include landscaping and outdoor items, floor coverings, doors, furniture, kitchen, bathroom, light fittings, electrical fittings and decorative items, which are shown as examples only. Please refer to your Tender for specific details of the inclusions and exclusions. Please speak to a Rawson Homes Consultant to discuss detailed home pricing for different designs and inclusions.
Price: $660,000
Balmoral by Rawson Homes