Ellsley by Rawson Homes

DISPLAY HOME

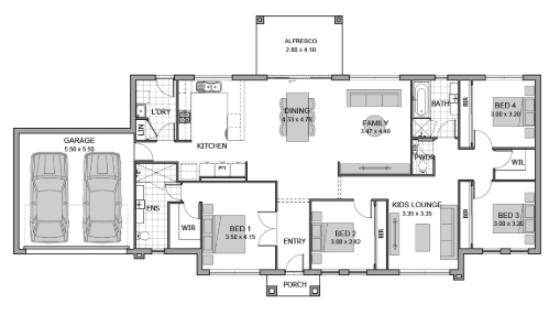
Designed to maximise the space of a wide lot, the Ellsley offers 4 bedrooms and a huge, open plan living/dining area. The ultimate family home, this floorplan includes everything you could want in a spacious, inviting space - with room to grow.

  • 4 bedroom plan
  • 2 bathrooms
  • 24.3 SQ
  • Double garage
  • Suits wide lot size from 28m x 22m

Floor-plan options for Ellsley

Ellsley 24
Bed 4
Bath 2
Living 2
Car 2
Home Design: Ellsley
Building Type: Single Storey
Floor Area: 229.47m2
House Width: 25.12m
House Length: 13.3m
Min Block Width: 27.1m
Min Block Depth: 21.8m

Display Homes & 3D Tours for Ellsley by Rawson Homes

Loading...

More House and Land Packages by Rawson Homes (Home Builder)

Bed  4 Bath  2 Car  2
Suburb: Caddens NSW 2747
Land Size: 252.50m²
Floor Area: 302.92m²
$1,236,972 | Bonus $10K Upgrades
A Spacious Family Home in a Connected Caddens Community

RAWSON AT CADDENS HILL QUARTER
Discover generous, light-filled living in an easy-to-maintain setting, perfectly placed within Caddens Hill Quarter. Located directly opposite the Caddens Corner shopping centre and just a short stroll from University of Western Sydney and TAFE NSW campuses, you'll be part of a thoughtfully planned estate designed for convenience, connection and a relaxed everyday lifestyle. Each home comes crafted by Rawson Homes, giving you the confidence of quality construction supported by a Lifetime Structural Guarantee.

With this highly sought-after estate now down to its final two homes, don't miss one of the last chances to secure a spacious, well-designed home in a welcoming community.

DOUBLE THE DIFFERENCE
Take advantage of exclusive savings on the final remaining homes - for a limited time, enjoy a $10K Home Rebate* plus a $10K Upgrade Voucher*. With limited homes remaining, now is the time to secure exceptional value and create a home that feels truly yours.

*Terms & conditions apply, see rawsoncommunities.com.au for details

BIG ON SPACE, LOW ON MAINTENACE
Designed to make everyday living feel easy, this spacious multi-level home brings together generous living zones, thoughtful storage and a beautifully connected indoor–outdoor flow. The ground floor is the heart of the home, with an open-plan kitchen, dining and living area that extends to both a welcoming balcony and a private rear alfresco — perfect for relaxed meals, entertaining or simply enjoying the breeze.

Upstairs, four well-proportioned bedrooms create a peaceful retreat for the whole family, with the main suite offering a walk-in robe and ensuite, while the remaining rooms are supported by a central bathroom and additional storage. The lower ground level includes a double garage, entry foyer and extra storage, giving you the practicality and flexibility modern life demands. This is a home designed for comfort, connection and low-maintenance living in a thriving community.

Enjoy a range of hand-picked inclusions:
- 20mm stone benchtops to kitchen and bathrooms
- 900mm SMEG appliances including oven, cooktop and rangehood
- Soft-close drawers and doors
- Freestanding bath in the main bathroom (subject to design)
- Built-in robes in all bedrooms
- Ducted air conditioning
- Landscaping, including manicured lawns, stylish letterbox, clothesline in backyard & full height fencing
- Driveway

CADDENS - WHERE CONVENIENCE MEETS COMMUNITY
Caddens blends convenience with community, offering a lifestyle where daily errands are quick, commutes are simple, and weekends are full of possibility. On Penrith's doorstep, it’s a thriving, well-connected suburb that feels welcoming from day one.

GREAT SCHOOLS ON YOUR DOORSTEP
Enjoy access to an impressive mix of early learning, primary, secondary and tertiary education options — all within easy reach.
• Western Sydney University – Penrith Campus – approx. 1.6 km
• TAFE NSW – Kingswood/Nepean – approx. 1.6 km
• Kingswood High School – approx. 1.8 km
• Montgrove College (K–12) – approx. 1.2 km

CONVENIENTLY CONNECTED
You'll love quick access to major roads and public transport, making everyday travel simple and stress-free.
• M4 Motorway access – approx. 2.7 km
• Kingswood Train Station – approx. 3.0 km
• Penrith Train Station – approx. 5 km
• Short walk to local bus routes with direct links to Penrith and St Marys

HEALTHCARE WITHIN MINUTES
With leading hospitals, clinics and medical services close by, you can feel confident knowing quality care is never far away.
• Nepean Hospital – approx. 3.3 km
• Nepean Private Hospital – approx. 3.5 km
• Local GP, pharmacy and pathology services at Caddens Corner – walking distance
• Specialist clinics and allied-health services in nearby suburbs – approx. 5–7 km

EVERYDAY ESSENTIALS MADE EASY
From daily conveniences to major retail destinations, you’re perfectly placed for effortless shopping and dining.
• Caddens Corner Shopping Centre – directly across the road
• Woolworths Caddens – across the road
• Local cafés and dining options – across the road
• Westfield Penrith – approx. 4.5 km
• Nepean Village Shopping Centre – approx. 5 km

PLENTY OF WAYS TO UNWIND
With parks, walking tracks and the natural beauty of the Penrith region close by, outdoor enjoyment comes naturally.
• Caddens Oval – walking distance
• Local neighbourhood parks & playgrounds – throughout Caddens
• Sydney International Regatta Centre – approx. 7 km
• Penrith Whitewater Stadium – approx. 7 km
• Great River Walk / Nepean River – approx. 6 km

A COMMUNITY THAT WELCOMES EVERYONE
You'll be surrounded by local clubs and groups designed to bring people together and support active lifestyles.
• Penrith Panthers (NRL) & Panthers Precinct – approx. 5 km
• Local football, netball & cricket clubs – short drive
• Penrith Swimming Centre – approx. 5–6 km
• Local community centres and youth programs – nearby suburbs

DISCLAIMER
Photographs, artist impressions and other pictures in this listing are for illustrative purposes only and may show fixtures, fittings or finishes which are not supplied by Rawson Homes, or which are only available in some Rawson Homes designs or when selected as inclusions above the standard inclusions for a particular design. This may include landscaping and outdoor items, floor coverings, doors, furniture, kitchen, bathroom, light fittings, electrical fittings and decorative items, which are shown as examples only. Please refer to your Tender for specific details of the inclusions and exclusions. Please speak to a Rawson Homes Consultant to discuss detailed home pricing for different designs and inclusions. Promotional discount applied to advertised price.
Price: $1,236,972
Ellsley by Rawson Homes