
Nara by Rawson Homes
DISPLAY HOME
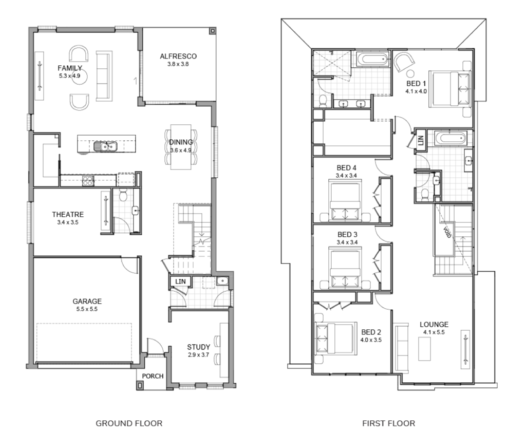
The Nara 35 has elevated street appeal and is a masterpiece of contemporary design. The feature curve elements of the façade flow into the interior by way of an amazing floating curve staircase, curve ceiling treatments and feature walls, as well as bathroom elements. The ground floor includes a Study, Home Theatre room and spacious family and dining zones integrating with the covered alfresco. On the first floor, the essential upstairs casual lounge is to the front of the home opening onto the balcony, and across from this open space are the secondary bedrooms. Bedroom 1 spans the entire width of the rear of the first floor and boasts a generous walk in robe and ensuite.
Display Homes & 3D Tours for Nara by Rawson Homes
Loading...
4
