Selby by Rawson Homes

DISPLAY HOME

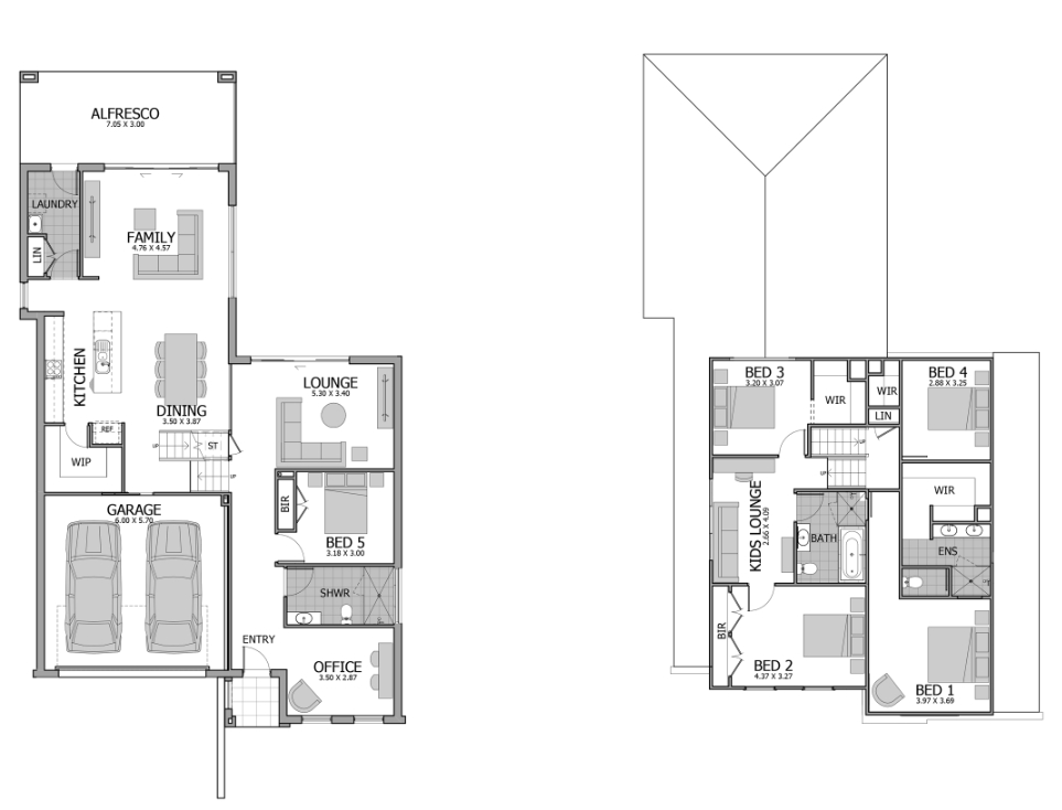
The Selby is designed for challenging side to side sloping blocks. It caters for large families featuring generous open plan living on multiple levels.

The entry level provides for quieter family living with a fifth guest bedroom. The next level affords spacious living, dining and kitchen areas opening onto the grand alfresco.

A further two levels consist of four private bedroom accommodation which complete this innovative and versatile family home.


Floor-plan options for Selby

Selby 34
Bed 5
Bath 3
Car 2
Home Design: Selby
Building Type: Double Storey
Floor Area: 315.87m2
House Length: 30m
Min Block Width: 15m

Display Homes & 3D Tours for Selby by Rawson Homes

Loading...

More House and Land Packages by Rawson Homes (Home Builder)

Bed  4 Bath  2 Car  2
Suburb: Caddens NSW 2747
Land Size: 285.50m²
Floor Area: 305.95m²
Stamp Duty Rebate | Fixed Price | Own Your Land Now, Pay For Your Home Later
OWN YOUR LAND NOW, PAY FOR YOUR HOME LATER
Secure your land now and lock in your future!
Buy and settle on your land today, then start building with just a 5% deposit – and nothing more to pay until it’s complete!
With build-ready land and DA approved designs, say goodbye to waiting and build with confidence today.

- Less up-front savings needed
- More time for you to save
- No progress payments on your build
- Lock in your price today

*Offer limited to eligible lots*

YOUR PLACE TO CALL HOME
Rawson Homes at Caddens Hill Quarter presents an inspired collection of homes, brilliantly located in the most enviable pocket of Caddens. Connected to everything, this estate offers the perfect blend of suburban living with inner city convenience.

INSPIRED DESIGNS
Created to cater to individuals and families who desire the perfect balance between space, style and a strong sense of community, our inspired collection of homes offer considered, architecturally designed residences designed to foster connectivity. Planned to encourage a harmonious connection within the streetscape, each home features thoughtful details and elevated inclusions with a choice of colour schemes, where every detail enhances the liveability and lifestyle on offer.

FINISHED FRONT TO BACK - LANDSCAPING INCLUDED
Each home comes complete with landscaping, enhancing both the front and rear of the property.

This includes:
- Lush green lawns
- A stylish letterbox
- Clothesline in rear yard
- Full height fencing
- A footpath leading to the front door
- Driveway for easy access

LIVE LARGE AS STANDARD - LIFESTYLE INCLUSIONS
This beautiful home comes equipped with a range of lifestyle inclusions for comfort and convenience:
- Ducted air conditioning for ideal climate control
- 2,600mm high ceilings on the ground floor (subject to design) for a spacious feel
- Built-in robes for ample storage
- Roller blinds throughout (excluding wet areas and laundry)

The gourmet kitchen is designed with practical finishes and quality appliances:
- 20mm stone benchtops for a stylish touch
- 900mm SMEG appliances including oven, cooktop and rangehood
- Soft-close drawers and doors for ease of use

Each bathroom and powder room is finished with attention to detail, offering:
- 20mm stone benchtops for a clean look
- A freestanding bath in the main bathroom for relaxation (subject to design)
- Soft-close doors for quiet use (not applicable to semi-recessed cupboards)

AN ENVIABLE LOCATION AN ASPIRATIONAL LIFESTYLE
Designed to foster a vibrant sense of community, Caddens Hill Quarter has been cleverly planned to offer an aspirational lifestyle in an advantageous position surrounded by lifestyle amenity.

EVERYTHING YOU NEED, RIGHT AT YOUR DOORSTEP
Nestled in one of Caddens' most desirable locations, Caddens Hill Quarter offers a perfect urban convenience. The Blue Mountains provide a stunning backdrop for Caddens Hill Quarter, set in an idyllic landscape near Caddens Corner's shopping and dining. Local schools and the University of Western Sydney are only a few minutes away.

A HUB OF CONVENIENCE
- Caddens Corner Located right across the road, this vibrant shopping centre features:
- Retail space, including Woolworths and specialty stores
- Dining precinct at Table Lane, with cafés and restaurants
- Westfield Penrith Just 7km away, providing access to major retail brands, department stores, and entertainment options

SURROUNDED BY QUALITY SCHOOLING
- Primary Schools Claremont Meadows Public School, Kingswood Public School
- High Schools Kingswood High School, St Dominic's College
- Higher Education The University of Western Sydney and Nepean TAFE are just minutes away, ensuring top-tier learning opportunities close to home

WELL CONNECTED TO EVERYTHING
- M4 Motorway provides quick access to Sydney CBD and Penrith
- Penrith CBD just 7.5km away
- Parramatta CBD located 29km away
- Sydney CBD approximately 50km
- Easy access to Kingswood and Werrington Train Stations
- Future Orchard Hills Metro Station to be a key addition to the area's growing transport network
- Western Sydney International Airport will be just 16km away, making national and international travel highly convenient

LEADING MEDICAL SERVICES NEARBY
- Nepean Hospital A major hospital offering comprehensive medical care
- Caddens Corner Medical Services Includes a medical centre, pharmacy, pathology services, acupuncture clinic, and dentist


STAMP DUTY REBATE - THE TIME IS NOW!
For a limited time, we'll cover the stamp duty when you purchase this stunning new home. This exclusive offer won't last long - contact us today before it's gone!
T&Cs apply, limited to split contract packages.

FIXED PRICE, NO SURPRISES
Enjoy peace of mind with a fixed price - know exactly what you’re paying upfront, with no hidden costs or surprises along the way.

DISCLAIMER:
Photographs, artist impressions and other pictures in this flyer are for illustrative purposes only and may show fixtures, fittings or finishes which are not supplied by Rawson Homes, or which are only available in some Rawson Homes designs or when selected as inclusions above the standard inclusions for a particular design. This may include landscaping and outdoor items, floor coverings, doors, furniture, kitchen, bathroom, light fittings, electrical fittings and decorative items, which are shown as examples only. Please refer to your Tender for specific details of the inclusions and exclusions. Please speak to a Rawson Homes Consultant to discuss detailed home pricing for different designs and inclusions.
Price: $1,293,152
Bed  4 Bath  2 Car  2
Suburb: Caddens NSW 2747
Land Size: 252.50m²
Floor Area: 302.92m²
Spacious Three Storey Living Steps From Western Sydney University
YOUR PLACE TO CALL HOME
Rawson Homes at Caddens Hill Quarter presents an inspired collection of homes, brilliantly located in the most enviable pocket of Caddens. Connected to everything, this estate offers the perfect blend of suburban living with inner city convenience.

INSPIRED DESIGNS
Created to cater to individuals and families who desire the perfect balance between space, style and a strong sense of community, our inspired collection of homes offer considered, architecturally designed residences designed to foster connectivity. Planned to encourage a harmonious connection within the streetscape, each home features thoughtful details and elevated inclusions with a choice of colour schemes, where every detail enhances the liveability and lifestyle on offer.

FINISHED FRONT TO BACK - LANDSCAPING INCLUDED
Each home comes complete with landscaping, enhancing both the front and rear of the property.

This includes:
- Lush green lawns
- A stylish letterbox
- Clothesline in rear yard
- Full height fencing
- A footpath leading to the front door
- Driveway for easy access

LIVE LARGE AS STANDARD - LIFESTYLE INCLUSIONS
This beautiful home comes equipped with a range of lifestyle inclusions for comfort and convenience:
- Ducted air conditioning for ideal climate control
- 2,600mm high ceilings on the ground floor (subject to design) for a spacious feel
- Built-in robes for ample storage
- Roller blinds throughout (excluding wet areas and laundry)

The gourmet kitchen is designed with practical finishes and quality appliances:
- 20mm stone benchtops for a stylish touch
- 900mm SMEG appliances including oven, cooktop and rangehood
- Soft-close drawers and doors for ease of use

Each bathroom and powder room is finished with attention to detail, offering:
- 20mm stone benchtops for a clean look
- A freestanding bath in the main bathroom for relaxation (subject to design)
- Soft-close doors for quiet use (not applicable to semi-recessed cupboards)

THRICE AS NICE
They say good things comes in threes, and we couldn’t agree more. For a limited time, you can enjoy triple rewards this triple storey home! You’ll receive:

1. A $10,000 Rebate, deducted from the build contract*
2. A $10,000 Upgrade Voucher*, to apply to your choice from the existing list of eligible upgrade items
3. A Stamp Duty Rebate*

With Stages 1 & 2 sold and limited homes remaining, don’t miss your chance. This exclusive offer won’t last long – contact us today before it’s gone!

This offer is strictly limited to the first 5 purchases* of our remaining triple storey homes.

*Terms & conditions apply.

CADDENS HILL QUARTER - AN ENVIABLE LOCATION, AN ASPIRATIONAL LIFESTYLE
Designed to foster a vibrant sense of community, Caddens Hill Quarter has been cleverly planned to offer an aspirational lifestyle in an advantageous position surrounded by lifestyle amenity.

EVERYTHING YOU NEED, RIGHT AT YOUR DOORSTEP
Nestled in one of Caddens' most desirable locations, Caddens Hill Quarter offers a perfect urban convenience. The Blue Mountains provide a stunning backdrop for Caddens Hill Quarter, set in an idyllic landscape near Caddens Corner's shopping and dining. Local schools and the University of Western Sydney are only a few minutes away.

A HUB OF CONVENIENCE
- Caddens Corner Located right across the road, this vibrant shopping centre features:
- Retail space, including Woolworths and specialty stores
- Dining precinct at Table Lane, with cafés and restaurants
- Westfield Penrith Just 7km away, providing access to major retail brands, department stores, and entertainment options

SURROUNDED BY QUALITY SCHOOLING
- Primary Schools Claremont Meadows Public School, Kingswood Public School
- High Schools Kingswood High School, St Dominic's College
- Higher Education The University of Western Sydney and Nepean TAFE are just minutes away, ensuring top-tier learning opportunities close to home

WELL CONNECTED TO EVERYTHING
- M4 Motorway provides quick access to Sydney CBD and Penrith
- Penrith CBD just 7.5km away
- Parramatta CBD located 29km away
- Sydney CBD approximately 50km
- Easy access to Kingswood and Werrington Train Stations
- Future Orchard Hills Metro Station to be a key addition to the area's growing transport network
- Western Sydney International Airport will be just 16km away, making national and international travel highly convenient

LEADING MEDICAL SERVICES NEARBY
- Nepean Hospital A major hospital offering comprehensive medical care
- Caddens Corner Medical Services Includes a medical centre, pharmacy, pathology services, acupuncture clinic, and dentist

FIXED PRICE, NO SURPRISES
Enjoy peace of mind with a fixed price - know exactly what you’re paying upfront, with no hidden costs or surprises along the way.

DISCLAIMER:
Photographs, artist impressions and other pictures in this flyer are for illustrative purposes only and may show fixtures, fittings or finishes which are not supplied by Rawson Homes, or which are only available in some Rawson Homes designs or when selected as inclusions above the standard inclusions for a particular design. This may include landscaping and outdoor items, floor coverings, doors, furniture, kitchen, bathroom, light fittings, electrical fittings and decorative items, which are shown as examples only. Please refer to your Tender for specific details of the inclusions and exclusions. Please speak to a Rawson Homes Consultant to discuss detailed home pricing for different designs and inclusions.
Price: $1,236,972
Selby by Rawson Homes