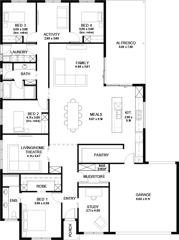
Home Designs by SA Housing Centre Emerald by SA Housing Centre HOME DESIGN Latest Pricing & Inclusions Floor-plan options for Emerald Emerald 5.0 4 2 3 2 Builder: SA Housing Centre Home Design: Emerald Building Type: Single Storey Floor Area: 292.59m2 House Width: 16m House Length: 21.46m Min Block Width: 17m Latest Pricing & Inclusions Display Homes & 3D Tours for Emerald by SA Housing Centre Loading... Emerald 5.0 By SA Housing Centre Liberty Estate - Two Wells Liberty Estate - Two Wells