Nampa Alfresco by SA Housing Centre

DISPLAY HOME

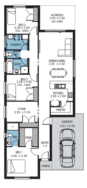
With its dedicated IT hub and alfresco area, the Nampa Alfresco is ideal for the busy family who likes to entertain


Floor-plan options for Nampa Alfresco

Nampa Alfresco
Bed 3
Bath 2
Living 2
Car 1
Home Design: Nampa Alfresco
Building Type: Single Storey
Floor Area: 162.82m2
House Width: 9.04m
House Length: 19.87m
Min Block Width: 10m

Display Homes & 3D Tours for Nampa Alfresco by SA Housing Centre

Loading...
Nampa Alfresco by SA Housing Centre