
Gadara by Simonds Homes
DISPLAY HOME
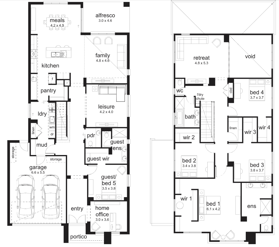
Spacious 47-square double-storey home, ideal for large or multi-generational family living.
This exceptional 47-square double-storey home is ideal for larger families and those looking for a multi-generational option. Thoughtfully designed to accommodate and enhance every stage of life, the design uses clever building techniques to achieve maximum flexibility for families and features 17 optional configurations and nine stunning facade options.
Display Homes & 3D Tours for Gadara by Simonds Homes
Loading...

5