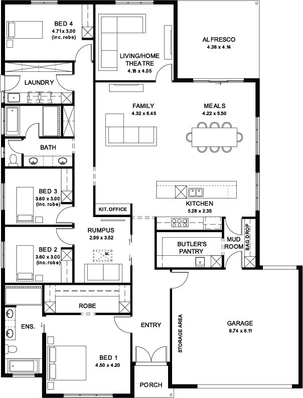
DISPLAY HOME Pura 5.0 | @ Aston Hills Estate - Mount Barker Home Designs by Statesman Homes Pura by Statesman Homes HOME DESIGN Latest Pricing & Inclusions Floor-plan options for Pura Pura 5.0 4 2 2 2 Builder: Statesman Homes Home Design: Pura Building Type: Single Storey Floor Area: 299.12m2 House Width: 16m House Length: 21.62m Min Block Width: 17m Latest Pricing & Inclusions Display Homes & 3D Tours for Pura by Statesman Homes Loading... Pura 5.0 By Statesman Homes Aston Hills Estate - Mount Barker Aston Hills Estate - Mount Barker Pura 5.0 By Statesman Homes The Entrance Estate - Angle Vale The Entrance Estate - Angle Vale More House and Land Packages by Statesman Homes (Home Builder) House & Land [Air Estate] Lot 82 Sold 3 2 2 Suburb: Strathalbyn SA 5255 Builder: Statesman Homes Land Size: 665.00m² Floor Area: 195sq Orientation: West Price: $492,000