Sunbird by Stroud Homes

DISPLAY HOME

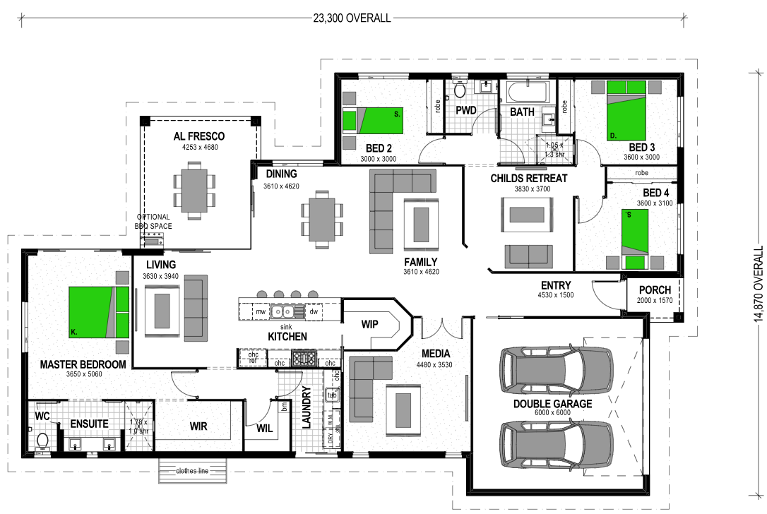
The Sunbird 280 is a thoughtfully designed home that perfectly balances functionality and style. As you enter, you’ll find a media room to your left, ideal for family movie nights or a quiet retreat. To your right, a child’s retreat serves as a central hub for three bedrooms and a bathroom, providing a dedicated space for play and relaxation.

The heart of the home features an open-plan kitchen, family, and dining area, complete with a spacious walk-in pantry.

The master bedroom, located at the rear for ultimate privacy, includes an ensuite and walk-in robe.

The practical design continues with a well-equipped laundry room, complemented by a walk-in linen closet. The alfresco area, directly accessible from the open-plan dining and living spaces, offers an inviting outdoor extension for entertaining and relaxation.


Floor-plan options for Sunbird

Sunbird 280
Bed 4
Bath 2
Car 2
Home Design: Sunbird
Building Type: Single Storey
Floor Area: 278.3m2
House Width: 14.9m
House Length: 23.3m

Display Homes & 3D Tours for Sunbird by Stroud Homes

Loading...

More House and Land Packages by Stroud Homes (Home Builder)

Bed  3 Bath  2 Car  2
Suburb: Bellingen NSW 2454
Land Size: 610.00m²
Floor Area: 180sq
Orientation: North
Est. Land Registration: Oct 2023
About the Willow 180:
The Willow 180 is designed for today's living and perfect for new housing estates. You will love entertaining in the alfresco area under the main roof of the home. Designed to make great times with family and friends even better, you'll enjoy circulating through the generous alfresco, dining and great spacious kitchen.

INCLUSIONS
-M Class Slab
-Site Works to .5M
-60m2 Broom Finished Concrete Driveway
-Caesarstone benchtops: kitchen & bathrooms
-900mm Westinghouse S/Steel, upright cooker
-900mm Westinghouse range hood, fully ducted
-Westinghouse stainless steel dishwasher
-Soft close kitchen drawers - cutlery bank
-Colorbond roof, 22 colour range
-Flyscreens and sliding screen doors
-TV antenna, clothesline and letterbox
-3 Coat Wattyl Paint System
-$7,500 Additional Piering Allowance
-$20,000 retaining wall allowance
- Water meter supplied and installed
- connection of all services to home
-LED Downlights throughout
-Bulkheads above overhead cupboards
-Gainsborough door furniture
-Built in robes in all bedrooms
-Godfrey Hirst carpet to bedrooms/media
-Tiles or Vinyl Planking to living areas
-Quality Mizu tapware
-Instant Gas Hot water system
-Multiple HIA Award Winning Builder
-Personalized interior designer service
Plus many more Fully Loaded Inclusions!

Taylors Rise Estate, Bellingen
Not to be missed, Taylors Rise Estate is soon to be registered for building. You can build your dream home in the picturesque township of Bellingen.
Taylors Rise Subdivision sits on the edge of town, where residential connectivity meets rural freedom.
Only five minutes or 2km from all amenities such as schools, shops, sporting fields and more, plus only 30 minutes to the world-famous beaches of the region and also the Coffs Harbour Airport, connecting you to many of the capital cities of Australia.
These rare and one-of-a-kind Bellingen lots enhance and embrace the natural surroundings of the mid north coast's most treasured location. These blocks are not to be missed and are selling fast.
**Note: Our House and land packages are a two contract process, so you would first need to secure the land through either Warren Weick Real Estate. Our team would the work with you to design, quote and contract the home construction.**

Lot 36:
land size:610m2
Price:$465,000
Land Agents:
Warren Weick Real Estate:
Warren Weick: 0427 552 287
Price: $869,970
Bed  3 Bath  2 Car  2
Suburb: Craignish QLD 4655
Land Size: 2,001.00m²
Floor Area: 210m²
Est. Land Registration: May 2025
Home & Land package
House & Land Package by Stroud Homes Fraser Coast

SITE COSTS
H1 Class Slab
Site Works to 2000mm

INCLUSIONS
With over 90 FULLY LOADED inclusions, your home will come packed with everything you need to move in!
Here are some of our highlight inclusions;
- 900mm stainless steel freestanding cooker
- Choice of built in 700mm rangehood OR 900mm stainless steel rangehood, entirely ducted to eave
- Stainless steel dishwasher
- Soft close to cutlery drawer
- Piering included (“P” sites excluded)
- Independent handover inspection
- Frameless mirrors standard
- Front entry door, as per brochure
- Flyscreens to all windows
- Barrier screens to all sliding doors
- Tiles to porch area
- Clothesline
- TV antenna
- Downlights to living areas, bedrooms and bathrooms
- Bulkheads above overhead cupboards

ADDITIONAL INCLUSIONS
Reticulated gas
Home Sewage Treatment Plant

ABOUT ELLIOTT 210
The Elliott 210 has a large alfresco to the front of the home, making it perfect for waterfront properties or blocks with views at the front! The Elliott 210 is packed with features, including multiple linen and storage cupboards throughout.

Central to the Elliott 210 is the kitchen with walk in pantry, family and living areas in a large open plan space, flowing out to the alfresco seamlessly with pillarless corner stacker doors. The spacious master bedroom and two additional bedrooms are at opposite ends of the home. The master features a generously sized walk in robe and ensuite.

A separate media room completes this home, providing a space for everyone!

Available in four stylish façades, this three bedroom home design has all the essentials for modern family living.

ABOUT JESSE LOVETT-HENDREY, Sales Consultant, Stroud Homes Fraser Coast
Experienced Salesman who provides his customers with an easy and smooth building experience along the Queensland coast.
Come in and check out our display home in Hervey Bay.
2 West Spring Way, Nikenbah. Open 7 days, Monday to Friday 9am-5pm and Saturday to Sunday 10am-4pm.

ABOUT STROUD HOMES
With more than 20 years of design and building experience, Stroud Homes has a proven track record of success and a strong reputation for exceptional service and superior quality. The man behind the locally owned brand is James Stroud. Stroud Homes has a great reputation as an award-winning builder. We can provide simple and cost-effective advice, from our designs or yours. How do we do it?
1. Unbeatable buying power via excellent supplier relationships
2. Commitment to continuous improvement to customer service and quality
3. Pre-pricing new homes on vacant land
Stroud Homes care about our customers and we do what we say we’re going to do. We take the time to listen and work alongside our customers every step of the way, so the end result feels just right,like home.

CONSUMER PLEASE NOTE
Consumer please note: Stroud Homes is not a real estate agent, cannot sell land and will refer you to a licensed agent to complete any land purchase. Stroud Homes has used the price (as advertised by local real estate agents) for the block of land referred to in this package. Using this advertised price allows us to helpfully provide you with a price that is more realistic because we’ve tailor fit the home to the land - considering site works, water and sewer pipe and electrical lead - in lengths and other site specific items.
Images and photographs are an example only and may have representations of fixtures and upgraded items not included in the package price or Fully Loaded Inclusions of Stroud Homes.

See Stroud Homes website for House & Land Package Terms & Conditions
Price: From $985,910
Bed  3 Bath  2 Car  2
Suburb: Craignish QLD 4655
Land Size: 2,006.00m²
Floor Area: 236m²
Est. Land Registration: May 2025
Home + Land Package
House & Land Package by Stroud Homes Fraser Coast

SITE COSTS
H1 Class Slab
Site Works to 2000mm

INCLUSIONS
With over 90 FULLY LOADED inclusions, your home will come packed with everything you need to move in!
Here are some of our highlight inclusions;
- 900mm stainless steel freestanding cooker
- Choice of built in 700mm rangehood OR 900mm stainless steel rangehood, entirely ducted to eave
- Stainless steel dishwasher
- Soft close to cutlery drawer
- Piering included (“P” sites excluded)
- Independent handover inspection
- Frameless mirrors standard
- Front entry door, as per brochure
- Flyscreens to all windows
- Barrier screens to all sliding doors
- Tiles to porch area
- Clothesline
- TV antenna
- Downlights to living areas, bedrooms and bathrooms
- Bulkheads above overhead cupboards

ADDITIONAL INCLUSIONS
Reticulated gas
Home Sewage Treatment Plant

ABOUT BILLIE 236
The Billie 236 is a stunning 4-bedroom home designed for modern living.

The spacious master bedroom features a large ensuite and walk-in robe, offering a luxurious retreat. Three additional bedrooms provide ample space for family or guests.

The heart of the home is the open plan family, dining area, and kitchen, which includes a butler’s pantry for added convenience.

For outdoor entertaining, there’s an alfresco off the dining area, while the Colonial façade option adds a charming wrap-around verandah, creating a welcoming and classic look.

ABOUT JESSE LOVETT-HENDREY, Sales Consultant, Stroud Homes Fraser Coast
Experienced Salesman who provides his customers with an easy and smooth building experience along the Queensland coast.
Come in and check out our display home in Hervey Bay.
2 West Spring Way, Nikenbah. Open 7 days, Monday to Friday 9am-5pm and Saturday to Sunday 10am-4pm.

ABOUT STROUD HOMES
With more than 20 years of design and building experience, Stroud Homes has a proven track record of success and a strong reputation for exceptional service and superior quality. The man behind the locally owned brand is James Stroud. Stroud Homes has a great reputation as an award-winning builder. We can provide simple and cost-effective advice, from our designs or yours. How do we do it?
1. Unbeatable buying power via excellent supplier relationships
2. Commitment to continuous improvement to customer service and quality
3. Pre-pricing new homes on vacant land
Stroud Homes care about our customers and we do what we say we’re going to do. We take the time to listen and work alongside our customers every step of the way, so the end result feels just right,like home.

CONSUMER PLEASE NOTE
Consumer please note: Stroud Homes is not a real estate agent, cannot sell land and will refer you to a licensed agent to complete any land purchase. Stroud Homes has used the price (as advertised by local real estate agents) for the block of land referred to in this package. Using this advertised price allows us to helpfully provide you with a price that is more realistic because we’ve tailor fit the home to the land - considering site works, water and sewer pipe and electrical lead - in lengths and other site specific items.
Images and photographs are an example only and may have representations of fixtures and upgraded items not included in the package price or Fully Loaded Inclusions of Stroud Homes.

See Stroud Homes website for House & Land Package Terms & Conditions.
Price: $1,100,815
Sunbird by Stroud Homes