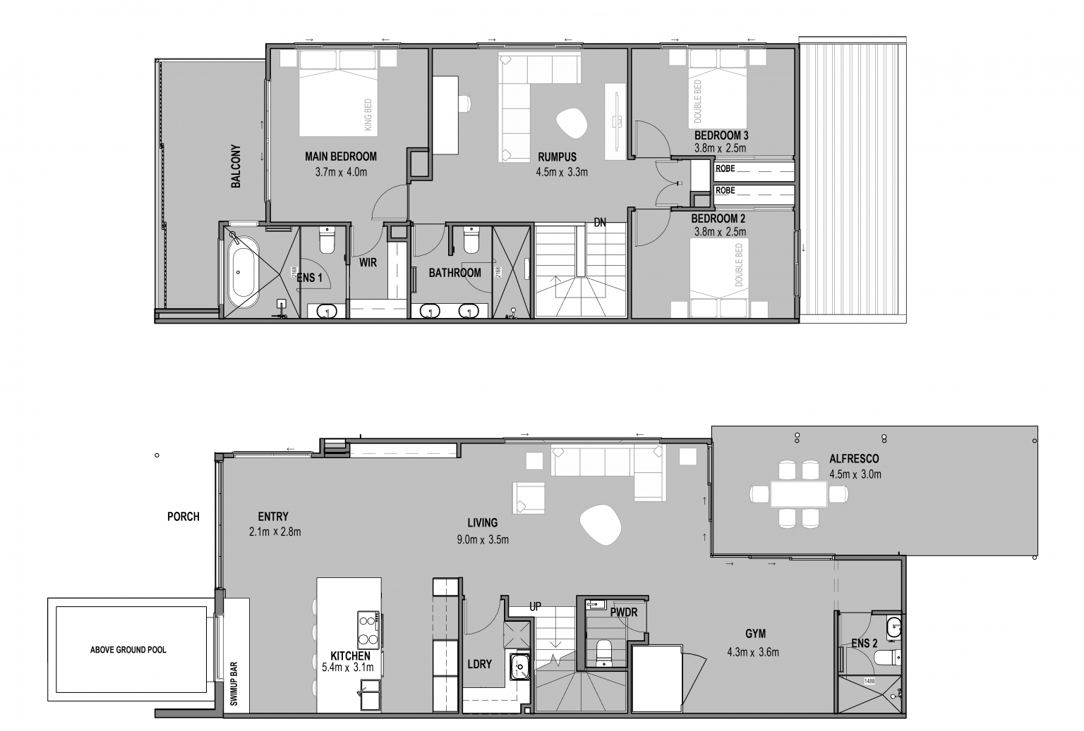
DISPLAY HOMEKeystone | @ Stockland Aura Sunshine Coast - Banya Home Designs by Thompson Sustainable Homes Keystone by Thompson Sustainable Homes HOME DESIGN DISPLAY HOME When Entertaining Is Life Latest Pricing & Inclusions Floor-plan options for Keystone Keystone 3 3.5 2 2 Builder: Thompson Sustainable Homes Home Design: Keystone Building Type: Double Storey Floor Area: 206m2 Min Block Width: 6.6m Latest Pricing & Inclusions Display Homes & 3D Tours for Keystone by Thompson Sustainable Homes Loading... Keystone By Thompson Sustainable HomesStockland Aura Sunshine Coast - Banya Stockland Aura Sunshine Coast - Banya