Nissa by Thompson Sustainable Homes

DISPLAY HOME

Inspired by Nordic simplicity

Luxurious finishes | comforting features | clean lines


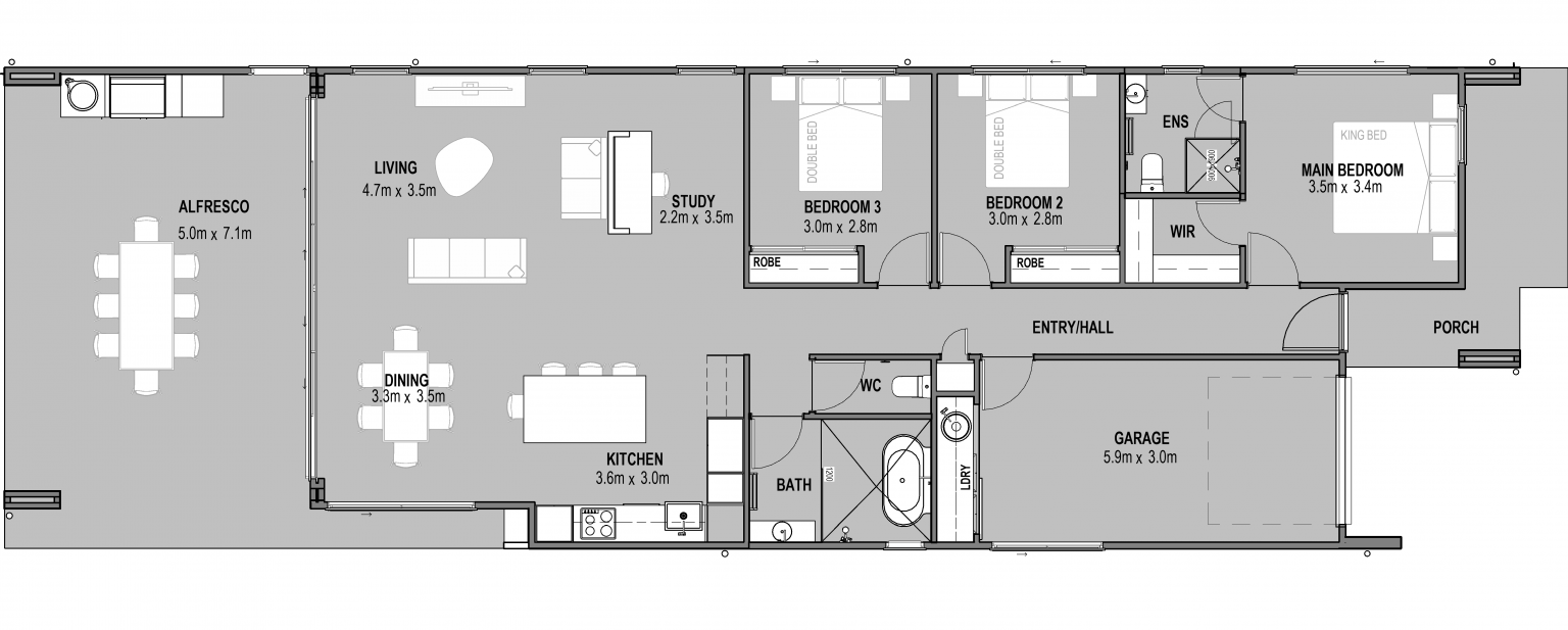
Floor-plan options for Nissa

Scandi Barn
Bed 3
Bath 2
Living 1
Car 1
Home Design: Nissa
Building Type: Single Storey
Floor Area: 186.1m2
Min Block Width: 10m

Display Homes & 3D Tours for Nissa by Thompson Sustainable Homes

Loading...
Nissa by Thompson Sustainable Homes