Brookton by Webb Brown-Neaves

DISPLAY HOME

Welcome to The Brookton, blending the charm of the Australian landscape with modern functionality to perfectly reflect the dynamism of daily family life.

Drawing inspiration from West Australian vernacular- abundant sunlight, natural timbers, stone touches, and rustic brickwork- this two-storey home emphasises warmth and natural connection. The façade features bold vertical weatherboard cladding, whilst the entry’s textural sculptured sand bricks create curiosity about what lies within.

Upon entry, the home reveals seamless transitions through natural spaces that accommodate changing lifestyles. At its heart sits the kitchen, centred around a large terracotta-clad island bench serving as both culinary workspace and social hub. White vertical cabinetry, sleek stone benchtops, integrated appliances, and a full wine wall complete the space.

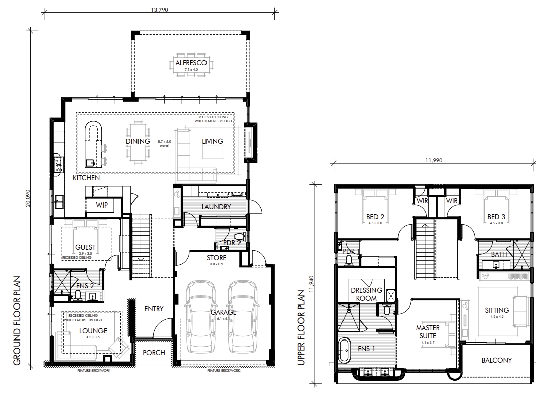
Upstairs caters to children with flexible, functional design. Bedrooms and the Master Suite are complemented by a multipurpose sitting room providing ample space for study, play, and crafts.

Throughout The Brookton, innovative design merges interior and exterior spaces at every opportunity, celebrating nature whilst creating a retreat from daily chaos.

 


Floor-plan options for Brookton

Brookton
Bed 4
Bath 3
Car 2
Home Design: Brookton
Building Type: Double Storey
Floor Area: 366.06m2
House Width: 13.79m
House Length: 20.09m
Min Block Width: 15.4m

Display Homes & 3D Tours for Brookton by Webb Brown-Neaves

Loading...
Brookton by Webb Brown-Neaves