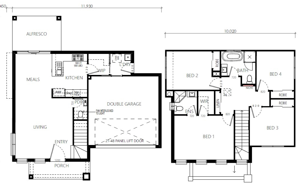
Home Designs by Winton Homes Elora by Winton Homes HOME DESIGN Latest Pricing & Inclusions Floor-plan options for Elora Elora 21 4 2.5 1 2 Builder: Winton Homes Home Design: Elora Building Type: Double Storey Floor Area: 199.62m2 House Width: 11.93m House Length: 13.41m Min Block Width: 14m Latest Pricing & Inclusions