Cornerstone by Wisdom Homes

Family living at its finest

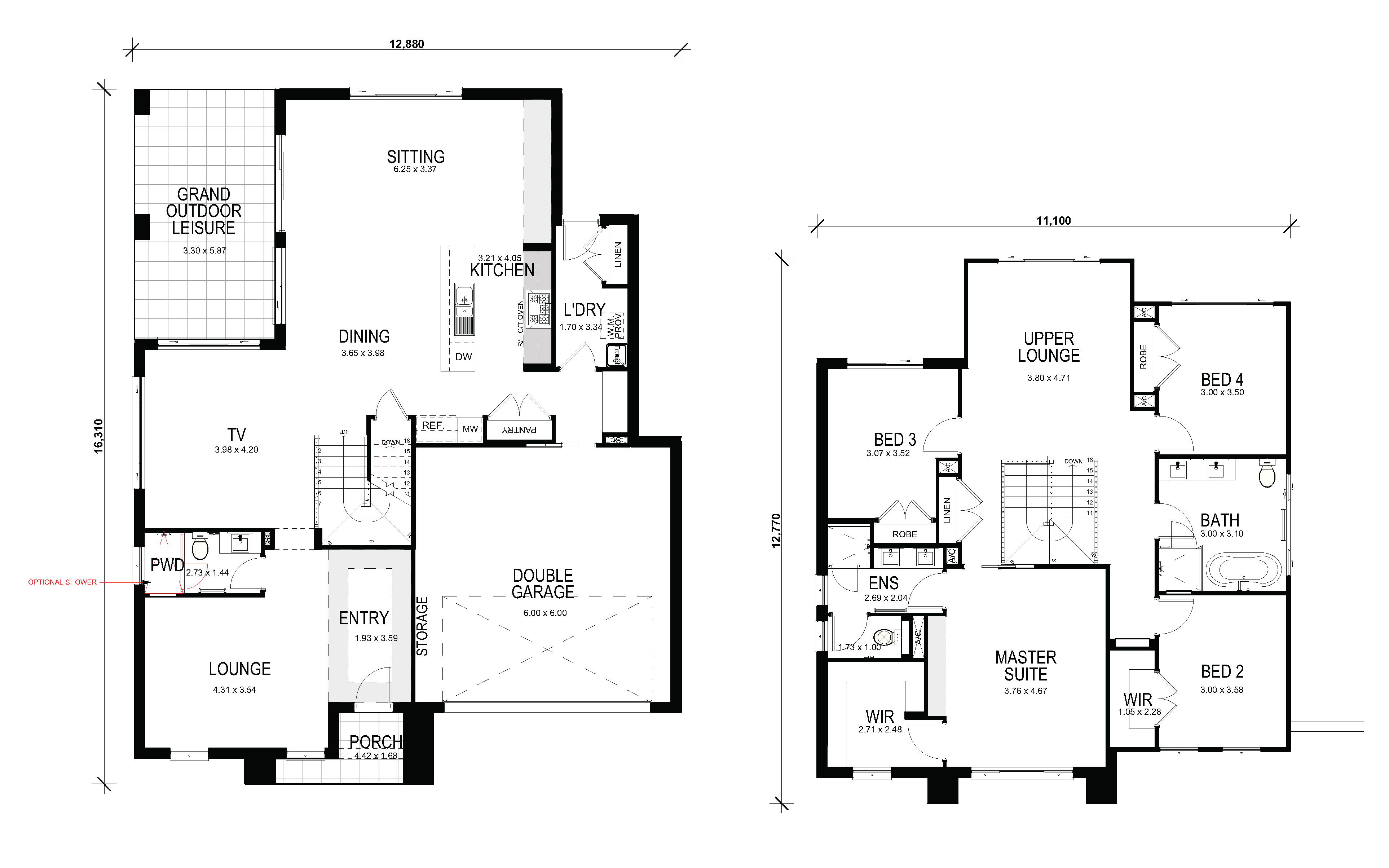
Redefining modern open-plan living, the Cornerstone is perfect for corner blocks or wide frontage lots and offers four different sized plans, each featuring a stunning central staircase and generous shared spaces.

The formal lounge or quiet home office greets you as you walk through the front entry.  As you move through the home to the informal living, dining and gourmet kitchen, you’re met with a sense of space and light from the ceiling height glass doors leading out onto the covered outdoor leisure area, perfect for entertaining all year round.

Upstairs, the relaxing vibe continues with a spacious upper lounge perfect for parents or kids to relax in. The master suite encompasses an ensuite as well as spacious wardrobes or walk-in wardrobe*. There are three further bedrooms all with built-in robes. This thoughtfully designed spacious residence fits the bill for every family.
 


Floor-plan options for Cornerstone

Cornerstone 33
Bed 4
Bath 2.5
Car 2
Home Design: Cornerstone
Building Type: Double Storey
Floor Area: 305.24m2
Cornerstone by Wisdom Homes