Washington by Wisdom Homes

DISPLAY HOME

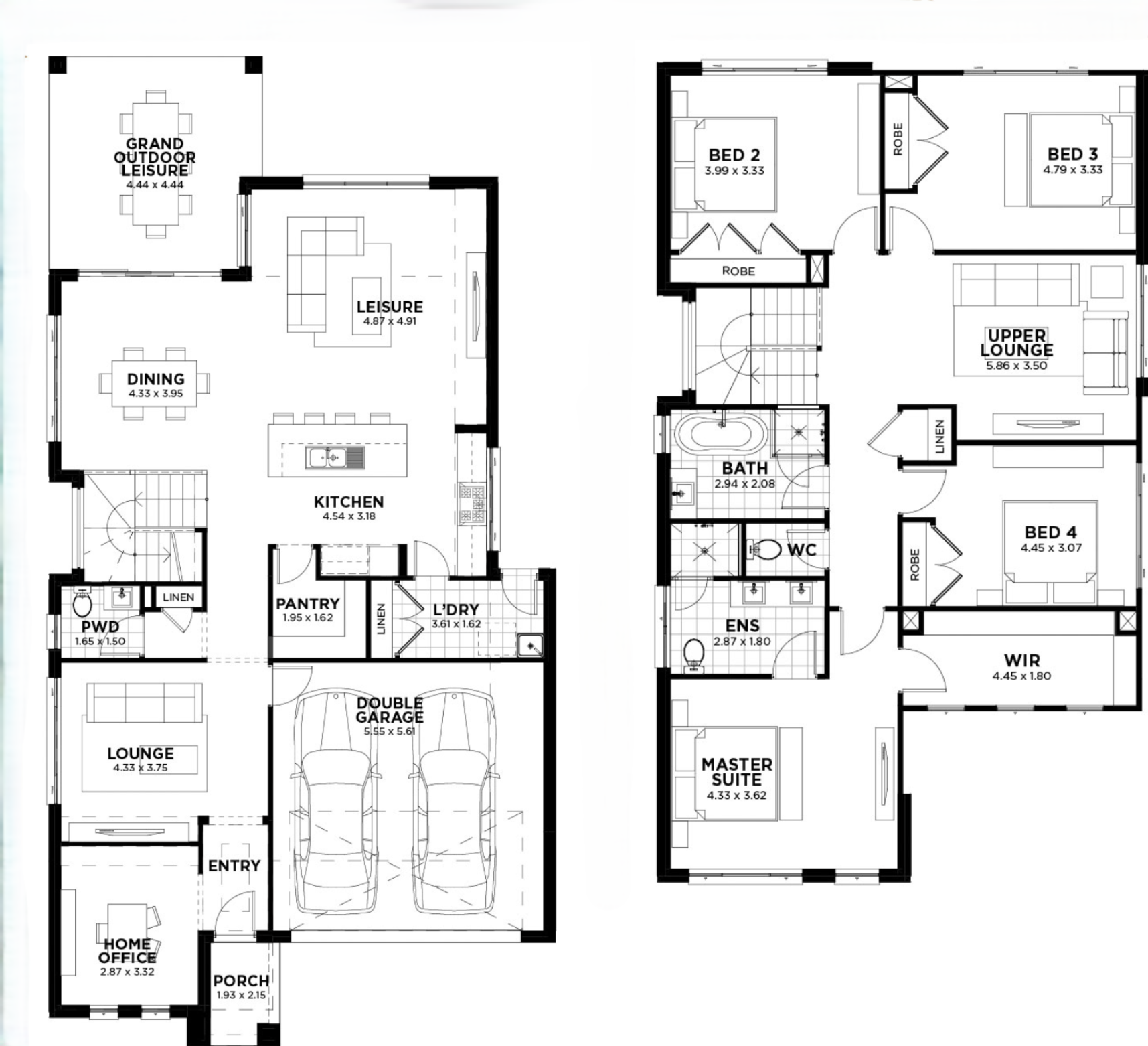
The Washington 33 is a 4-bedroom, 2.5-bathroom home that blends grandeur with functionality. Designed for modern family living, it features formal and informal spaces, a designer kitchen with butler’s pantry, and seamless indoor-outdoor flow. With multiple living zones, a dedicated home office, and a luxurious master suite upstairs, this spacious design caters to every lifestyle and stage of family life.

 


Floor-plan options for Washington

Washington 33
Bed 4
Bath 2.5
Car 2
Home Design: Washington
Building Type: Double Storey
Floor Area: 305.56m2
House Width: 10.55m
House Length: 20.63m

Display Homes & 3D Tours for Washington by Wisdom Homes

Loading...
Washington by Wisdom Homes