Soho by Zoom Constructions

DISPLAY HOME

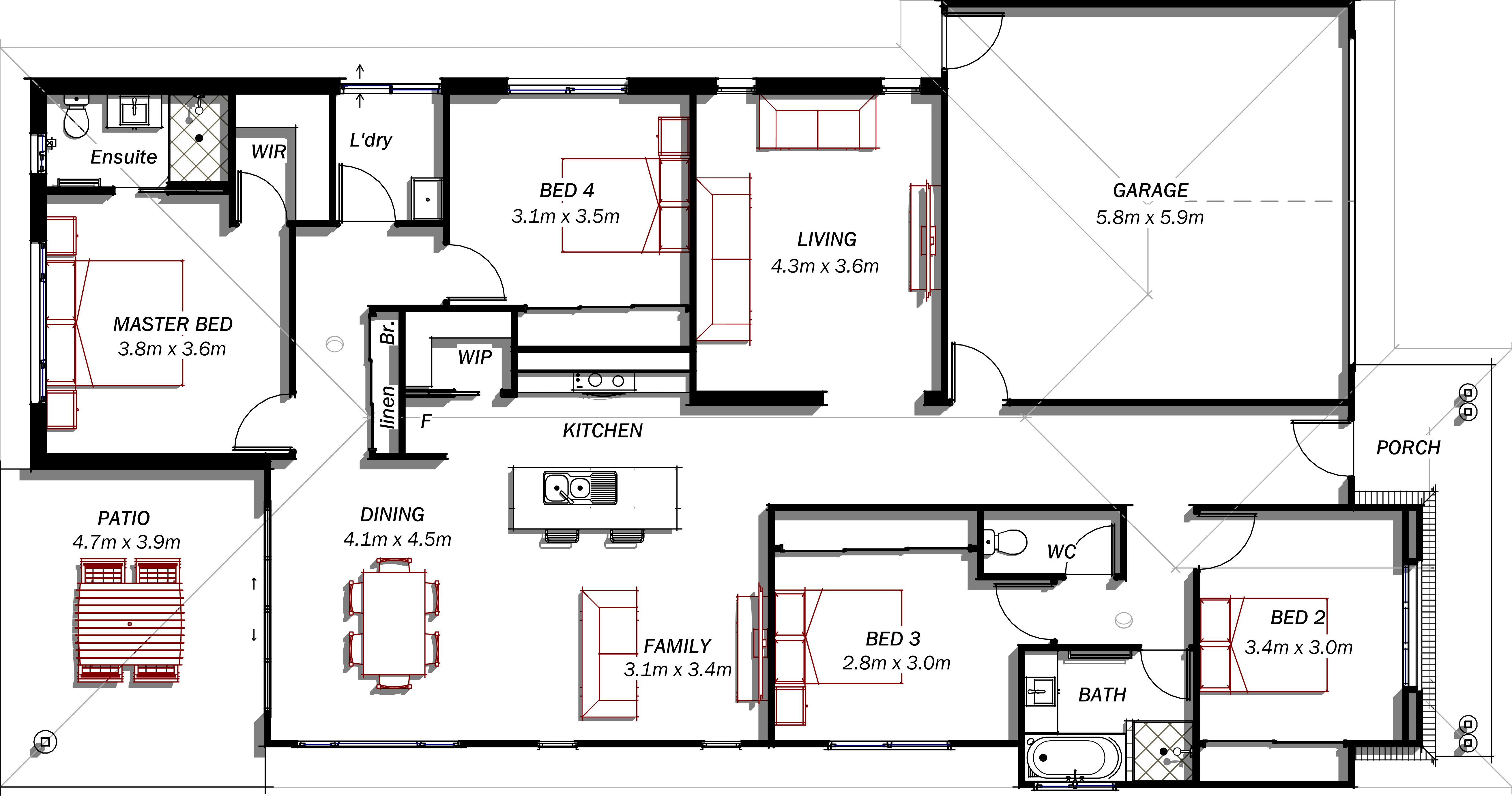
‘The Soho’ boasts a raked ceiling through the family living area and stylish kitchen creating a spacious feel. With four bedrooms, two separate living areas, and a double lock up garage, there’s room for all.


Floor-plan options for Soho

Soho
Bed 4
Bath 2
Living 1
Car 2
Home Design: Soho
Building Type: Single Storey
Floor Area: 214m2
House Width: 12m
House Length: 21m

Display Homes & 3D Tours for Soho by Zoom Constructions

Loading...
Soho by Zoom Constructions