Campbell Hart - Campbelltown Logo

Lot 213: Lismore 22 @ Campbell & Hart - Campbelltown NSW 2560

Inclusions
. Ridge Facade
. Lifetime Structural Guarantee
. Hybrid steel frame
· Induction cooktop
· 20mm stone kitchen benchtop
. Laminated overhead cupboards with bulkheads.
. Soft close drawers and doors to kitchen and bathrooms
· Flyscreens to opening windows

· Floor coverings
. Downlights throughout home
. 2600mm ceiling height to ground floor
. Fully ducted Air Conditioning
· Double glazed windows
. 6.6kW Solar
· Driveway
Domaine Homes
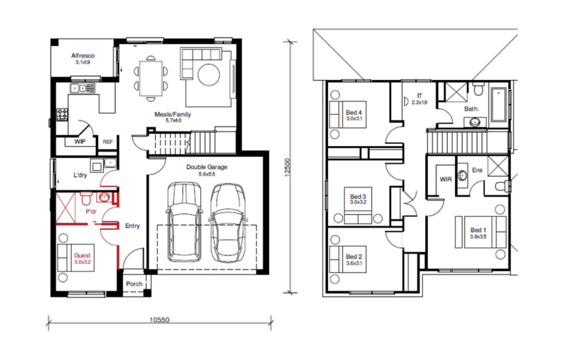
Lot 213: Lismore 22 Available
Bed  5 Bath  3 Car  2
Home Design: Lismore 22
Land Size: 301.00m²
Frontage: 12.54m
Orientation: North
Price: $1,155,200

Development Info of Campbell & Hart - Campbelltown

Total new homes 129
Area size 35.16 hectares
Growth Region Sydney South West Growth Areas
City council Campbelltown City Council - NSW
Developer New Horizon Properties
Project marketer RPM Group
Creative agency Delivery Creative Services
Distance to Sydney Airport - 38 km west Sydney CBD - 42 km south-west

Location & Map for Campbell & Hart - Campbelltown

Loading...

Visit Display Homes near Campbell & Hart - Campbelltown


More House and Land Packages in Campbell & Hart - Campbelltown


More House and Land Packages by Domaine Homes (Home Builder)

Bed  4 Bath  2 Car  2
Suburb: Elderslie NSW 2570
Land Size: 446.00m²
Est. Land Registration: Oct 2026
*$35K OFF YOUR HOME + MORE
This limited collection of just 30 lots enjoys an elevated position with views towards the Blue Mountains. A short walk from excellent schools and child care, bushland, parks and recreational amenities, it’s the ideal community for active, growing families.

Make your home in a well-established neighbourhood, close to shops, dining and services in Narellan Town Centre and Camden’s heritage high street. Discover the best of the Macarthur region.

Land Sizes: Ranging from 375sqm - 605sqm.

Features of Ridgehaven Estate
• Quality design and construction.
• Close to shopping, recreation, and amenities.
• Flexible floor plans to suit growing families and diverse lifestyles.

Packages: house and land packages, no hidden costs.
• Quality floor coverings throughout
• Window coverings throughout
• Ducted Air Conditioning
• Fixed Site Costs
• 7* Basix

Campbell Property Group’s Commitment:
• Focused on making homeownership a reality for Australian families.
• Creating communities centered around lifestyle and future growth.
• Dedicated to a stress-free, enjoyable home buying experience.

*Terms and Conditions apply. Images for illustrative purposes only. Land value included in the package. E&OE. Domaine Homes reserves the right to change the price without notice. Domaine Homes (NSW) Pty Ltd. ABN 19 080 788 969 BL No. 91387C. Prices based on February 2026 Price List.
Price: $1,244,000
Bed  4 Bath  2 Car  2
Suburb: Elderslie NSW 2570
Land Size: 446.00m²
Est. Land Registration: Oct 2026
*$35K OFF YOUR HOME + MORE
This limited collection of just 30 lots enjoys an elevated position with views towards the Blue Mountains. A short walk from excellent schools and child care, bushland, parks and recreational amenities, it’s the ideal community for active, growing families.

Make your home in a well-established neighbourhood, close to shops, dining and services in Narellan Town Centre and Camden’s heritage high street. Discover the best of the Macarthur region.

Land Sizes: Ranging from 375sqm - 605sqm.

Features of Ridgehaven Estate
• Quality design and construction.
• Close to shopping, recreation, and amenities.
• Flexible floor plans to suit growing families and diverse lifestyles.

Packages: house and land packages, no hidden costs.
• Quality floor coverings throughout
• Window coverings throughout
• Ducted Air Conditioning
• Fixed Site Costs
• 7* Basix

Campbell Property Group’s Commitment:
• Focused on making homeownership a reality for Australian families.
• Creating communities centered around lifestyle and future growth.
• Dedicated to a stress-free, enjoyable home buying experience.

*Terms and Conditions apply. Images for illustrative purposes only. Land value included in the package. E&OE. Domaine Homes reserves the right to change the price without notice. Domaine Homes (NSW) Pty Ltd. ABN 19 080 788 969 BL No. 91387C. Prices based on February 2026 Price List.
Price: $1,404,000

Vacancy Rate in Campbelltown NSW 2560

View full vacancy rate history in Campbelltown NSW 2560 via SQM Research.


Schools near Campbell & Hart - Campbelltown

Here are 6 schools near Campbell & Hart - Campbelltown:

Lot 213: Lismore 22 by Domaine Homes
Campbell & Hart - Campbelltown