Lot 30 Road R1 by Enso Homes - Colac
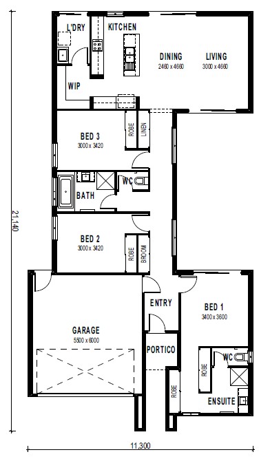
Lighthouse 20 with Zachary Facade and Silver Inclusions
Designed to fit 12.5 x 30m block
The Lighthouse 20 is the smallest home in the lighthouse collection. With a central courtyard, easily accessed from the master suite or the main living area, creating a private outdoor space. All aspects of the design have been carefully considered with zoned bedrooms and wet areas in a separate wing for privacy.
INCLUSIONS
• Enso Inclusions – enquire for full list of inclusions
The Enso Homes philosophy
At Enso Homes, we understand the significance of a new home in a person’s life. It takes years of planning, saving and sacrifice to reach that moment when you’re ready to take the big step. When it comes time to build, you need a team of experts to help you bring your vision to life. At Enso Homes, we commit our years of experience, skill, and connections to building your home exactly the way you want, with a level of quality and workmanship that will last for generations.
Enso Homes was established in 2016 to fill a noticeable gap in the market. We were seeing offers to build luxury homes and homes with basic inclusions, but not much in between.
Enso Homes creates quality houses that are thoughtfully designed. We work with you, every step of the way, to ensure your new home is exactly as you imagined it! We believe that expert workmanship and great modern design should be available to all, and our team of dedicated professionals is devoted to making this a reality.
You and your new home are our priority.
Enso Homes Quality
Creating a dream home is about more than just bringing a design to life. As designers of custom built homes in Geelong, it is our responsibility to make sure that your home is not only built to your specifications, but is also quality tested at every step.
As a matter of principle, the Enso Homes team only takes on a limited number of builds, so each home gets the attention it deserves. We offer fresh, modern designs and a level of finish which you’d expect from the best builders in the market. We have a small, dedicated team of passionate home builders who have close knit relationships with local suppliers and trades.
To guarantee quality, we work with third party quality inspectors who perform thorough inspections at pre-pour, frame, and pre-plaster stages. No stone is left unturned when it comes to building the perfect luxury home in Geelong for our clients.
Expert Home Builders in Geelong
At Enso Homes, we provide clients with more than just floor plans and design ideas. We believe that inspiration deserves to be cultivated and expressed in the right environment. Our customers enjoy the full support and expertise of our team, as well as access to our tightly knit network of builders, traders, and suppliers, all of whom are an integral part of our vision. Contact us today to enquire about dream homes in Geelong.
3
2
2
Location & Map of Colac
Land Price Trend in Colac VIC 3250
- In Oct - Dec 24, the median price for vacant land in Colac VIC 3250 was $260,500. *
- From Oct - Dec 17 to Oct - Dec 24, the median price for vacant land in Colac VIC 3250 has increased 112.65%. *
- From 2008 to 2024, the median price for vacant land in Colac VIC 3250 has increased 212.94%. *
Schools in Colac VIC 3250
There are 7 schools registered in on ACARA 2025
Prep-6 Government Primary School
Prep-6 Government Primary School
Prep-6 Government Primary School
U Government Special School
7-12 Government Secondary School - School Head Campus
7-12 Catholic Secondary School
Prep-6 Catholic Primary School
Popular Estates near Lot 30 Road R1 by Enso Homes
Latest New Home Articles for You
20/Feb/2026 | OpenLot.com.au
Display Homes at Drouin Fields Estate: A Thriving Community in Drouin
Welcome to Drouin Fields, a place where beauty, space, and modern luxury ...
19/Feb/2026 | OpenLot.com.au
Display Homes at Manor Lakes Esate: A Thriving Waterside Community in Manor Lakes
A place where you can settle in, rather than just settle down. Named for ...
13/Feb/2026 | OpenLot.com.au
🏠 Victoria: Top 30 Most Searched Townhouse Developments – January 2026
11/Feb/2026 | OpenLot.com.au
🏡 Top 30 Most Searched Estates by State - January 2026
10/Feb/2026 | OpenLot.com.au
Victoria: Top 30 Most Searched Housing Developments (January 2026)
If you’ve been considering making a move in Victoria, January 2026 offere...
10/Feb/2026 | OpenLot.com.au
Queensland: Top 30 Most Searched Housing Developments (January 2026)
If you’ve been considering making a move in Queensland, January 2026 offe...
09/Feb/2026 | OpenLot.com.au
Western Australia: Top 30 Most Searched Housing Developments (January 2026)
If you’ve been considering making a move in Western Australia, January 20...
06/Feb/2026 | OpenLot.com.au
South Australia: Top 30 Most Searched Housing Developments (January 2026)
If you’ve been considering making a move in South Australia, January 2026...
05/Feb/2026 | OpenLot.com.au
New South Wales: Top 30 Most Searched Housing Developments (January 2026)
If you’ve been considering making a move in New South Wales, January 2026...