Lot 7 Chivers Place by Enso Homes - Drysdale
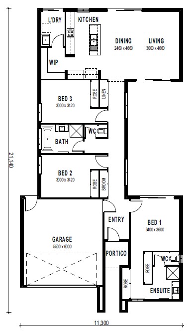
Lighthouse 20 with Waugh Facade and Gold Inclusions
The Lighthouse 20 is the smallest home in the lighthouse collection. With a central courtyard, easily accessed from the master suite or the main living area, creating a private outdoor space. All aspects of the design have been carefully considered with zoned bedrooms and wet areas in a separate wing for privacy.
INCLUSIONS
• Enso Inclusions – enquire for full list of inclusions
The Enso Homes philosophy
At Enso Homes, we understand the significance of a new home in a person’s life. It takes years of planning, saving and sacrifice to reach that moment when you’re ready to take the big step. When it comes time to build, you need a team of experts to help you bring your vision to life. At Enso Homes, we commit our years of experience, skill, and connections to building your home exactly the way you want, with a level of quality and workmanship that will last for generations.
Enso Homes was established in 2016 to fill a noticeable gap in the market. We were seeing offers to build luxury homes and homes with basic inclusions, but not much in between.
Enso Homes creates quality houses that are thoughtfully designed. We work with you, every step of the way, to ensure your new home is exactly as you imagined it! We believe that expert workmanship and great modern design should be available to all, and our team of dedicated professionals is devoted to making this a reality.
You and your new home are our priority.
Enso Homes Quality
Creating a dream home is about more than just bringing a design to life. As designers of custom built homes in Geelong, it is our responsibility to make sure that your home is not only built to your specifications, but is also quality tested at every step.
As a matter of principle, the Enso Homes team only takes on a limited number of builds, so each home gets the attention it deserves. We offer fresh, modern designs and a level of finish which you’d expect from the best builders in the market. We have a small, dedicated team of passionate home builders who have close knit relationships with local suppliers and trades.
To guarantee quality, we work with third party quality inspectors who perform thorough inspections at pre-pour, frame, and pre-plaster stages. No stone is left unturned when it comes to building the perfect luxury home in Geelong for our clients.
Expert Home Builders in Geelong
At Enso Homes, we provide clients with more than just floor plans and design ideas. We believe that inspiration deserves to be cultivated and expressed in the right environment. Our customers enjoy the full support and expertise of our team, as well as access to our tightly knit network of builders, traders, and suppliers, all of whom are an integral part of our vision. Contact us today to enquire about dream homes in Geelong.
3
2
2
Location & Map of Drysdale
Visit Display Villages near Drysdale VIC 3222
Land Price Trend in Drysdale VIC 3222
- In Apr - Jun 23, the median price for vacant land in Drysdale VIC 3222 was $380,000. *
- From Oct - Dec 17 to Apr - Jun 23, the median price for vacant land in Drysdale VIC 3222 has increased 105.41%. *
- From 2008 to 2023, the median price for vacant land in Drysdale VIC 3222 has increased 171.43%. *
Vacancy Rate in Drysdale VIC 3222
View full vacancy rate history in Drysdale VIC 3222 via SQM Research.
Schools in Drysdale VIC 3222
There are 4 schools registered in on ACARA 2024
Prep-6 Government Primary School
7-12 Government Secondary School - School Head Campus
7-12 Catholic Secondary School
Prep-6 Catholic Primary School
Popular Estates near Lot 7 Chivers Place by Enso Homes
Latest New Home Articles for You
16/Jan/2026 | OpenLot.com.au
South Australia Top 30 Most Searched Housing Developments (December 2025)
15/Jan/2026 | OpenLot.com.au
Queensland: Top 30 Most Searched Housing Developments (December 2025)
If you’ve been tracking housing demand across Queensland, December 2025 p...
14/Jan/2026 | OpenLot.com.au
Victoria: Top 30 Most Searched Housing Developments (December 2025)
If you’ve been exploring housing opportunities in Victoria, December 2025...
14/Jan/2026 | OpenLot.com.au
Display Homes at Apsley Estate: A Masterplanned Community in Mandogalup
Apsley is a bold, 1,800-lot masterplanned community just 25 minutes south...
13/Jan/2026 | OpenLot.com.au
Western Australia: Top 30 Most Searched Housing Developments (December 2025)
If you’ve been keeping an eye on housing demand across Western Australia,...
12/Jan/2026 | OpenLot.com.au
New South Wales: Top 30 Most Searched Housing Developments (December 2025)
If you’ve been considering making a move in New South Wales, December 202...
07/Jan/2026 | OpenLot.com.au
🏡 Top 30 Most Searched Estates by State - December
06/Jan/2026 | OpenLot.com.au
Display Homes Near Me (WA): Your Complete Guide to Display Villages Across Western Australia
Finding the right display home in Western Australia has never been easier...
30/Dec/2025 | OpenLot.com.au
Display Homes Near Me (QLD): Your Complete Guide to Display Villages Across Queensland
Finding the right display home in Queensland has never been easier, with ...