Lot 7 Oakden Estate by Simonds Homes - Drysdale

Delivers luxury with space in a double-storey house design for all families.

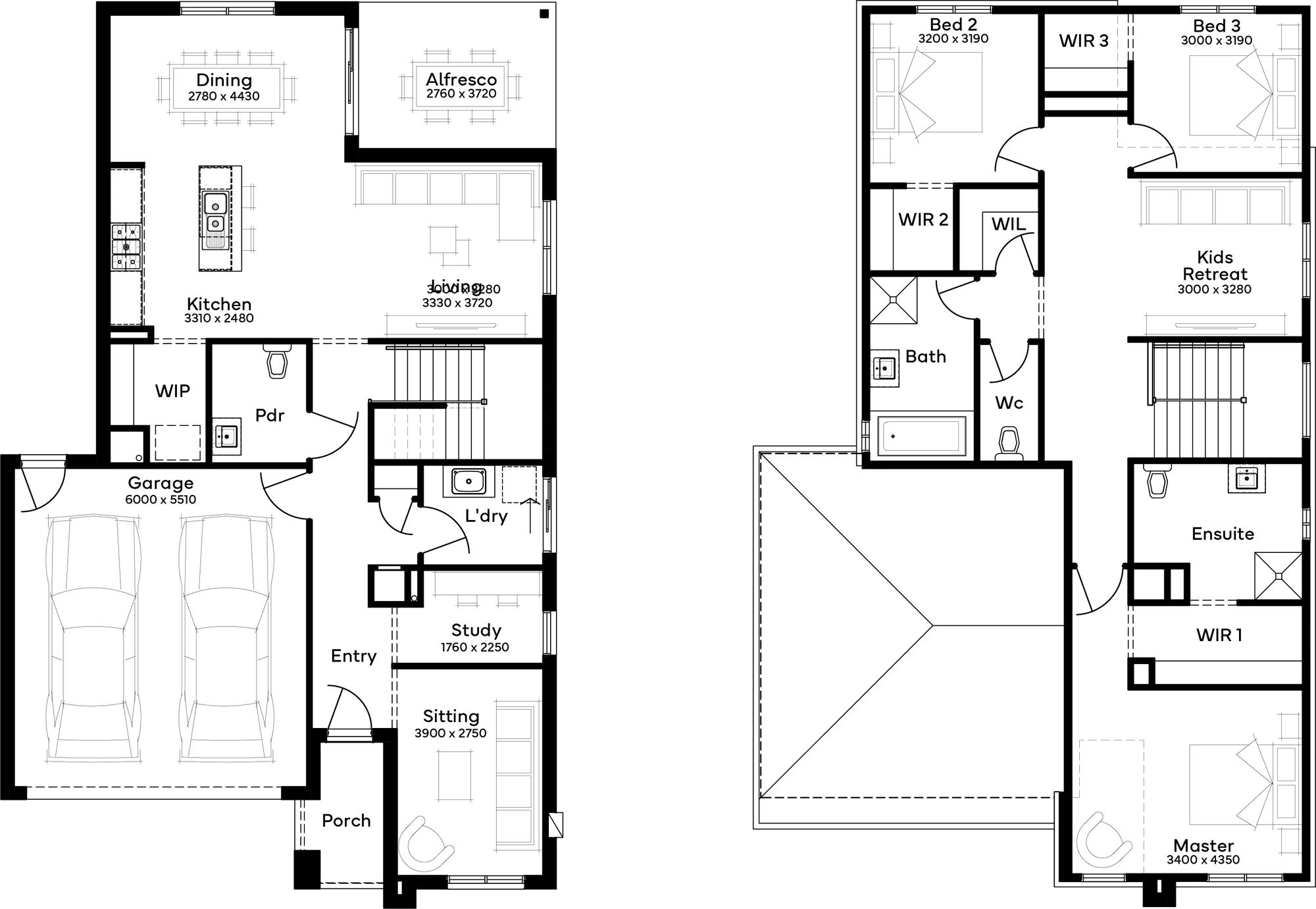
The Vasse 27, perfect for 12.5m+ blocks, is a 3-bedroom, 3-bathroom double-storey house design with a 2-car garage. It offers a formal sitting area, a study, and a separate laundry on the ground floor. The expansive shared zone includes a designer kitchen, living, and dining spaces opening to an alfresco. Upstairs, the floor plan features a private master suite, secondary bedrooms, a shared bathroom, and a children?s retreat, creating a balance of communal and private spaces.
Simonds Homes
Lot 7 Oakden Estate, Drysdale VIC 3222 Available
Bed  3 Bath  2 Car  2
Land Size: 408.00m²
Floor Area: 27.64sq
Price: $814,793

Floor-plan for Lot 7: by Simonds Homes


Location & Map of Drysdale

Loading...

Visit Display Villages near Drysdale VIC 3222


More House and Land Packages by Simonds Homes (Home Builder)

Bed  3 Bath  2 Car  2
Land Size: 394.00m²
Frontage: 14m
Depth: 25.77m
Floor Area: 19.3sq
Thoughtfully designed for comfort, the Alberta offers modern open-plan family living.
Modern Family Living
From the moment you enter the Alberta, a long hallway guides you into a spacious open-plan living area that forms the heart of the home. With two bedrooms positioned around a central bathroom, a private master suite with an ensuite, and a double garage, the Alberta is thoughtfully designed for comfortable and contemporary family living.

Simonds Fixed Price Home & Land Package

Simonds have been Building Homes Since 1949, and every year, help thousands of Australian's realise their dream of owning a brand new home.

In choosing a builder, we believe that each buyer is looking for the best quality, the best service, and the best price.
Whilst it is impossible to have all three, Simonds have built our Fixed Price reputation on great quality and service, for what is often the largest investment in our clients lives.
As a National Builder with large buying power, our homes are very competitively priced, and most importantly, fantastic value for money.

With the transparency of an itemised quotation, a refundable initial deposit, and a Fixed Price contract at the end of the journey, why not enquire with one of the Simonds Sales team today!

This Attractive House and Land Package Includes:

Fixed price Site Costs
Developer & council requirements
Photovoltaic panels with inverter
Feature front entry door
Colorbond Sectional garage door & remote controls
Floor coverings to entire house
20mm Stone benchtops to kitchen
Quality stainless steel cooktop & oven
Towel Rails & Toilet Roll Holders
800mm Laundry Cabinet
Ducted Heating
Plus much more!


All Fixed Price Home and Land packages are subject to Developer and Council approval and is based on Simonds standard floor plan with preferred siting (without alterations). Package Price does not include stamp duty, government, legal or bank charges. Community Infrastructure Levy and Asset Protection Permit are not included in pricing and is to be arranged by the client directly with the Developer (if applicable). Any alterations may incur additional charges. Confirm land price and availability prior to purchase. Simonds reserves the right to withdraw or amend pricing, inclusions and promotion at any time without notice. Please refer to the terms and conditions at www.simonds.com.au/terms-and-conditions. This package applies to VIC - Aspirations range only. Please speak with your sales consultant for further details. Pricing is current at 30/01/2026.

Facade & Internal images are taken from a similar Simonds display home and are for illustration purposes only. Please talk to your sales consultant for more details
Price: $713,760

Land Price Trend in Drysdale VIC 3222

  • In Apr - Jun 23, the median price for vacant land in Drysdale VIC 3222 was $380,000. *
  • From Oct - Dec 17 to Apr - Jun 23, the median price for vacant land in Drysdale VIC 3222 has increased 105.41%. *
  • From 2008 to 2023, the median price for vacant land in Drysdale VIC 3222 has increased 171.43%. *
* Price data comes from Valuer-General Victoria on 05/06/25

Vacancy Rate in Drysdale VIC 3222

View full vacancy rate history in Drysdale VIC 3222 via SQM Research.


Schools in Drysdale VIC 3222

There are 4 schools registered in on ACARA 2024

Lot 7 Oakden Estate by Simonds Homes
Oakden Estate, Drysdale VIC 3222
House & Land: 3 Bed | 2 Bath | 2 Car @ $814,793