Gen Fyansford Estate - Fyansford Logo

Lot 3402: Laguna 230 @ Gen Fyansford Estate - Fyansford VIC 3218

Highlight Inclusions
3 Level Home
Provisional Site Costs Are Included
Floor Coverings Allowance
G.J. Gardner Homes
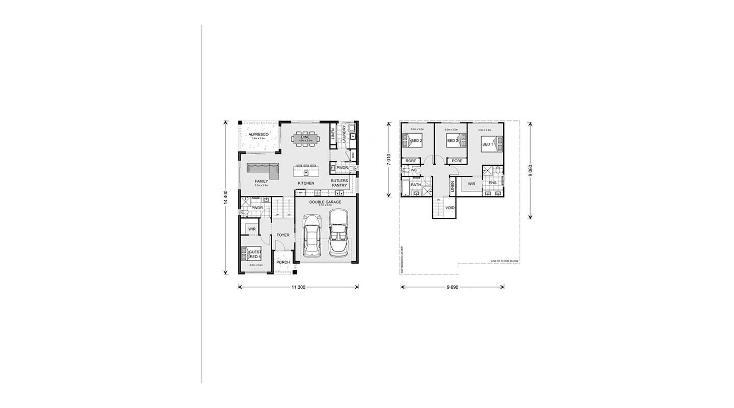
Lot 3402 Elevation Drive: Laguna 230 Available
Bed  4 Bath  4 Car  2
Home Design: Laguna 230
Land Size: 640.00m²
Frontage: 16m
Depth: 40m
Floor Area: 640m²
Orientation: North
Price: $1,223,142

Development Info of Gen Fyansford Estate - Fyansford

Total new homes 1,000
Area size 115.00 hectares
Growth Region Greater Geelong Growth Areas
City council City Of Greater Geelong
Developer ICD Property, Sinclair Brook
Project marketer RPM Group
Distance to Geelong CBD - 5 km west Melbourne CBD - 68 km south-west

Location & Map for Gen Fyansford Estate - Fyansford

Loading...

More House and Land Packages in Gen Fyansford Estate - Fyansford


More House and Land Packages by G.J. Gardner Homes (Home Builder)

Bed  3 Bath  2 Car  2
Suburb: Darley VIC 3340
Land Size: 398.00m²
Floor Area: 176m²
With the beauty of the natural landscape as a backdrop, Darley balances town and country, busy and quiet, and modern living with proud history. Big backyards, friendly neighbours and a lively local area give Darley its warm atmosphere and unique, family-friendly lifestyle.

Darling Darley offers the best of both worlds – a country town lifestyle just a 45-minute drive from Melbourne's City Centre.

All land at Darling Darley is build ready, making it easier to get into your dream home sooner.

Darling Darley’s location provides residents with the perfect blend of rural charm and city convenience, with close proximity to several schools and only a 10-minute drive to Woodgrove Shopping Centre, with over 170+ major retailers and specialty stores.

The Nova 176 from GJ Gardner Homes includes:
+ Westinghouse Appliances
+ Quality Reece Fittings And Fixtures
+ Flooring Throughout Home
+ Metal Roof As Standard
+ Laminex Cabinetry
+ Ducted Heating

Contact the Sales Team today on 1300 739 638 today to secure your future at Darling Darley.

*When you contact the number in this listing, your number, enquiry, call duration and time will be collected on behalf of realestate.com.au and provided to Core Projects Pty Ltd (Core Projects) to respond to your enquiry. For further details, see our Privacy Policy. Prices are subject to change without notice and are exclusive of GST. Dates for Titles are estimated only and are subject to change. While every care is taken in preparing this listing, Core Projects makes no representations or warranties as to the currency or accuracy of the information which is subject to change at any time. The recipient must make its own independent enquiries to verify the content of this document. Core Projects will not be liable for any reliance the recipient makes on the content.
Price: $613,279

Land Price Trend in Fyansford VIC 3218

  • In Oct - Dec 24, the median price for vacant land in Fyansford VIC 3218 was $605,000. *
  • From Oct - Dec 17 to Oct - Dec 24, the median price for vacant land in Fyansford VIC 3218 has increased 152.08%. *
  • From 2009 to 2024, the median price for vacant land in Fyansford VIC 3218 has increased 666.67%. *
* Price data comes from Valuer-General Victoria on 05/06/25

Vacancy Rate in Fyansford VIC 3218

View full vacancy rate history in Fyansford VIC 3218 via SQM Research.


Schools near Gen Fyansford Estate - Fyansford

Here are 6 schools near Gen Fyansford Estate - Fyansford:

Lot 3402: Laguna 230 by G.J. Gardner Homes
Gen Fyansford Estate - Fyansford