Lot 18 Floreat Court by Metricon Homes - Gisborne

More Home for Less

DENVER 47, CASCADE FAÇADE, LOT 18 FLOREAT COURT, GISBORNE, NO ESTATE

If you're an eligible first home buyer, then you can apply for the First Home Owners' Grant, which is $10,000<, to this home and land package. At Metricon, we've helped thousands of first home buyers realise their new home dreams, and we can help you too.
At Metricon, we understand that great design is the sum of many parts, and for over 47 years, our mission has been to create homes where you truly love to live.
From the moment you step inside, you can't help but be impressed by the sleek modern design and wide-open, light-filled spaces of our 7 -Star energy efficient home.

Modern country living at its finest.
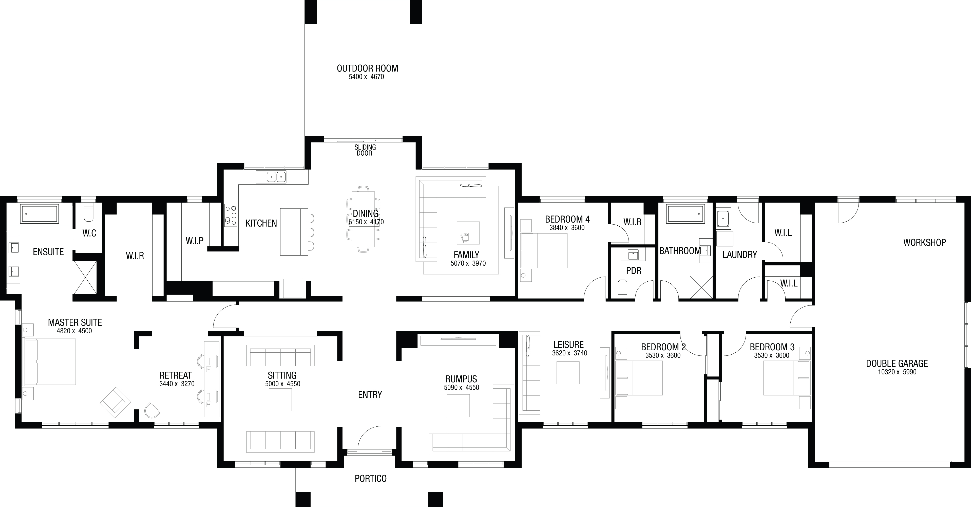
The Denver was created for modern country living to suit a corner or acreage allotment. This home boasts an impressive entry and an open plan area with a centrally located kitchen, dining and family room, perfect for entertaining. Its flexible footprint will suit families that want to live together. Space, the final frontier. Let the Denver take you there.


• We build beautiful and sustainable designed homes without the architect-designed price, our package includes:
• Lifetime Structural guarantee
• 7-star energy rating
• Double glazed windows & sliding doors
• PV solar system
• 2550mm Ceilings
• Floor Coverings Throughout
• Ducted Heating & Evaporative cooling
• 20mm zenith stone benchtops to kitchen
• 20mm zenith stone benchtops to bathrooms
• 900mm Kitchen Appliances
• Driveway (Up to 35m2)
NO ESTATE is a premium estate designed for modern living, offering excellent access to schools, shopping centers, parks, and transport links. With a welcoming community and a focus on lifestyle, it's the perfect place to build your dream home.

At Metricon, we aim to provide you with innovative yet practical home designs that are designed to grow with your family's requirements well into the future. Since 1976, our design philosophy has remained the same - to design stunning homes where you'd love to live and which celebrate the diversity of Australian family life.

*Price excludes upgrade items above standard specification such as feature render and bricks, front entrance timber decking, front entry door, brick infills above garage, external lighting, fencing, concrete paths and driveway. Facade Image may also contain items not supplied by Metricon, namely landscaping and planter boxes. Aluminium double glazed windows are subject to specific home design, refer to plans.
Floorplan may not reflect developer guidelines and depicts the base Facade.
Package is correct at time of publication, availability, images, inclusions and prices are subject to change due to circumstances that may affect the price as set out in the building contract (including the land registration date not being met), changes in local, state or federal government laws and developer approval.Land is supplied by developer,land prices and availability are subject to change without notice.Advertised Package Price is based on Metricon's Freedom standard inclusions, any additional inclusions listed, Metricon's preferred siting of the home and the expected land titling date as notified by the developer and is subject to Metricon's price hold expiry date by which the owner must include essential information to Metricon to commence construction, including land title. Package price excludes customer account opening fees, stamp duty on land, legal fees and conveyancing costs including titles and property report. Typical site costs allowance is included in the price, additional site costs may apply if site survey and soil tests indicate footings and site works different to those expected for the location. Additional costs may incur if there are bushfire, wind rating or acoustic requirements. For more information on pricing and inclusions please speak with a Metricon New Home Advisor.
Newfield Real Estate Pty Ltd ACN 159 312 722, Licence number 028051L. VIC Builder's Licence: CDB-U 52967
#For details on our Lifetime structural guarantee and other terms and conditions visit www.metricon.com.au/terms-and-conditions
<State government conditions and eligibility criteria will apply. To see if you qualify visit www.sro.vic.gov.au/first-home-owner.
Metricon Homes
Lot 18 Floreat Court, Gisborne VIC 3437 Available
Bed  4 Bath  2 Car  2
Land Size: 3,546.00m²
Floor Area: 413sq
Price: $2,059,457

Floor-plan for Lot 18: by Metricon Homes


Location & Map of Gisborne

Loading...

Nearby Display Homes from Metricon Homes (Home Builder)


Visit Display Villages near Gisborne VIC 3437


More House and Land Packages by Metricon Homes (Home Builder)

Bed  4 Bath  2 Car  2
Land Size: 518.00m²
Floor Area: 246sq
More Home for Less
At Metricon, we understand that great design is the sum of many parts, and for over 47 years, our mission has been to create homes where you truly love to live.
From the moment you step inside, you can’t help but be impressed by the sleek modern design and wide-open, light-filled spaces of our 7 -Star energy efficient home.
We build beautiful and sustainable designed homes without the architect-designed price, our package includes:

• 7 star energy rating
• Lifetime Structural Guarantee#
• Personalised Studio M experience
• Floor coverings throughout
• 900mm kitchen appliances
• 20mm Zenith Stone benchtops to kitchen & bathroom
• Fibre Optic Package
• Coloured Concrete driveway (Up to 35m2)
• Developer and Council requirements^
• Site Cost Allowance*
• Stunning Façade Included
• Aluminium double glazed windows
• Colorbond Roof

At Metricon, we aim to provide you with innovative yet practical home designs that are designed to grow with your family's requirements well into the future. Since 1976, our design philosophy has remained the same - to design stunning homes where you'd love to live and which celebrate the diversity of Australian family life.

*Price excludes upgrade items above standard specification such as feature render and bricks, front entrance timber decking, front entry door, brick infills above garage, external lighting, fencing, concrete paths and driveway. Facade Image may also contain items not supplied by Metricon, namely landscaping and planter boxes. Aluminium double glazed windows are subject to specific home design, refer to plans.
Floorplan may not reflect developer guidelines and depicts the base Facade.
Package is correct at time of publication, availability, images, inclusions and prices are subject to change due to circumstances that may affect the price as set out in the building contract (including the land registration date not being met), changes in local, state or federal government laws and developer approval.Land is supplied by developer,land prices and availability are subject to change without notice.Advertised Package Price is based on Metricon's Freedom standard inclusions, any additional inclusions listed, Metricon's preferred siting of the home and the expected land titling date as notified by the developer and is subject to Metricon's price hold expiry date by which the owner must include essential information to Metricon to commence construction, including land title. Package price excludes customer account opening fees, stamp duty on land, legal fees and conveyancing costs including titles and property report. Typical site costs allowance is included in the price, additional site costs may apply if site survey and soil tests indicate footings and site works different to those expected for the location. Additional costs may incur if there are bushfire, wind rating or acoustic requirements. For more information on pricing and inclusions please speak with a Metricon New Home Advisor.
Newfield Real Estate Pty Ltd ACN 159 312 722, Licence number 028051L. VIC Builder's Licence: CDB-U 52967
#For details on our Lifetime structural guarantee and other terms and conditions visit www.metricon.com.au/terms-and-conditions
Price: $973,209
Bed  3 Bath  2 Car  2
Land Size: 464.00m²
Floor Area: 195sq
More Home for Less
At Metricon, we understand that great design is the sum of many parts, and for over 47 years, our mission has been to create homes where you truly love to live.
From the moment you step inside, you can’t help but be impressed by the sleek modern design and wide-open, light-filled spaces of our 7 -Star energy efficient home.
We build beautiful and sustainable designed homes without the architect-designed price, our package includes:


• Lifetime Structural guarantee
• 7-star energy rating
• Double glazed windows & sliding doors
• PV solar system
• 2550mm Ceilings
• Ducted heating and Reverse cycle cooling
• Free colorbond steel roof
• Floor coverings throughout
• 20mm zenith stone benchtops to kitchen
• 20mm zenith stone benchtops to bathrooms
• 900mm Kitchen Appliances
• Exposed aggregate driveway (Up to 35m2)

At Metricon, we aim to provide you with innovative yet practical home designs that are designed to grow with your family's requirements well into the future. Since 1976, our design philosophy has remained the same - to design stunning homes where you'd love to live and which celebrate the diversity of Australian family life.

*Price excludes upgrade items above standard specification such as feature render and bricks, front entrance timber decking, front entry door, brick infills above garage, external lighting, fencing, concrete paths and driveway. Facade Image may also contain items not supplied by Metricon, namely landscaping and planter boxes. Aluminium double glazed windows are subject to specific home design, refer to plans.
Floorplan may not reflect developer guidelines and depicts the base Facade.
Package is correct at time of publication, availability, images, inclusions and prices are subject to change due to circumstances that may affect the price as set out in the building contract (including the land registration date not being met), changes in local, state or federal government laws and developer approval.Land is supplied by developer,land prices and availability are subject to change without notice.Advertised Package Price is based on Metricon's Freedom standard inclusions, any additional inclusions listed, Metricon's preferred siting of the home and the expected land titling date as notified by the developer and is subject to Metricon's price hold expiry date by which the owner must include essential information to Metricon to commence construction, including land title. Package price excludes customer account opening fees, stamp duty on land, legal fees and conveyancing costs including titles and property report. Typical site costs allowance is included in the price, additional site costs may apply if site survey and soil tests indicate footings and site works different to those expected for the location. Additional costs may incur if there are bushfire, wind rating or acoustic requirements. For more information on pricing and inclusions please speak with a Metricon New Home Advisor.
Newfield Real Estate Pty Ltd ACN 159 312 722, Licence number 028051L. VIC Builder's Licence: CDB-U 52967
#For details on our Lifetime structural guarantee and other terms and conditions visit www.metricon.com.au/terms-and-conditions
Price: $631,466
Bed  3 Bath  2 Car  2
Land Size: 455.00m²
Floor Area: 155sq
Easy and Affordable!
MARLI 17, TRADITIONAL FAÇADE, LOT 104 SNEDDEN STREET, ARMSTRONG CREEK, PALOMINO

If you're an eligible first home buyer, then you can apply for the First Home Owners' Grant, which is $10,000<, to this home and land package. At Metricon, we've helped thousands of first home buyers realise their new home dreams, and we can help you too.
At Metricon, we understand that great design is the sum of many parts, and for over 47 years, our mission has been to create homes where you truly love to live.
From the moment you step inside, you can't help but be impressed by the sleek modern design and wide-open, light-filled spaces of our 7 -Star energy efficient home.

Get started in the Marli.

The Marli is a contemporary single-storey design that is perfect for first home buyers. Featuring three great sized bedrooms, a kitchen with plenty of bench space, along with a dining and family area, this home is a delight. The master bedroom features an ensuite and a walk-in-robe while the other two bedrooms feature built in robes. The dining and family area make a great entertainment area so is perfect for family gatherings. A choice of attractive facades means a home that can suit your own style requirements.

• We build beautiful and sustainable designed homes without the architect-designed price, our fixed package includes:
• 7 star energy rating
• Fixed site costs (no more to pay)
• Timber look laminate flooring to main living area, meals, kitchen and entry
• Carpet to bedrooms
• Quality tiles to bathrooms, ensuite and laundry
• Stylish stainless steel appliances
• Garage door remote control
• Aluminium double glazed windows
• Ducted gas heating
• Lifetime Structural Guarantee#

At Metricon, we aim to provide you with innovative yet practical home designs that are designed to grow with your family's requirements well into the future. Since 1976, our design philosophy has remained the same - to design stunning homes where you'd love to live and which celebrate the diversity of Australian family life.

*Price excludes upgrade items above standard specification such as feature render and bricks, front entrance timber decking, front entry door, brick infills above garage, external lighting, fencing, concrete paths and driveway. Facade Image may also contain items not supplied by Metricon, namely landscaping and planter boxes.
Floorplan may not reflect developer guidelines and depicts the base Facade.
Package is correct at time of publication, availability, images, inclusions and prices are subject to change due to circumstances that may affect the price as set out in the building contract (including the land registration date not being met), changes in local, state or federal government laws and developer approval.Land is supplied by developer,land prices and availability are subject to change without notice.Advertised Package Price is based on Metricon's Home Solution standard inclusions, any additional inclusions listed, Metricon's preferred siting of the home and the expected land titling date as notified by the developer and is subject to Metricon's price hold expiry date by which the owner must include essential information to Metricon to commence construction, including land title. Package price excludes customer account opening fees, stamp duty on land, legal fees and conveyancing costs including titles and property report. Typical site costs allowance is included in the price, additional site costs may apply if site survey and soil tests indicate footings and site works different to those expected for the location. Additional costs may incur if there are bushfire, wind rating or acoustic requirements. For more information on pricing and inclusions please speak with a Metricon New Home Advisor.
Newfield Real Estate Pty Ltd ACN 159 312 722, Licence number 028051L. VIC Builder's Licence: CDB-U 52967
#For details on our Lifetime structural guarantee and other terms and conditions visit www.metricon.com.au/terms-and-conditions
<State government conditions and eligibility criteria will apply. To see if you qualify visit www.sro.vic.gov.au/first-home-owner.
Price: $631,115

Land Price Trend in Gisborne VIC 3437

  • In Oct - Dec 24, the median price for vacant land in Gisborne VIC 3437 was $413,300. *
  • From Oct - Dec 17 to Oct - Dec 24, the median price for vacant land in Gisborne VIC 3437 has increased 29.97%. *
  • From 2008 to 2024, the median price for vacant land in Gisborne VIC 3437 has increased 140.57%. *
* Price data comes from Valuer-General Victoria on 05/06/25

Vacancy Rate in Gisborne VIC 3437

View full vacancy rate history in Gisborne VIC 3437 via SQM Research.


Schools in Gisborne VIC 3437

There are 4 schools registered in on ACARA 2024

Lot 18 Floreat Court by Metricon Homes
Floreat Court, Gisborne VIC 3437
House & Land: 4 Bed | 2 Bath | 2 Car @ $2,059,457