Lot 13, Copper head Road by Metricon Homes - Kyneton

Affordable Luxury

HIGHLANDER 68, PINDARI FAÇADE, LOT 13, COPPER HEAD ROAD, KYNETON, AMBROSIA ESTATE

If you're an eligible first home buyer, then you can apply for the First Home Owners' Grant, which is $10,000<, to this home and land package. At Metricon, we've helped thousands of first home buyers realise their new home dreams, and we can help you too.
At Metricon, we understand that great design is the sum of many parts, and for over 47 years, our mission has been to create homes where you truly love to live.
From the moment you step inside, you can't help but be impressed by the sleek modern design and wide-open, light-filled spaces of our 7 -Star energy efficient home.

Perfectly designed for the discerning buyer seeking acreage living.

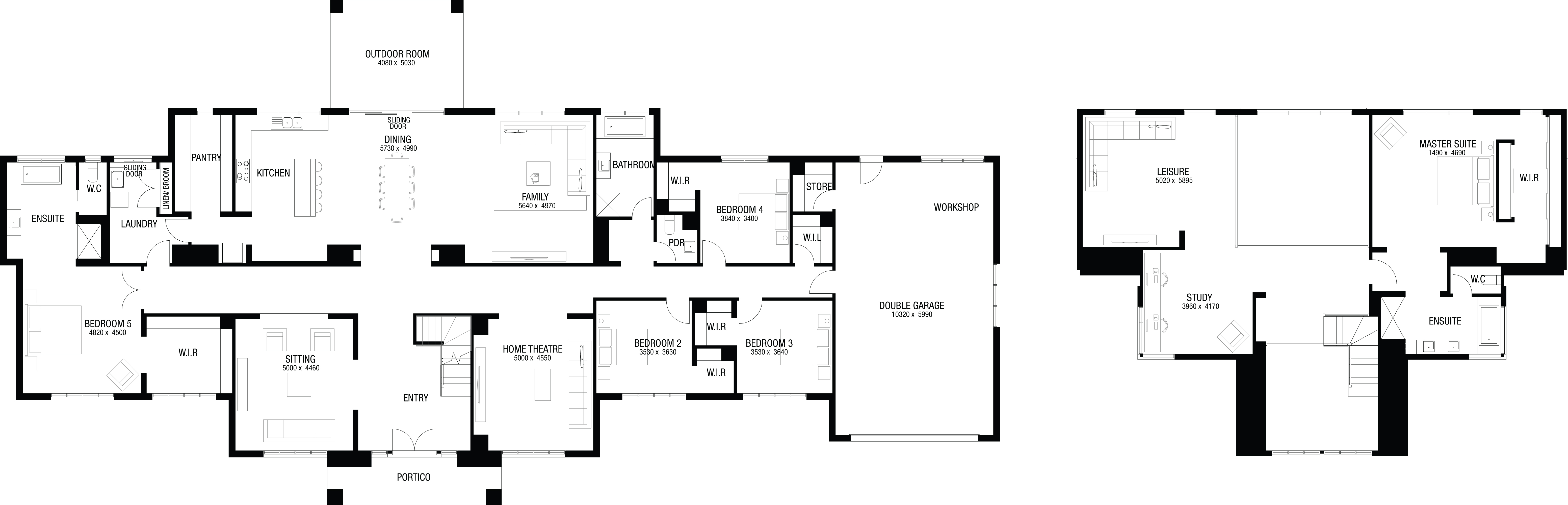
The Highlander incorporates grandeur and opulence, all whilst maintaining a country feel to perfectly suit its surrounding landscape. The highlander combines design elements never seen before in acreage living. Large double storey voids in the entry and family zones create openness, with the ability to capture views and vistas beyond. The home is a representation of retreat living, accommodating living areas over two levels, allowing room for everyone to live in luxury.

Want to get a feel for this floorplan in person? This design is on display at Gisborne or has a virtual tour available, head to metricon.com.au/display-homes to find out more.

Build a beautiful and sustainable designed homes without the architect-designed price, our package includes:
• 7 star energy rating
• 2550mm ceiling height to ground floor
• 2340mm modern feature front door with glazed panel
• 20mm premium surface benchtops to kitchen & bathrooms
• 900mm stainless steel appliances
• Brick infills to ground floor windows and doors
• Aluminium double glazed windows
• Window locks to all openable windows
• Garage door remote control
• Lifetime Structural Guarantee#
Ambrosia Estate combines contemporary design with family-friendly amenities, creating a vibrant and welcoming neighborhood.

At Metricon, we aim to provide you with innovative yet practical home designs that are designed to grow with your family's requirements well into the future. Since 1976, our design philosophy has remained the same - to design stunning homes where you'd love to live and which celebrate the diversity of Australian family life.

*Price excludes upgrade items above standard specification such as feature render and bricks, front entrance timber decking, front entry door, brick infills above garage, external lighting, fencing, concrete paths and driveway. Facade Image may also contain items not supplied by Metricon, namely landscaping and planter boxes. Aluminium double glazed windows are subject to specific home design, refer to plans.
Floorplan may not reflect developer guidelines and depicts the base Facade.
Package is correct at time of publication, availability, images, inclusions and prices are subject to change due to circumstances that may affect the price as set out in the building contract (including the land registration date not being met), changes in local, state or federal government laws and developer approval.Land is supplied by developer,land prices and availability are subject to change without notice.Advertised Package Price is based on Metricon's Designer standard inclusions, any additional inclusions listed, Metricon's preferred siting of the home and the expected land titling date as notified by the developer and is subject to Metricon's price hold expiry date by which the owner must include essential information to Metricon to commence construction, including land title. Package price excludes customer account opening fees, stamp duty on land, legal fees and conveyancing costs including titles and property report. Typical site costs allowance is included in the price, additional site costs may apply if site survey and soil tests indicate footings and site works different to those expected for the location. Additional costs may incur if there are bushfire, wind rating or acoustic requirements. For more information on pricing and inclusions please speak with a Metricon New Home Advisor.
Newfield Real Estate Pty Ltd ACN 159 312 722, Licence number 028051L. VIC Builder's Licence: CDB-U 52967
#For details on our Lifetime structural guarantee and other terms and conditions visit www.metricon.com.au/terms-and-conditions
<State government conditions and eligibility criteria will apply. To see if you qualify visit www.sro.vic.gov.au/first-home-owner.
Metricon Homes
Lot 13, Copper head Road, Kyneton VIC 3444 Available
Bed  4 Bath  2 Car  2
Land Size: 3,058.00m²
Floor Area: 591sq
Price: $1,664,500

Floor-plan for Lot 13,: by Metricon Homes


Location & Map of Kyneton

Loading...

Nearby Display Homes from Metricon Homes (Home Builder)


More House and Land Packages by Metricon Homes (Home Builder)

Bed  4 Bath  2 Car  2
Land Size: 518.00m²
Floor Area: 246sq
More Home for Less
At Metricon, we understand that great design is the sum of many parts, and for over 47 years, our mission has been to create homes where you truly love to live.
From the moment you step inside, you can’t help but be impressed by the sleek modern design and wide-open, light-filled spaces of our 7 -Star energy efficient home.
We build beautiful and sustainable designed homes without the architect-designed price, our package includes:

• 7 star energy rating
• Lifetime Structural Guarantee#
• Personalised Studio M experience
• Floor coverings throughout
• 900mm kitchen appliances
• 20mm Zenith Stone benchtops to kitchen & bathroom
• Fibre Optic Package
• Coloured Concrete driveway (Up to 35m2)
• Developer and Council requirements^
• Site Cost Allowance*
• Stunning Façade Included
• Aluminium double glazed windows
• Colorbond Roof

At Metricon, we aim to provide you with innovative yet practical home designs that are designed to grow with your family's requirements well into the future. Since 1976, our design philosophy has remained the same - to design stunning homes where you'd love to live and which celebrate the diversity of Australian family life.

*Price excludes upgrade items above standard specification such as feature render and bricks, front entrance timber decking, front entry door, brick infills above garage, external lighting, fencing, concrete paths and driveway. Facade Image may also contain items not supplied by Metricon, namely landscaping and planter boxes. Aluminium double glazed windows are subject to specific home design, refer to plans.
Floorplan may not reflect developer guidelines and depicts the base Facade.
Package is correct at time of publication, availability, images, inclusions and prices are subject to change due to circumstances that may affect the price as set out in the building contract (including the land registration date not being met), changes in local, state or federal government laws and developer approval.Land is supplied by developer,land prices and availability are subject to change without notice.Advertised Package Price is based on Metricon's Freedom standard inclusions, any additional inclusions listed, Metricon's preferred siting of the home and the expected land titling date as notified by the developer and is subject to Metricon's price hold expiry date by which the owner must include essential information to Metricon to commence construction, including land title. Package price excludes customer account opening fees, stamp duty on land, legal fees and conveyancing costs including titles and property report. Typical site costs allowance is included in the price, additional site costs may apply if site survey and soil tests indicate footings and site works different to those expected for the location. Additional costs may incur if there are bushfire, wind rating or acoustic requirements. For more information on pricing and inclusions please speak with a Metricon New Home Advisor.
Newfield Real Estate Pty Ltd ACN 159 312 722, Licence number 028051L. VIC Builder's Licence: CDB-U 52967
#For details on our Lifetime structural guarantee and other terms and conditions visit www.metricon.com.au/terms-and-conditions
Price: $973,209
Bed  3 Bath  2 Car  2
Land Size: 464.00m²
Floor Area: 195sq
More Home for Less
At Metricon, we understand that great design is the sum of many parts, and for over 47 years, our mission has been to create homes where you truly love to live.
From the moment you step inside, you can’t help but be impressed by the sleek modern design and wide-open, light-filled spaces of our 7 -Star energy efficient home.
We build beautiful and sustainable designed homes without the architect-designed price, our package includes:


• Lifetime Structural guarantee
• 7-star energy rating
• Double glazed windows & sliding doors
• PV solar system
• 2550mm Ceilings
• Ducted heating and Reverse cycle cooling
• Free colorbond steel roof
• Floor coverings throughout
• 20mm zenith stone benchtops to kitchen
• 20mm zenith stone benchtops to bathrooms
• 900mm Kitchen Appliances
• Exposed aggregate driveway (Up to 35m2)

At Metricon, we aim to provide you with innovative yet practical home designs that are designed to grow with your family's requirements well into the future. Since 1976, our design philosophy has remained the same - to design stunning homes where you'd love to live and which celebrate the diversity of Australian family life.

*Price excludes upgrade items above standard specification such as feature render and bricks, front entrance timber decking, front entry door, brick infills above garage, external lighting, fencing, concrete paths and driveway. Facade Image may also contain items not supplied by Metricon, namely landscaping and planter boxes. Aluminium double glazed windows are subject to specific home design, refer to plans.
Floorplan may not reflect developer guidelines and depicts the base Facade.
Package is correct at time of publication, availability, images, inclusions and prices are subject to change due to circumstances that may affect the price as set out in the building contract (including the land registration date not being met), changes in local, state or federal government laws and developer approval.Land is supplied by developer,land prices and availability are subject to change without notice.Advertised Package Price is based on Metricon's Freedom standard inclusions, any additional inclusions listed, Metricon's preferred siting of the home and the expected land titling date as notified by the developer and is subject to Metricon's price hold expiry date by which the owner must include essential information to Metricon to commence construction, including land title. Package price excludes customer account opening fees, stamp duty on land, legal fees and conveyancing costs including titles and property report. Typical site costs allowance is included in the price, additional site costs may apply if site survey and soil tests indicate footings and site works different to those expected for the location. Additional costs may incur if there are bushfire, wind rating or acoustic requirements. For more information on pricing and inclusions please speak with a Metricon New Home Advisor.
Newfield Real Estate Pty Ltd ACN 159 312 722, Licence number 028051L. VIC Builder's Licence: CDB-U 52967
#For details on our Lifetime structural guarantee and other terms and conditions visit www.metricon.com.au/terms-and-conditions
Price: $631,466
Bed  3 Bath  2 Car  2
Land Size: 455.00m²
Floor Area: 155sq
Easy and Affordable!
MARLI 17, TRADITIONAL FAÇADE, LOT 104 SNEDDEN STREET, ARMSTRONG CREEK, PALOMINO

If you're an eligible first home buyer, then you can apply for the First Home Owners' Grant, which is $10,000<, to this home and land package. At Metricon, we've helped thousands of first home buyers realise their new home dreams, and we can help you too.
At Metricon, we understand that great design is the sum of many parts, and for over 47 years, our mission has been to create homes where you truly love to live.
From the moment you step inside, you can't help but be impressed by the sleek modern design and wide-open, light-filled spaces of our 7 -Star energy efficient home.

Get started in the Marli.

The Marli is a contemporary single-storey design that is perfect for first home buyers. Featuring three great sized bedrooms, a kitchen with plenty of bench space, along with a dining and family area, this home is a delight. The master bedroom features an ensuite and a walk-in-robe while the other two bedrooms feature built in robes. The dining and family area make a great entertainment area so is perfect for family gatherings. A choice of attractive facades means a home that can suit your own style requirements.

• We build beautiful and sustainable designed homes without the architect-designed price, our fixed package includes:
• 7 star energy rating
• Fixed site costs (no more to pay)
• Timber look laminate flooring to main living area, meals, kitchen and entry
• Carpet to bedrooms
• Quality tiles to bathrooms, ensuite and laundry
• Stylish stainless steel appliances
• Garage door remote control
• Aluminium double glazed windows
• Ducted gas heating
• Lifetime Structural Guarantee#

At Metricon, we aim to provide you with innovative yet practical home designs that are designed to grow with your family's requirements well into the future. Since 1976, our design philosophy has remained the same - to design stunning homes where you'd love to live and which celebrate the diversity of Australian family life.

*Price excludes upgrade items above standard specification such as feature render and bricks, front entrance timber decking, front entry door, brick infills above garage, external lighting, fencing, concrete paths and driveway. Facade Image may also contain items not supplied by Metricon, namely landscaping and planter boxes.
Floorplan may not reflect developer guidelines and depicts the base Facade.
Package is correct at time of publication, availability, images, inclusions and prices are subject to change due to circumstances that may affect the price as set out in the building contract (including the land registration date not being met), changes in local, state or federal government laws and developer approval.Land is supplied by developer,land prices and availability are subject to change without notice.Advertised Package Price is based on Metricon's Home Solution standard inclusions, any additional inclusions listed, Metricon's preferred siting of the home and the expected land titling date as notified by the developer and is subject to Metricon's price hold expiry date by which the owner must include essential information to Metricon to commence construction, including land title. Package price excludes customer account opening fees, stamp duty on land, legal fees and conveyancing costs including titles and property report. Typical site costs allowance is included in the price, additional site costs may apply if site survey and soil tests indicate footings and site works different to those expected for the location. Additional costs may incur if there are bushfire, wind rating or acoustic requirements. For more information on pricing and inclusions please speak with a Metricon New Home Advisor.
Newfield Real Estate Pty Ltd ACN 159 312 722, Licence number 028051L. VIC Builder's Licence: CDB-U 52967
#For details on our Lifetime structural guarantee and other terms and conditions visit www.metricon.com.au/terms-and-conditions
<State government conditions and eligibility criteria will apply. To see if you qualify visit www.sro.vic.gov.au/first-home-owner.
Price: $631,115

Land Price Trend in Kyneton VIC 3444

  • In Apr - Jun 23, the median price for vacant land in Kyneton VIC 3444 was $390,000. *
  • From Oct - Dec 17 to Apr - Jun 23, the median price for vacant land in Kyneton VIC 3444 has increased 77.27%. *
  • From 2008 to 2023, the median price for vacant land in Kyneton VIC 3444 has increased 302.06%. *
* Price data comes from Valuer-General Victoria on 05/06/25

Vacancy Rate in Kyneton VIC 3444

View full vacancy rate history in Kyneton VIC 3444 via SQM Research.


Schools in Kyneton VIC 3444

There are 4 schools registered in on ACARA 2024

Lot 13, Copper head Road by Metricon Homes
Copper head Road, Kyneton VIC 3444
House & Land: 4 Bed | 2 Bath | 2 Car @ $1,664,500