Lot 7: @ Madison Rise Estate - Woongarrah NSW 2259
[The Zecorra, Where Comfort Meets Style! Open Saturday & Sunday 10] 30am - 11: 30am
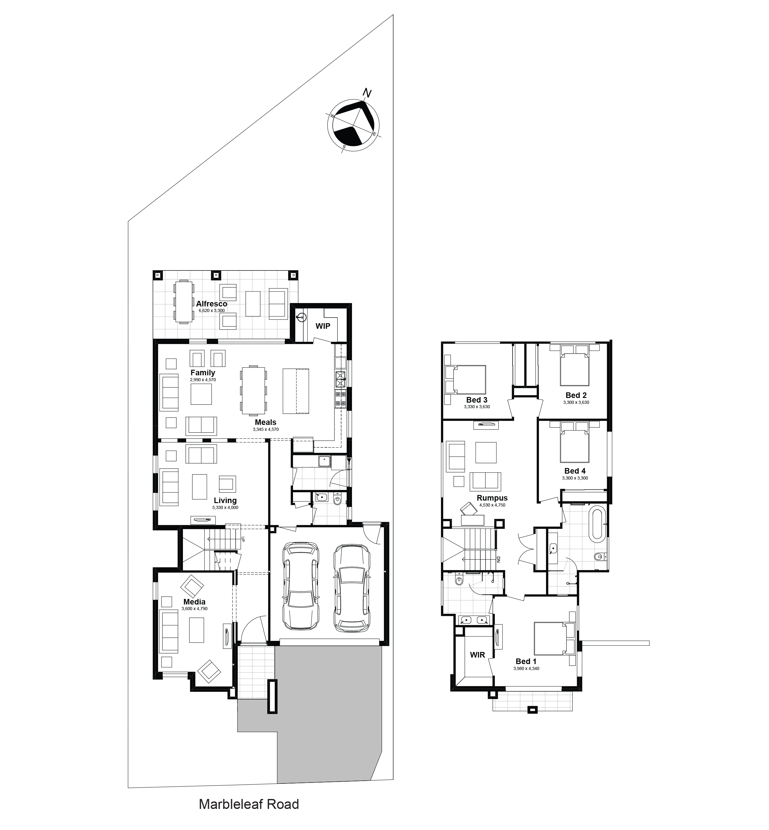
This well‑designed two‑storey floorplan offers generous space and smart functionality for modern family living. The ground floor features a dedicated media room, an open‑plan kitchen with walk‑in pantry, and connected living, meals, and family areas that flow effortlessly to a covered alfresco—perfect for entertaining.
Upstairs, the master suite includes a walk‑in robe and ensuite, while three additional bedrooms surround a central rumpus, creating an ideal retreat for kids or teens. With thoughtful zoning and practical inclusions throughout, this layout delivers comfort, flexibility, and room for families to grow.
You'll be impressed with the added features:
• Ducted reverse cycle air conditioning
• Flyscreens to all windows and sliding doors, block out blinds throughout and light filtering blinds to front elevation
• Quality flooring throughout
• Kitchen with 40mm stone bench tops with waterfall ends and stainless-steel appliances, microwave included, soft-close drawers and glass splashback
• Alarm system with ‘Touchnav’ LED code pad and two remotes, remote garage door, and solar system
• Concrete driveway, letterbox, clothesline, complete landscaping, and fencing as standard.
Disclaimer: Plans, drawings, and designs on this website are for marketing and illustrative purposes only. Dimensions are approximate, subject to survey and final subdivision plans (STCA). Plans are not to scale. Images, including artist impressions, may depict items not included in the sale. Purchasers should rely on their own enquiries and the Contract for Sale. Allam Homes Pty Limited may alter designs, specifications, dimensions, inclusions, and prices without notice. For full terms, visit www.allam.com.au.
4
2
2
Development Info of Madison Rise Estate - Woongarrah
This information is estimated by the OpenLot research team. Let us know here to provide up-to-date information about this development.
| Total new homes | 177 |
| Area size | 11.30 hectares |
| Growth Region | Central Coast Growth Areas |
| City council | Central Coast Council |
| Developer | Allam Property Group |
| Creative agency | Nimbl |
| Distance to | Newcastle CBD - 45 km south-west Sydney CBD - 75 km north |
Location & Map for Madison Rise Estate - Woongarrah
Visit Display Homes near Madison Rise Estate - Woongarrah
More House and Land Packages in Madison Rise Estate - Woongarrah
Vacancy Rate in Woongarrah NSW 2259
View full vacancy rate history in Woongarrah NSW 2259 via SQM Research.
Schools near Madison Rise Estate - Woongarrah
Here are 6 schools near Madison Rise Estate - Woongarrah:
K-12 Catholic Combined School
K-6 Government Primary School
K-6 Government Primary School
K-6 Government Primary School
K-12 Independent Combined School
K-12 Government Combined School
Popular Estates near Madison Rise Estate - Woongarrah
Latest New Home Articles for You
09/Mar/2026 | OpenLot.com.au
Victoria: Top 30 Most Searched Housing Developments (February 2026)
If you’ve been exploring housing opportunities in Victoria, February 2026...
20/Feb/2026 | OpenLot.com.au
Display Homes at Drouin Fields Estate: A Thriving Community in Drouin
Welcome to Drouin Fields, a place where beauty, space, and modern luxury ...
19/Feb/2026 | OpenLot.com.au
Display Homes at Manor Lakes Esate: A Thriving Waterside Community in Manor Lakes
A place where you can settle in, rather than just settle down. Named for ...
13/Feb/2026 | OpenLot.com.au
🏠 Victoria: Top 30 Most Searched Townhouse Developments – January 2026
11/Feb/2026 | OpenLot.com.au
🏡 Top 30 Most Searched Estates by State - January 2026
10/Feb/2026 | OpenLot.com.au
Victoria: Top 30 Most Searched Housing Developments (January 2026)
If you’ve been considering making a move in Victoria, January 2026 offere...
10/Feb/2026 | OpenLot.com.au
Queensland: Top 30 Most Searched Housing Developments (January 2026)
If you’ve been considering making a move in Queensland, January 2026 offe...
09/Feb/2026 | OpenLot.com.au
Western Australia: Top 30 Most Searched Housing Developments (January 2026)
If you’ve been considering making a move in Western Australia, January 20...
06/Feb/2026 | OpenLot.com.au
South Australia: Top 30 Most Searched Housing Developments (January 2026)
If you’ve been considering making a move in South Australia, January 2026...