Maisie Way Estate - Mollymook Logo

Lot 4: Stamford 270 @ Maisie Way Estate - Mollymook NSW 2539

Inclusions:
+ Hilltop golf course for your backyard
+ 5 minutes to Mollymook beach
+ Mixed Australian hardwood flooring
+ 2.7m ceilings throughout
+ 40mm deluxe caesarstone benchtops
+ Daikin ducted air conditioning system
G.J. Gardner Homes
Lot 4 Maisie Williams Drive: Stamford 270 Available
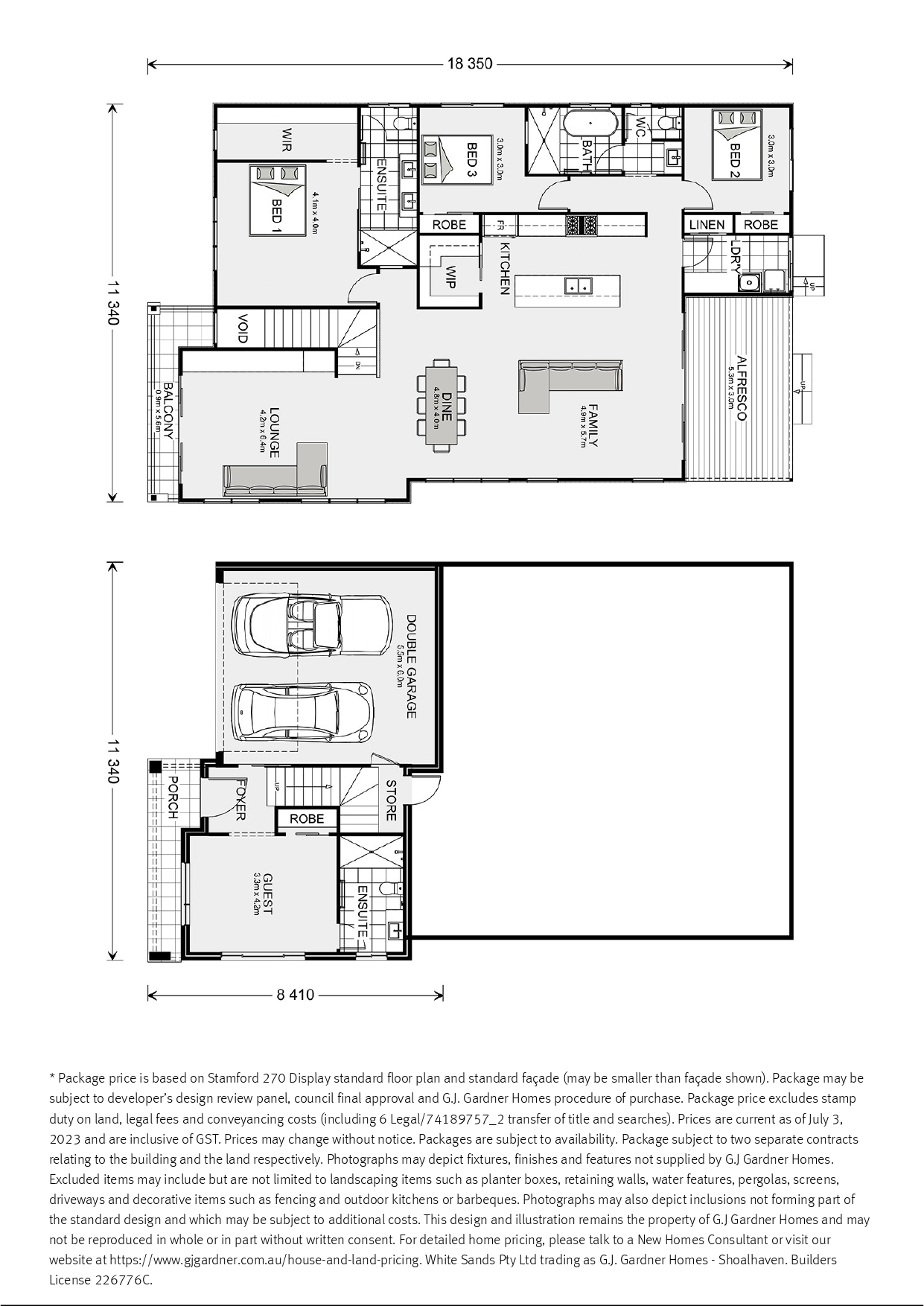
Bed  4 Bath  3 Car  2
Home Design: Stamford 270
Land Size: 702.00m²
Price: $1,972,577

Floor-plan for Lot 4: Stamford 270


Development Info of Maisie Way Estate - Mollymook

Total new homes 24
Area size 7.25 hectares
Growth Region Wollongong (Illawarra-Shoalhaven Region)
City council Shoalhaven City Council
Developer Hazcorp Pty Ltd, Cameron Brae Group
Project marketer Raine & Horne Mollymook / Ulladulla / Milton
Creative agency Delivery Creative Services

Location & Map for Maisie Way Estate - Mollymook

Loading...

Nearby Display Homes from G.J. Gardner Homes (Home Builder)


More House and Land Packages in Maisie Way Estate - Mollymook


More House and Land Packages by G.J. Gardner Homes (Home Builder)

Bed  4 Bath  2 Car  2
Suburb: Yea VIC 3717
Land Size: 5,164.00m²
Set amongst the scenic hills of Yea, Red Gum Views is in the most desired location of this thriving town.

Red Gum Views is offering stunning lifestyle blocks only a stone’s throw from the vibrant community of Yea. These rare blocks have all the amenities you need at your fingertips, including reputable schools, hospitals, a dentist, ample retail options and a myriad of dining choices.

All blocks will enjoy all town services available including water, electricity, sewer and telecommunications.

This Montville 327 from G.J Gardner includes:

+ Double Glazed windows and sliding doors
+ 2.5 Ceiling heights, LED Down Lights, Data Point, TV point, NBN
Cabinet
+ Caesarstone Benchtops to Kitchen & Bathrooms with soft close
laminate doors & draws
+ Local Trades and Local Suppliers

Contact the Sales Team today on 1300 739 638 today to secure your future at Red Gum Views.

*When you contact the number in this listing, your number, enquiry, call duration and time will be collected on behalf of realestate.com.au and provided to Core Projects Pty Ltd (Core Projects) to respond to your enquiry. For further details, see our Privacy Policy.

Prices are subject to change without notice and are exclusive of GST. Dates for Titles are estimated only and are subject to change. While every care is taken in preparing this listing, Core Projects makes no representations or warranties as to the currency or accuracy of the information which is subject to change at any time.
Price: $1,356,314
Bed  4 Bath  2 Car  2
Suburb: Yea VIC 3717
Land Size: 4,043.00m²
Set amongst the scenic hills of Yea, Red Gum Views is in the most desired location of this thriving town.

Red Gum Views is offering stunning lifestyle blocks only a stone’s throw from the vibrant community of Yea. These rare blocks have all the amenities you need at your fingertips, including reputable schools, hospitals, a dentist, ample retail options and a myriad of dining choices.

All blocks will enjoy all town services available including water, electricity, sewer and telecommunications.

This Maryvale 252 from G.J Gardner includes:

+ Double Glazed windows and sliding doors
+ 2.5 Ceiling heights, LED Down Lights, Data Point, TV point, NBN
Cabinet
+ Caesarstone Benchtops to Kitchen & Bathrooms with soft close
laminate doors & draws
+ Local Trades & Local Suppliers

Contact the Sales Team today on 1300 739 638 today to secure your future at Red Gum Views.

*When you contact the number in this listing, your number, enquiry, call duration and time will be collected on behalf of realestate.com.au and provided to Core Projects Pty Ltd (Core Projects) to respond to your enquiry. For further details, see our Privacy Policy.

Prices are subject to change without notice and are exclusive of GST. Dates for Titles are estimated only and are subject to change. While every care is taken in preparing this listing, Core Projects makes no representations or warranties as to the currency or accuracy of the information which is subject to change at any time.
Price: $1,003,493

Vacancy Rate in Mollymook NSW 2539

View full vacancy rate history in Mollymook NSW 2539 via SQM Research.


Schools near Maisie Way Estate - Mollymook

Here are 6 schools near Maisie Way Estate - Mollymook:

Lot 4: Stamford 270 by G.J. Gardner Homes
Maisie Way Estate - Mollymook