Marran Run Estate - Thomastown___1710367702_0

Lot 248: Parkville 196 @ Marran Run Estate - Thomastown VIC 3074

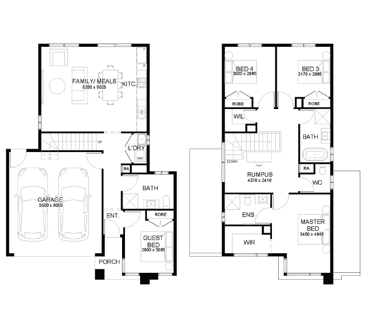
Marran Run offers a rare opportunity to build a brand-new home in the established and highly sought-after suburb of Thomastown, in Melbourne’s north. This quality house and land package by Sherridon Homes is perfect for those seeking a low-maintenance lifestyle in a stylish and modern home. Featuring four bedrooms, two bathrooms and two parking spaces, this home offers comfortable and functional living for couples, young families, or downsizers alike. Get in touch to learn more about this exciting opportunity.
Sherridon Homes
Lot 248: Parkville 196 Available
Bed  4 Bath  2 Car  2
Home Design: Parkville 196
Land Size: 362.50m²
Floor Area: 195.96m²
Price: $979,118

Development Info of Marran Run Estate - Thomastown

Total new homes 150
Area size 12.00 hectares
Growth Region Melbourne North Growth Corridor
City council Whittlesea City Council
Developer YourLand Developments
Project marketer Core Projects
Other names Whittlesea Public Gardens and Galada Tamboore/Marran Baba Parklands

Location & Map for Marran Run Estate - Thomastown

Loading...

Visit Display Homes near Marran Run Estate - Thomastown


More House and Land Packages in Marran Run Estate - Thomastown


More House and Land Packages by Sherridon Homes (Home Builder)

Bed  3 Bath  2 Car  2
Land Size: 256.00m²
Frontage: 16m
Depth: 16m
Floor Area: 14.35sq
Unlock Your Dream Home When You Build With Sherridon Homes In This Prime Location!
- Fixed Site Costs Including Rock Removal
- 7-star energy rated home
- Double-glazed awning windows and sliding doors to single-storey homes (where required)
- Double-glazed awning windows and sliding doors to double-storey homes throughout
- Colour-through concrete driveway (up to 36m2)
- Letterbox
- 3.5kw split system to living area
- 2590mm high ceilings throughout (ground floor of double storey homes only)
- Block out roller blinds throughout including 2 standard sliding doors
- Omega 60cm dishwasher ODW700X
- 20mm Caesarstone benchtop throughout (kitchen, bathroom & ensuite only)
- Downlights throughout


*Pricing Is Based On Developer Engineering Plans, Estate Guidelines And Plan Of Subdivision. Land Availability And Pricing Supplied By The Developer Are Subject To Change Without Notice. All House And Land Packages Are Subject To Developer Approval. Price Does Not Include Any Stamp Duty, Government, Legal Or Bank Charges. *Total Package Price Minus $10K FHOG (Subject To SRO Eligibility) The First Home Owners Grant Is A Government Incentive And Any Claims Will Be Lodged Externally. Photographs In This Flyer May Depict Fixtures, Finishes And Features Either Not Supplied Or Are Upgrade Options By Sherridon. All Floorplan, Facade Images And Photographs Have Been Used For Illustrative Purposes Only (Refer To Contract Documentation For Full Details) And May Not Represent The Final Product As Shown. Please Refer To Your Friendly New Home Consultant For An Exact List Of Inclusions With Detail. Sherridon Homes Reserves The Right To Amend Specification And Price Without Notice. VIC Builder's Licence: CDB-U 50039v
Price: $579,030
Bed  4 Bath  2 Car  2
Land Size: 294.00m²
Frontage: 14m
Depth: 21m
Floor Area: 24.63sq
Unlock Your Dream Home When You Build With Sherridon Homes In This Prime Location!
- Fixed Site Costs Including Rock Removal
- 7-star energy rated homes
- Double-glazed awning windows and sliding doors to single-storey homes (where required)
- Double-glazed awning windows and sliding doors to double-storey homes throughout
- 40mm edge category 1 stone bench top
- 1500mm freestanding bath
- Brickwork above all elevations including windows, external doors and over garage with face brick.
- Evaporative cooling throughout
- 900mm appliances
- Tiled shower bases
- Colour on concrete driveway (up to 35m2)
- Overhead cupboards to kitchen

*Pricing Is Based On Developer Engineering Plans, Estate Guidelines And Plan Of Subdivision. Land Availability And Pricing Supplied By The Developer Are Subject To Change Without Notice. All House And Land Packages Are Subject To Developer Approval. Price Does Not Include Any Stamp Duty, Government, Legal Or Bank Charges. *Total Package Price Minus $10K FHOG (Subject To SRO Eligibility) The First Home Owners Grant Is A Government Incentive And Any Claims Will Be Lodged Externally. Photographs In This Flyer May Depict Fixtures, Finishes And Features Either Not Supplied Or Are Upgrade Options By Sherridon. All Floorplan, Facade Images And Photographs Have Been Used For Illustrative Purposes Only (Refer To Contract Documentation For Full Details) And May Not Represent The Final Product As Shown. Please Refer To Your Friendly New Home Consultant For An Exact List Of Inclusions With Detail. Sherridon Homes Reserves The Right To Amend Specification And Price Without Notice. VIC Builder's Licence: CDB-U 50039v
Price: $748,000
Bed  4 Bath  2 Car  2
Land Size: 256.00m²
Frontage: 16m
Depth: 16m
Floor Area: 22.82sq
Unlock Your Dream Home When You Build With Sherridon Homes In This Prime Location!
- Fixed Site Costs Including Rock Removal
- 7-star energy rated home
- Double-glazed awning windows and sliding doors to single-storey homes (where required)
- Double-glazed awning windows and sliding doors to double-storey homes throughout
- Colour-through concrete driveway (up to 36m2)
- Letterbox
- 3.5kw split system to living area
- 2590mm high ceilings throughout (ground floor of double storey homes only)
- Block out roller blinds throughout including 2 standard sliding doors
- Omega 60cm dishwasher ODW700X
- 20mm Caesarstone benchtop throughout (kitchen, bathroom & ensuite only)
- Downlights throughout


*Pricing Is Based On Developer Engineering Plans, Estate Guidelines And Plan Of Subdivision. Land Availability And Pricing Supplied By The Developer Are Subject To Change Without Notice. All House And Land Packages Are Subject To Developer Approval. Price Does Not Include Any Stamp Duty, Government, Legal Or Bank Charges. *Total Package Price Minus $10K FHOG (Subject To SRO Eligibility) The First Home Owners Grant Is A Government Incentive And Any Claims Will Be Lodged Externally. Photographs In This Flyer May Depict Fixtures, Finishes And Features Either Not Supplied Or Are Upgrade Options By Sherridon. All Floorplan, Facade Images And Photographs Have Been Used For Illustrative Purposes Only (Refer To Contract Documentation For Full Details) And May Not Represent The Final Product As Shown. Please Refer To Your Friendly New Home Consultant For An Exact List Of Inclusions With Detail. Sherridon Homes Reserves The Right To Amend Specification And Price Without Notice. VIC Builder's Licence: CDB-U 50039v
Price: $684,500

Land Price Trend in Thomastown VIC 3074

  • In Oct - Dec 24, the median price for vacant land in Thomastown VIC 3074 was $527,000. *
  • From Jul - Sep 22 to Oct - Dec 24, the median price for vacant land in Thomastown VIC 3074 has increased 40.8%. *
  • From 2022 to 2024, the median price for vacant land in Thomastown VIC 3074 has increased 41.26%. *
* Price data comes from Valuer-General Victoria on 05/06/25

Vacancy Rate in Thomastown VIC 3074

View full vacancy rate history in Thomastown VIC 3074 via SQM Research.


Schools near Marran Run Estate - Thomastown

Here are 6 schools near Marran Run Estate - Thomastown:

Lot 248: Parkville 196 by Sherridon Homes
Marran Run Estate - Thomastown