Lot 20: Midtown 28 @ Neerim Lakes Estate - Neerim South VIC 3831

Enjoy spacious, modern living with this impressive house and land package in Neerim Lakes. Located at Lot 20 Blossom Retreat, the Midtown 28 by Boutique Homes delivers contemporary style with family-friendly proportions and quality inclusions throughout.

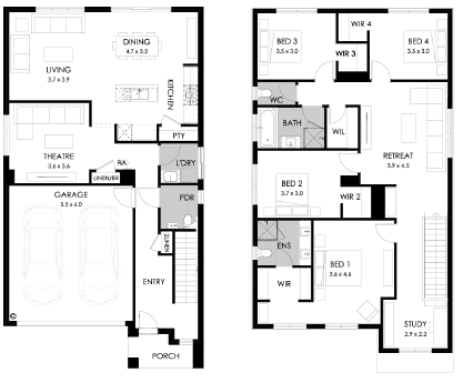
Set on a 556m² block, this 4-bedroom, 2-bathroom, 2-car home offers 258.47m² of living, complete with open-plan living, generous bedrooms and seamless indoor-outdoor flow. High ceilings, double glazing and premium finishes enhance everyday comfort.

Priced from $699,550, this home includes stone benchtops, 900mm appliances, quality flooring and a 7-star energy rating — ideal for families seeking space without compromise.

For more information, contact Allison – 0414 500 270 or Jennifer – 0415 968 198.
Boutique Homes
Lot 20 Blossom Retreat: Midtown 28 Available
Bed  4 Bath  2 Car  2
Home Design: Midtown 28
Land Size: 556.00m²
Floor Area: 258.47sq
Orientation: North
Price: From $699,550

Floor-plan for Lot 20: Midtown 28


Development Info of Neerim Lakes Estate - Neerim South

Total new homes 30
Area size 2.46 hectares
Growth Region Gippsland Regional Growth Areas
City council Baw Baw Shire Council
Developer N/A
Project marketer Drouin Fields
Distance to Melbourne CBD - 90 km east

Location & Map for Neerim Lakes Estate - Neerim South

Loading...

Nearby Display Homes from Boutique Homes (Home Builder)


Visit Display Homes near Neerim Lakes Estate - Neerim South


More House and Land Packages in Neerim Lakes Estate - Neerim South


More House and Land Packages by Boutique Homes (Home Builder)

Bed  4 Bath  2 Car  2
Suburb: Tarneit VIC 3029
Land Size: 400.00m²
Floor Area: 237.28m²
Verdant Hill is a master planned community with 1400 residential lots located in the Western growth corridor suburb of Tarneit and conveniently located only 35km to the Melbourne CBD.

Key Features of Verdant Hill:

• 59 hectares of parklands including two wetland areas with bike and walking paths.
• Generous sized lots ranging from 250m2 to 750m2
• Sports pavilion, 16 tennis courts and 2 AFL/cricket grounds
• Just 1.4km to Tarneit Train Station and only 26min to the Melbourne CBD
• Only 2km to Tarneit Central Shopping Centre
• Within close proximity to over 20 local Primary and Secondary schools.

This package from Metricon includes:

• Verdant Hill is a master planned community with 1400 residential lots located in the Western growth corridor suburb of Tarneit and conveniently located only 35km to the Melbourne CBD.

Key Features of Verdant Hill:

• 59 hectares of parklands including two wetland areas with bike and walking paths.
• Generous sized lots ranging from 250m2 to 750m2
• Sports pavilion, 16 tennis courts and 2 AFL/cricket grounds
• Just 1.4km to Tarneit Train Station and only 26min to the Melbourne CBD
• Only 2km to Tarneit Central Shopping Centre
• Within close proximity to over 20 local Primary and Secondary schools.

This package from Boutique Homes includes:

• Fixed site costs
• Metro facade included
• 7-Star energy rating
• Low E Double glazed thermally broken awning windows
• Low E Double glazed sliding stacker doors
• 3.5kW solar PV system
• Quality flooring throughout
• 2400mm high ceilings
• 900mm Westinghouse kitchen appliances
• 20mm stone benchtops to kitchen
• Quality chrome or matt black tapware, throughout
• Quality Dulux paint
• 25 Year Structural Guarantee & 12 Month Maintenance
• Opticomm Fibre Connection
• Recycled Water Connection

With demand high don’t miss your opportunity to secure your preferred lot and be a part of the Verdant Hill community.

Feel free to visit our onsite display suite located on the corner of Derrimut Rd and collect an information pack.

^ When you contact the number in this listing, your number, enquiry, call duration and time will be collected on behalf of realestate.com.au and provided to the Agency to respond to your enquiry. For further details, see our Privacy Policy.

With demand high don’t miss your opportunity to secure your preferred lot and be a part of the Verdant Hill community.

Feel free to visit our onsite display suite located on the corner of Derrimut Rd and collect an information pack.
Price: $742,200
Bed  4 Bath  2 Car  2
Suburb: Wollert VIC 3750
Land Size: 392.00m²
Floor Area: 232m²
Orientation: East
Est. Land Registration: Aug 2026
The Seville creates a peaceful space in an intuitively designed floorplan. This home design has everything you need: four bedrooms, two bathrooms, a double garage, a gorgeous open-plan kitchen, loads of storage, a home theatre and a covered outdoor entertaining area. But the cleverest thing about the Seville, is its feeling of calm.

Builder Inclusions
7-Star energy rating
Double glazed thermally broken awning windows
Quality floor coverings throughout
Fisher & Paykel oven, cooktop and rangehood
2550mm ceiling height to ground floor
25 year structural guarantee & 12 month maintenance

About Stockland Aurora - Build your forever home in Melbourne's North

Once you build your dream home in Aurora, you’ll never want to leave. Everything you need to live your best life is waiting for you here, just 31km north of Melbourne CBD.

You’ll find parks and playgrounds, schools and bike paths, community centres, cafes and shopping centres. You’ll make connections with friendly neighbours in a real community designed with family and fun in mind.

About the Developer - The Stockland Story

For more than 70 years, we have been creating and curating communities with people at the heart of the places we create.

As one of Australia’s largest diversified property groups, we are building on our legacy, helping more Australians achieve the dream of home ownership and creating places and spaces full of energy, soul and life - from residential and land lease communities, through to retail town centres, workplaces and logistics assets.

Our purpose - a better way to live - is central to everything we do.

*Price correct at time of publication and is subject to change without notice or obligation. Applies to selected House & Land Package only. Subject to availability. Stockland is only responsible for the sale of the land. Price is based on the Builder’s standard plans and specifications, standard inclusions and preferred building surveyor. Price does not include stamp duty, registration fees, additional costs that may be incurred under the Building Contract (e.g. due to delays in titling the lot) or any other incidental fees associated with the acquisition of land or a home or the construction of a home. The images on this web page are for illustrative purposes only and may depict features (such as landscaping, fencing and façade elements), items or inclusions which are excluded from the price. For more information, speak to a Stockland Sales Professional.
Price: $915,000 *

Land Price Trend in Neerim South VIC 3831

  • In Oct - Dec 23, the median price for vacant land in Neerim South VIC 3831 was $300,000. *
  • From Oct - Dec 17 to Oct - Dec 23, the median price for vacant land in Neerim South VIC 3831 has increased 130.77%. *
  • From 2008 to 2023, the median price for vacant land in Neerim South VIC 3831 has increased 273.13%. *
* Price data comes from Valuer-General Victoria on 05/06/25

Vacancy Rate in Neerim South VIC 3831

View full vacancy rate history in Neerim South VIC 3831 via SQM Research.


Schools near Neerim Lakes Estate - Neerim South

Here are 6 schools near Neerim Lakes Estate - Neerim South:

Lot 20: Midtown 28 by Boutique Homes
Neerim Lakes Estate - Neerim South