Nth Qtr Estate - Newborough Logo_0
Ranch-Style Rarity on 617m² | Titles Sept 2026 | From $549,500.

True ranch-style homes on large blocks are becoming increasingly rare — and at this price point, even more so.

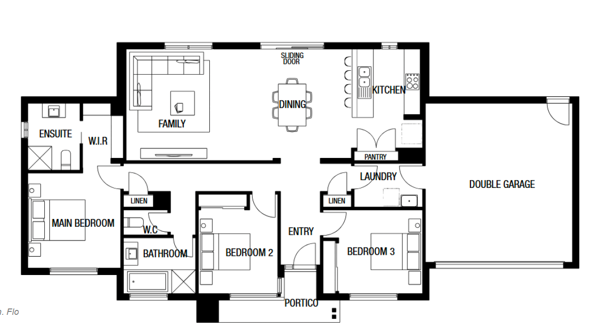
Set on a generous 617m² allotment, the Nullarbor 19 offers the wide, practical layout buyers love, with 3 bedrooms, 2 bathrooms and a double garage — all designed for functional family living and strong rental appeal.

Land is anticipated to title in September 2026, giving you time to plan ahead.

Act now to obtain your building permit before the end of this year and retain the option for a gas connection, ahead of upcoming Victorian Government changes restricting new gas connections. This provides valuable flexibility for heating and cooking preferences.

Conveniently located just 5 minutes’ drive to Moe Train Station and Moe Shopping Centre, and within walking distance to the future town centre, the location supports both lifestyle convenience and long-term growth potential.

Quality inclusions include:
• 2550mm ceilings
• Stylish laminate flooring to living areas
• Stone benchtops
• 900mm stainless steel appliances
• Double glazed windows
• 7-star energy rating
• Ducted heating
• Downlights throughout
• Colourbond roof
• NBN provision
• Allowance for site costs

From $549,500, this represents exceptional value in today’s market.

Opportunities like this do not stay available for long — secure your position now before prices adjust.
Australian Building Company
2: Lot 89 Centre Way Available
Bed  4 Bath  2 Car  2
Land Size: 617.00m²
Floor Area: 19sq
Orientation: East
Price: $549,500

Development Info of Nth Qtr Estate - Newborough

Total new homes 328
Area size N/A
Growth Region Gippsland Regional Growth Areas
City council Latrobe City Council
Developer Solovey
Project marketer Latitude Real Estate
Other names North Quarter

Location & Map for Nth Qtr Estate - Newborough

Loading...

Nearby Display Homes from Australian Building Company (Home Builder)


More House and Land Packages in Nth Qtr Estate - Newborough


More House and Land Packages by Australian Building Company (Home Builder)

Bed  4 Bath  2 Car  2
Land Size: 350.00m²
Floor Area: 184sq
Australian Building Company Home & Land Package, Easy As ABC!
LLOYD 20, COVE FAÇADE, LOT 322 MIRAGE CRESCENT, WARRAGUL 3820, LOOM

If you're an eligible first home buyer, then you can apply for the First Home Owners' Grant, which is $10,000<, to this home and land package. At Metricon, we've helped thousands of first home buyers realise their new home dreams, and we can help you too.
To walk through our display homes without leaving your home, check out our full range of virtual tours https://abchomes.com.au/vic/melbourne/offers/virtual-tours • 7 star energy rating
• Site cost allowance
• Eaves to façade
• Quality tiles to bathrooms, ensuite and laundry
• Tiled shower base
• Stylish stainless steel appliances
• Ducted gas heating WHO ARE WE? The Australian Building Company is all about making it easier and simpler for Australians to build beautiful new homes that always offer exceptional value for money. Our award-winning homes are created by top home designers to suit the requirements of modern Australian families– families who don't want to break the bank just to own their own home. We offer designs to suit everyone from a single person or couple, right up to a fast-growing family with a bunch of kids and teens. Single storey or double storey, we've got you covered. ‘ABC' simply means great homes at great prices, built to last. Our ‘Easy As' 3 step process makes getting into your home a breeze. We have simplified the process to save you stress, and make your new build more affordable and faster than ever. THE AGENT: Hi there! If this package doesn't tick every box, then please don't hesitate to get in touch and I can create a home specifically around your needs, in your dream location. We regularly have a range of exclusive packages with our developer partners, so I can get you on the list for new releases before they are advertised. I understand how tricky getting into your dream home, or buying that perfect investment can be, so get in touch and let me help you navigate the process for you. To explore our full range of packages throughout Victoria, including a wide range of developer exclusives, head to our website https://abchomes.com.au/vic/house-land DISCLAIMER: Price excludes upgrade items above standard specification such as feature render and bricks, front entrance timber decking, front entry door, brick infills above garage, external lighting, fencing, concrete paths and driveway. Façade Image may also contain items not supplied by Australian Building Company, namely landscaping and planter boxes. Floorplan may not reflect developer guidelines and depicts the base façade. Package is correct at time of publication, availability, images, inclusions and prices are subject to change due to circumstances that may affect the price as set out in the building contract (including the land registration date not being met), changes in local, state or federal government laws and developer approval. Land is supplied by developer, land prices and availability are subject to change without notice. Advertised Package Price is based on Australian Building Company's standard inclusions, any additional inclusions listed, Australian Building Company's preferred siting of the home and the expected land titling date as notified by the developer and is subject to Australian Building Company's price hold expiry date by which the owner must include essential information to Australian Building Company to commence construction, including land title. Package price excludes customer account opening fees, stamp duty on land, legal fees and conveyancing costs including titles and property report. Typical site costs allowance is included in the price, additional site costs may apply if site survey and soil tests indicate footings and site works different to those expected for the location. Additional costs may incur if there are bushfire, wind rating or acoustic requirements. For more information on pricing and inclusions please speak with an Australian Building Company New Home Advisor. Newfield Real Estate Pty Ltd ACN 159 312 722, Licence number 028051L. VIC Builder's Licence: CDB-U 52967 #For details on our Lifetime structural guarantee and other terms and conditions visit www.abchomes.com.au/vic/melbourne/terms-and-conditions <State government conditions and eligibility criteria will apply. To see if you qualify visit www.sro.vic.gov.au/first-home-owner.
Price: $586,745
Bed  4 Bath  2 Car  2
Land Size: 488.00m²
Floor Area: 230sq
Australian Building Company Home & Land Package, Easy As ABC!
SAVILLE 25, YARRAGUL FAÇADE, LOT 65 DAZZLER ROAD, WARRAGUL, THE LOOM

If you're an eligible first home buyer, then you can apply for the First Home Owners' Grant, which is $10,000<, to this home and land package. At Metricon, we've helped thousands of first home buyers realise their new home dreams, and we can help you too.
To walk through our display homes without leaving your home, check out our full range of virtual tours https://abchomes.com.au/vic/melbourne/offers/virtual-tours • 7 star energy rating
• Site cost allowance
• Eaves to façade
• Quality tiles to bathrooms, ensuite and laundry
• Tiled shower base
• Stylish stainless steel appliances
• Ducted gas heating WHO ARE WE? The Australian Building Company is all about making it easier and simpler for Australians to build beautiful new homes that always offer exceptional value for money. Our award-winning homes are created by top home designers to suit the requirements of modern Australian families– families who don't want to break the bank just to own their own home. We offer designs to suit everyone from a single person or couple, right up to a fast-growing family with a bunch of kids and teens. Single storey or double storey, we've got you covered. ‘ABC' simply means great homes at great prices, built to last. Our ‘Easy As' 3 step process makes getting into your home a breeze. We have simplified the process to save you stress, and make your new build more affordable and faster than ever. THE AGENT: Hi there! If this package doesn't tick every box, then please don't hesitate to get in touch and I can create a home specifically around your needs, in your dream location. We regularly have a range of exclusive packages with our developer partners, so I can get you on the list for new releases before they are advertised. I understand how tricky getting into your dream home, or buying that perfect investment can be, so get in touch and let me help you navigate the process for you. To explore our full range of packages throughout Victoria, including a wide range of developer exclusives, head to our website https://abchomes.com.au/vic/house-land DISCLAIMER: Price excludes upgrade items above standard specification such as feature render and bricks, front entrance timber decking, front entry door, brick infills above garage, external lighting, fencing, concrete paths and driveway. Façade Image may also contain items not supplied by Australian Building Company, namely landscaping and planter boxes. Floorplan may not reflect developer guidelines and depicts the base façade. Package is correct at time of publication, availability, images, inclusions and prices are subject to change due to circumstances that may affect the price as set out in the building contract (including the land registration date not being met), changes in local, state or federal government laws and developer approval. Land is supplied by developer, land prices and availability are subject to change without notice. Advertised Package Price is based on Australian Building Company's standard inclusions, any additional inclusions listed, Australian Building Company's preferred siting of the home and the expected land titling date as notified by the developer and is subject to Australian Building Company's price hold expiry date by which the owner must include essential information to Australian Building Company to commence construction, including land title. Package price excludes customer account opening fees, stamp duty on land, legal fees and conveyancing costs including titles and property report. Typical site costs allowance is included in the price, additional site costs may apply if site survey and soil tests indicate footings and site works different to those expected for the location. Additional costs may incur if there are bushfire, wind rating or acoustic requirements. For more information on pricing and inclusions please speak with an Australian Building Company New Home Advisor. Newfield Real Estate Pty Ltd ACN 159 312 722, Licence number 028051L. VIC Builder's Licence: CDB-U 52967 #For details on our Lifetime structural guarantee and other terms and conditions visit www.abchomes.com.au/vic/melbourne/terms-and-conditions <State government conditions and eligibility criteria will apply. To see if you qualify visit www.sro.vic.gov.au/first-home-owner.
Price: $654,646
Bed  4 Bath  2 Car  2
Land Size: 303.00m²
Floor Area: 212sq
Australian Building Company Home & Land Package, Easy As ABC!
OAKS 23, HORIZON FAÇADE, LOT 242 RIDGETOP BOULEVARD, WARRAGUL 3820, CROWNLEA

If you're an eligible first home buyer, then you can apply for the First Home Owners' Grant, which is $10,000<, to this home and land package. At Metricon, we've helped thousands of first home buyers realise their new home dreams, and we can help you too.
To walk through our display homes without leaving your home, check out our full range of virtual tours https://abchomes.com.au/vic/melbourne/offers/virtual-tours • 7 star energy rating
• Site cost allowance
• Eaves to façade
• Quality tiles to bathrooms, ensuite and laundry
• Tiled shower base
• Stylish stainless steel appliances
• Ducted gas heating Crownlea in Warragul offers a beautiful setting with sweeping views and a tranquil environment, perfect for those seeking a rural lifestyle with urban accessibility.
WHO ARE WE? The Australian Building Company is all about making it easier and simpler for Australians to build beautiful new homes that always offer exceptional value for money. Our award-winning homes are created by top home designers to suit the requirements of modern Australian families– families who don't want to break the bank just to own their own home. We offer designs to suit everyone from a single person or couple, right up to a fast-growing family with a bunch of kids and teens. Single storey or double storey, we've got you covered. ‘ABC' simply means great homes at great prices, built to last. Our ‘Easy As' 3 step process makes getting into your home a breeze. We have simplified the process to save you stress, and make your new build more affordable and faster than ever. THE AGENT: Hi there! If this package doesn't tick every box, then please don't hesitate to get in touch and I can create a home specifically around your needs, in your dream location. We regularly have a range of exclusive packages with our developer partners, so I can get you on the list for new releases before they are advertised. I understand how tricky getting into your dream home, or buying that perfect investment can be, so get in touch and let me help you navigate the process for you. To explore our full range of packages throughout Victoria, including a wide range of developer exclusives, head to our website https://abchomes.com.au/vic/house-land DISCLAIMER: Price excludes upgrade items above standard specification such as feature render and bricks, front entrance timber decking, front entry door, brick infills above garage, external lighting, fencing, concrete paths and driveway. Façade Image may also contain items not supplied by Australian Building Company, namely landscaping and planter boxes. Floorplan may not reflect developer guidelines and depicts the base façade. Package is correct at time of publication, availability, images, inclusions and prices are subject to change due to circumstances that may affect the price as set out in the building contract (including the land registration date not being met), changes in local, state or federal government laws and developer approval. Land is supplied by developer, land prices and availability are subject to change without notice. Advertised Package Price is based on Australian Building Company's standard inclusions, any additional inclusions listed, Australian Building Company's preferred siting of the home and the expected land titling date as notified by the developer and is subject to Australian Building Company's price hold expiry date by which the owner must include essential information to Australian Building Company to commence construction, including land title. Package price excludes customer account opening fees, stamp duty on land, legal fees and conveyancing costs including titles and property report. Typical site costs allowance is included in the price, additional site costs may apply if site survey and soil tests indicate footings and site works different to those expected for the location. Additional costs may incur if there are bushfire, wind rating or acoustic requirements. For more information on pricing and inclusions please speak with an Australian Building Company New Home Advisor. Newfield Real Estate Pty Ltd ACN 159 312 722, Licence number 028051L. VIC Builder's Licence: CDB-U 52967 #For details on our Lifetime structural guarantee and other terms and conditions visit www.abchomes.com.au/vic/melbourne/terms-and-conditions <State government conditions and eligibility criteria will apply. To see if you qualify visit www.sro.vic.gov.au/first-home-owner.
Price: $704,507

Land Price Trend in Newborough VIC 3825

  • In Oct - Dec 24, the median price for vacant land in Newborough VIC 3825 was $190,000. *
  • From Oct - Dec 17 to Oct - Dec 24, the median price for vacant land in Newborough VIC 3825 has increased 85.37%. *
  • From 2008 to 2024, the median price for vacant land in Newborough VIC 3825 has increased 177.5%. *
* Price data comes from Valuer-General Victoria on 05/06/25

Vacancy Rate in Newborough VIC 3825

View full vacancy rate history in Newborough VIC 3825 via SQM Research.


Schools near Nth Qtr Estate - Newborough

Here are 6 schools near Nth Qtr Estate - Newborough:

Lot 89: by Australian Building Company
Nth Qtr Estate - Newborough