
Lot 125 Ocean Grand Street by H&L Victoria - Ocean Grove
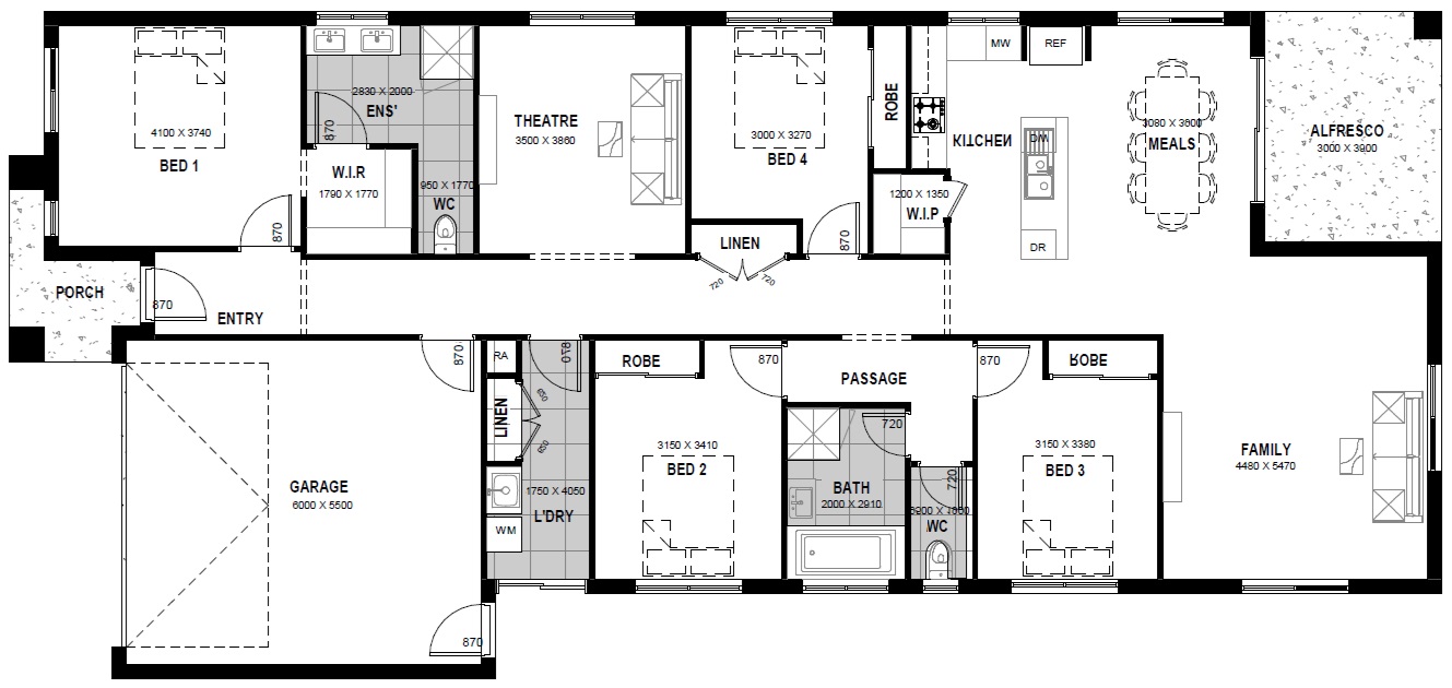
TITLED PREMIUM TURNKEY PARKVILLE 26
This is a NEW house and land package to be constructed, NOT an established home.
PREMIUM TURNKEY HOMES WITH MORE VALUE IN EVERY BASE PRICE
Featuring more than $70,000 worth of premium inclusions upfront, H&L Victoria provides First Home Buyers and busy Investors with a simplified process and a fully completed turnkey solution for their new home needs.
PREMIUM INCLUSIONS
- 7 Star energy rating
- Front & rear landscaping
- Half share fencing & driveway
- Flooring throughout
- Higher ceilings
- LED downlights throughout
- Modern appliances including dishwasher
- Overhead cupboards to kitchen
- Blinds throughout
- 5kW split system cooling
- Tiled shower bases
- Chrome finish double towel rails and toilet roll holders
- Framed mirror or vinyl sliding doors to robes
- Brick infills over windows
- Remote control garage
- Window locks & flyscreens to all openable windows
- Clothesline and letter box
- NBN connection
- 3kW PV solar panel system to roof
* This is a house and land package which has not been constructed. Please enquire to find out estimated build time. The facade image shown is for illustrative purposes only. Pricing corrects at time of publication, but subject to change without notice due to (not limited to) land delays, site conditions and regulation changes. Package price excludes stamp duty on land, legal fees and conveyancing costs including titles and property report. Floorplan is a representation of a standard facade unless otherwise stated. H & L reserves the right to alter the images or descriptions without notice. External & Internal photographs are for visual purposes only. Finance eligibility will depend on individual circumstances and applicable lending criteria.

4
2
2Location & Map of Ocean Grove
Visit Display Villages near Ocean Grove VIC 3226
More House and Land Packages by H&L Victoria (Home Builder)
Land Price Trend in Ocean Grove VIC 3226
- In Oct - Dec 24, the median price for vacant land in Ocean Grove VIC 3226 was $485,000. *
- From Oct - Dec 17 to Oct - Dec 24, the median price for vacant land in Ocean Grove VIC 3226 has increased 84.41%. *
- From 2008 to 2024, the median price for vacant land in Ocean Grove VIC 3226 has increased 187.32%. *
Vacancy Rate in Ocean Grove VIC 3226
View full vacancy rate history in Ocean Grove VIC 3226 via SQM Research.
Schools in Ocean Grove VIC 3226
There are 3 schools registered in on ACARA 2024
Prep-6 Government Primary School
Prep-6 Government Primary School
Prep-6 Catholic Primary School
Popular Estates near Lot 125 Ocean Grand Street by H&L Victoria
Latest New Home Articles for You
01/Dec/2025 | OpenLot.com.au
Display Homes at Bushmead: Modern Living in Bushmead
If you love the peace and tranquillity of the Australian bush, you’ll fee...
27/Nov/2025 | OpenLot.com.au
Display Homes at Eden Beach: Premium Coastal Living in Jindalee
26/Nov/2025 | OpenLot.com.au
Display Homes Near Me (VIC): Your Complete Guide to Display Villages Across Victoria
Finding the right display home in Victoria has never been easier, with do...
24/Nov/2025 | OpenLot.com.au
🏡 New Neighbourhoods Season 1 Recap
From the outset, New Neighbourhoods sets out to explore Australia’s dynam...
24/Nov/2025 | OpenLot.com.au
🏡 Suburb Profile: Moss Vale
Moss Vale is a suburb of approximately 79.56 square kilometres within the...
21/Nov/2025 | OpenLot.com.au
Display Homes at Averley: Elevated Living in Nar Nar Goon North
Imagine a place where native bushland complements timeless architecture, ...
18/Nov/2025 | OpenLot.com.au
Display Homes at Exford Waters: True Riverside Living in Weir Views
Discover a lifestyle shaped by nature and connection at Exford Waters, wh...
17/Nov/2025 | OpenLot.com.au
Display Homes at Crownlea: A Lifestyle of Space in Warragul
Embrace the good life and enjoy the very best views in Warragul at Warrag...
13/Nov/2025 | OpenLot.com.au
Display Homes at Bluestone: A Showcase of Style and Innovation in Tarneit
Get ready to immerse yourself in a world of inspiration and design excell...












