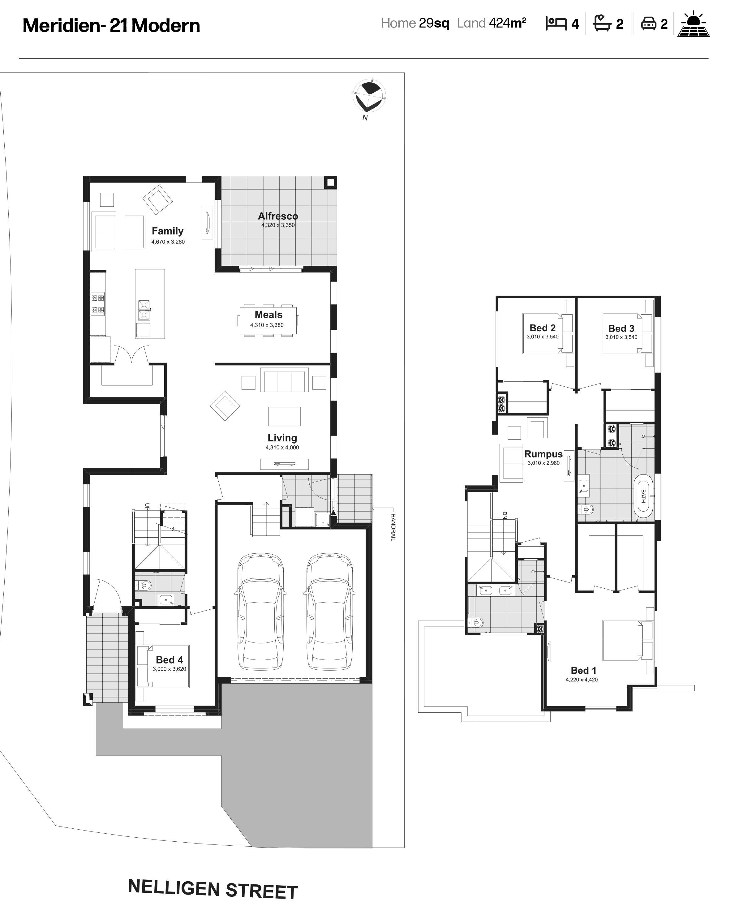
Family Home in Perfect Location

This stylish four-bedroom free-standing home in the sought-after Ravenswood Estate is sure to impress.
Designed for flexible family living, the floor plan offers versatility and comfort, with the fourth bedroom on the ground floor perfect for a home office or guest room. Light, airy tones flow throughout, complementing the open-plan kitchen and meals area and three generous living spaces. Every detail has been considered to create a home where you’ll feel like you’re on holiday all year round.

Features include;

• Ducted reverse cycle air conditioning
• Flyscreens to all openable windows and stacker doors, block out blinds throughout and light filtering blinds to the front elevation
• Ceiling fans to all bedrooms
• Engineered stone benchtops (20mm) with waterfall ends, tiled splash back, stainless steel double sink, Black cooking package and soft close drawers and doors
• Gainsborough Trilock Freestyle digital entry door furniture
• Clothes line to rear yard, Coloured concrete driveway and paths within boundary
• Buffalo turf to front and rear yards, Fencing to rear and side boundaries
• Solar system (as noted on plan)

Disclaimer: Plans, drawings, and designs on this website are for marketing and illustrative purposes only. Dimensions are approximate, subject to survey and final subdivision plans (STCA). Plans are not to scale. Images, including artist impressions, may depict items not included in the sale. Purchasers should rely on their own enquiries and the Contract for Sale. Allam Homes Pty Limited may alter designs, specifications, dimensions, inclusions, and prices without notice. For full terms, visit www.allam.com.au.
Lot 930 Nelligen Street Available
Bed  4 Bath  2 Car  2
Land Size: 424.00m²
Price: $1,259,000

Floor-plan for Lot 930:


Development Info of Ravenswood Estate - Tullimbar

Total new homes 350
Area size N/A
Growth Region Wollongong (Illawarra-Shoalhaven Region)
City council Shellharbour City Council
Developer Allam Property Group
Creative agency Nimbl
Distance to Wollongong CBD - 20 km south-west Sydney CBD - 88 km south-west

Location & Map for Ravenswood Estate - Tullimbar

Loading...

Visit Display Homes near Ravenswood Estate - Tullimbar


More House and Land Packages in Ravenswood Estate - Tullimbar

Bed  4 Bath  3 Car  2
Land Size: 451.00m²
Impressive Throughout
The Kahy offers exceptional versatility and smart design, making the most of its sloped block.
On the ground level, you’re welcomed by a flat driveway leading to a double garage, along with three generous bedrooms featuring built-in robes. The master suite includes a walk-in robe and ensuite, complemented by two inviting living areas, a spacious stone kitchen with gas cooking, and a balcony ideal for entertaining or summer barbecues.

On the lower ground floor, you’ll find an additional bedroom with its own ensuite and built-in robe — perfect for teenagers, guests, or in-law accommodation. This level also includes a rumpus room, extra powder room, and an alfresco area for relaxed outdoor living.

Practicality is maximised with under-house storage accessible from the side boundary, offering the perfect space to stow tools, garden gear, or kids’ toys.

Home features include:

• Ducted reverse cycle air conditioning
• Flyscreens to all openable windows and stacker doors, block out blinds throughout and light filtering blinds to front elevation
• Ceiling fans to all bedrooms
• Engineered stone benchtops (20mm) with waterfall ends, tiled splash back, stainless steel double sink, Black cooking package and soft close drawers and doors
• Gainsborough Trilock Freestyle digital entry door furniture
• Clothes line to rear yard, Coloured concrete driveway and paths within boundary
• Buffalo turf to front and rear yards, Fencing to rear and side boundaries
• Solar system (as noted on plan)

Disclaimer: Plans, drawings, and designs on this website are for marketing and illustrative purposes only. Dimensions are approximate, subject to survey and final subdivision plans (STCA). Plans are not to scale. Images, including artist impressions, may depict items not included in the sale. Purchasers should rely on their own enquiries and the Contract for Sale. Allam Homes Pty Limited may alter designs, specifications, dimensions, inclusions, and prices without notice. For full terms, visit www.allam.com.au.
Price: $1,319,000
Bed  5 Bath  3 Car  2
Land Size: 483.05m²
The Complete Package
The Cilantro is a thoughtfully designed home that caters perfectly to modern family living.

The ground floor offers flexibility for a home office or in-law accommodation, featuring a spacious bedroom and a full guest bathroom. Upstairs is the heart of the home, where the open-plan kitchen, dining, and family areas create an inviting space for everyday living and entertaining. A separate living room provides additional comfort and privacy, while four well-appointed bedrooms—each with built-in robes—offer ample space for the whole family. The master suite includes a walk-in robe and ensuite, providing a private retreat for parents.

Features include:

• Ducted reverse cycle air conditioning
• Flyscreens to all openable windows and stacker doors, block out blinds throughout and light filtering blinds to front elevation
• Ceiling fans to all bedrooms
• Engineered stone benchtops (20mm) with waterfall ends, tiled splash back, stainless steel double sink, Black cooking package and soft close drawers and doors
• Gainsborough Trilock Freestyle digital entry door furniture
• Clothes line to rear yard, Coloured concrete driveway and paths within boundary
• Buffalo turf to front and rear yards, Fencing to rear and side boundaries
• Solar system (as noted on plan)

Disclaimer: Plans, drawings, and designs on this website are for marketing and illustrative purposes only. Dimensions are approximate, subject to survey and final subdivision plans (STCA). Plans are not to scale. Images, including artist impressions, may depict items not included in the sale. Purchasers should rely on their own enquiries and the Contract for Sale. Allam Homes Pty Limited may alter designs, specifications, dimensions, inclusions, and prices without notice. For full terms, visit www.allam.com.au.
Price: $1,399,000
Bed  5 Bath  3 Car  2
Land Size: 458.80m²
Entertaining Family Home
The Cilantro is a thoughtfully designed home that caters perfectly to modern family living.

The ground floor offers flexibility for a home office or in-law accommodation, featuring a spacious bedroom and a full guest bathroom. Upstairs is the heart of the home, where the open-plan kitchen, dining, and family areas create an inviting space for everyday living and entertaining. A separate living room provides additional comfort and privacy, while four well-appointed bedrooms—each with built-in robes—offer ample space for the whole family. The master suite includes a walk-in robe and ensuite, providing a private retreat for parents.

Features include:

• Ducted reverse cycle air conditioning
• Flyscreens to all openable windows and stacker doors, block out blinds throughout and light filtering blinds to front elevation
• Ceiling fans to all bedrooms
• Engineered stone benchtops (20mm) with waterfall ends, tiled splash back, stainless steel double sink, Black cooking package and soft close drawers and doors
• Gainsborough Trilock Freestyle digital entry door furniture
• Clothes line to rear yard, Coloured concrete driveway and paths within boundary
• Buffalo turf to front and rear yards, Fencing to rear and side boundaries
• Solar system (as noted on plan)

Disclaimer: Plans, drawings, and designs on this website are for marketing and illustrative purposes only. Dimensions are approximate, subject to survey and final subdivision plans (STCA). Plans are not to scale. Images, including artist impressions, may depict items not included in the sale. Purchasers should rely on their own enquiries and the Contract for Sale. Allam Homes Pty Limited may alter designs, specifications, dimensions, inclusions, and prices without notice. For full terms, visit www.allam.com.au.
Price: $1,389,000

Vacancy Rate in Tullimbar NSW 2527

View full vacancy rate history in Tullimbar NSW 2527 via SQM Research.


Schools near Ravenswood Estate - Tullimbar

Here are 6 schools near Ravenswood Estate - Tullimbar:

Lot 930:
Ravenswood Estate - Tullimbar