Lot 19: @ River Oaks Estate - Oakville NSW 2765
A Spacious Family Home, Ready to Build at River Oaks
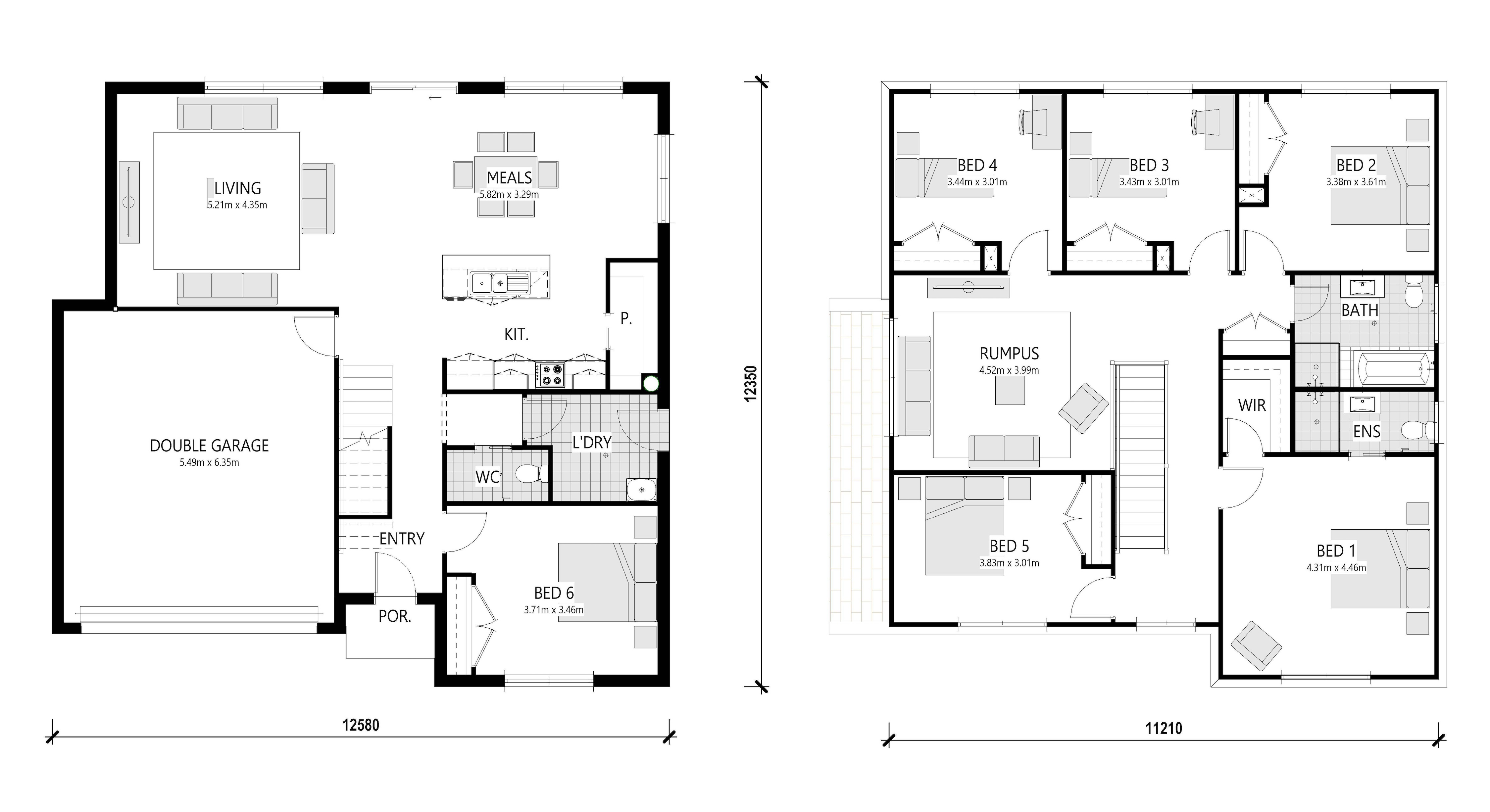
Featuring a substantial double-storey layout with multiple living zones and six bedrooms, this home is designed to support growing households — offering room to connect, retreat and adapt over time, all within a thoughtfully planned community surrounded by open space.
Home Highlights
- 6 bedrooms | 2 bathrooms | 2-car garage
- Approx. 271 m² home size
- Open-plan kitchen, meals and living area
- Separate living zones including upstairs rumpus
- Contemporary kitchen with 20 mm stone benchtops to kitchen and vanities
- 7-star BASIX compliance
- Automatic sectional garage door
- Land Size: 450 m²
- Price Guide: $1,409,900*
📞 Call 1800 1 227 853 to speak with our friendly sales team
📍 Visit the Sales Office at 35 Menin Road, Oakville (by appointment)
🌐 Learn more at castlegroup.com.au/project/riveroaks/
🍃Why River Oaks – Oakville?
- Registered Land – Ready to Build
- A thoughtfully planned community set within Oakville’s open, semi-rural surrounds
- Located in the low-density Vineyard Precinct with generous open space
- Designed to offer more room between homes and a calmer neighbourhood feel
- Larger lot sizes supporting flexible home design and long-term liveability
Location Highlights
- Close to Carmel Village Shopping Centre
- 10 minutes to Hawkesbury River
- 7 minutes to Scheyville National Park
- 11 minutes (5.7km) to Rouse Hill Town Centre
- 5 minutes to Vineyard Train Station
- Close to Tallawong Metro Station
- $75 million Future Boundary Road upgrade
- Close to Future Box Hill Business Park, Norwest Business Park and Sydney Business Park
- Zoned for highly regarded schools including Oakville Public and Santa Sophia Catholic College
All distances and measurements shown are approximate only.
Disclaimer: The information and images (including CGI) above provide an impression of River Oaks, Oakville and its surrounds and is not intended for any other purpose. The content includes information prepared by third parties (including but not limited to infrastructure upgrades, amenities etc.) which has not been independently verified and may be subject to change. All descriptions, maps, images including aerial shot are for illustration purposes, not to scale and are indicative only and CG reserves the right to make any changes without notice. Interested parties should make their own independent enquiries. Travel distances are measured using Google Maps and are approximately only. Land registration is estimated only and subject to weather conditions and council approvals. Package provided is prepared by Bellriver Homes and all dimensions in the floor plan are approximate only. Parties should rely on the contents of the relevant contract of sale and/or building contract to determine the relevant dimensions, areas, sale inclusions, specifications, and finishes. Pricing is correct as at time of listing and is subject to change and availability without notice.
6
2
2
Development Info of River Oaks Estate - Oakville
This information is estimated by the OpenLot research team. Let us know here to provide up-to-date information about this development.
| Total new homes | 200 |
| Area size | 28.50 hectares |
| Growth Region | Sydney North West Growth Areas |
| City council | Hawkesbury City Council |
| Developer | Freecity, Castle Group |
| Other names | Vineyard Precinct Estate |
| Distance to | Sydney CBD - 38 km north-west Sydney Airport - 44 km north-west |
Location & Map for River Oaks Estate - Oakville
Visit Display Homes near River Oaks Estate - Oakville
More House and Land Packages in River Oaks Estate - Oakville
Vacancy Rate in Oakville NSW 2765
View full vacancy rate history in Oakville NSW 2765 via SQM Research.
Schools near River Oaks Estate - Oakville
Here are 6 schools near River Oaks Estate - Oakville:
K-6 Government Primary School
K-6 Government Primary School
K-6 Catholic Primary School
K-12 Independent Combined School
U Government Special School
K-12 Independent Combined School
Suburb Planning Review in Oakville NSW 2765
Oakville is approximately 14.6 square kilometres within the City of Hawkesbury, forming part of the Sydney Basin area in New South Wales, located 49 kilometres north-west of Sydney and located inland near the base of the Scheyville National Park.

The suburb boundary is located along Old Pitt Town Road, Midson Road, Martin Road and Scholfield Road to the north and Boundary Road to the east. Property boundaries make up the entire western and southern boundaries. Windsor Road and Killarney Chain of Ponds run parallel together outside of the southern boundary.
Broos Road, Smith Road and Old Stock Rte Road provide local road access (north to south) and connect the local road network found throughout Oakville. Brennan Dam Road, Henry Road, and Chapman Road provide southern connections to surrounding suburbs, while Scheyville Road and Old Stock Rte Road are to the north. Menin Road and Old Pitt Town Road provide access to the east, while Wolseley Road and Saunders Road to the west.
The suburb of Oakville is primarily rural land holdings, with Oakville found to contain the southern portion of the Scheyville National Park, rural residential properties. The suburb does not have a business district, though contains recreational areas, natural watercourses, water holes, dams and in proximity to national parks. New urban development is occurring in the southern portion of the suburb, where the boundary has been amended to form the suburb of Vineyard. Stage 1 of the Vineyard Precinct has been recognised and approved for future urban development.

North West Priority Growth Area(Oakville)
Sydney’s North West will form part of the new approach to planning in NSW, following a review by the Department of Planning Industry and Environment in partnership with the Greater Sydney Commission and Government Architect. The decision was made to deliver 51 growth precincts, with the state government able to target areas and local councils empowered to get the correct planning for their community. The precinct planning will occur in four different pathways, being:
- State-led strategic planning
- Collaborative planning between the State and councils
- State-led rezoning
- Council-led rezoning
Oakville is not part of the growth area, however the southern portion of the suburb has been amended to form the suburb of Vineyard and forms part of the North West Growth Area. The area will proceed under the Strategic Planning method, with early work by the Department, councils, State agencies and communities in the development of places and the planning frameworks that support them.

The Hawkesbury City Council prepared a Growth Centres Precinct Development Control Plan (DCP) that was adopted by the Secretary (or delegate) of the Department of Planning and Environment on 8 January 2018 and came into force on 18 January 2018, rezoning a portion of Oakville and amended the boundary for a new suburb of Vineyard.
The DCP was prepared to provide additional guidance to developers on how development is to occur in the Precinct and considerations undertake development in the Vineyard Precinct. The Council’s statutory development assessment will refer to the DCP and in conjunction with the Growth Centres SEPP.


Eastern Precinct (Stage1)
The eastern portion of Vineyard and a southern portion of Oakville created the new Precinct., which set out the new road, open space and drain network for the area. The Precinct was provided with new density levels for residential areas, preferred new school location and retail, as well as environmental heritage values.
The New South Wales State Government aimed to provide a new precinct that was an attractive and well-connected community, in proximity to public transport, community facilities, open space and retail.



Vision of Oakville
“Planning for the Vineyard Precinct responds to the need for new and diverse housing in Sydney that is well connected to major centres and employment, protects natural assets and encourages sustainable living. Consideration of the surrounding context, history and natural environment has informed the precinct planning process”.
“The Precinct will consist of a mix of housing types that will allow for greater choice for different household types. It predominantly provides for low density housing, with some medium density around the village centre and open spaces”.
“Places of significant heritage value, particularly the Pitt Town Common House, have been integrated into the planning of the Precinct to ensure protection through a sensitive design approach. The village centre will support retail, commercial and community services to promote community interaction”.
“Regional public transport accessibility has been provided through road connections to the nearby Vineyard railway station and a regional bus network along the major roads. A safe and permeable street network will promote accessibility, connectivity and social interaction. The provision of cycle ways and pedestrian connections, as well as public transport connections to surrounding centres, will promote a community that is less dependent on private vehicle use”.
Precinct Zoning of Oakville
The existing zoning will be amended to provide for future infrastructures to facilitate future development within the Hawkesbury City Council Growth Centres Precinct. A new village centre including a supermarket and some community facilities is planned to meet the local shopping needs of future residents.
A new road network has been designed to help provide safe streets for residents, cycling and walking paths, and provide direct access to the village centre. The new roads will enable bus services to connect people to surrounding suburbs and areas for schools, employment, retail, open spaces and services.
Pedestrian and cyclist facilities will be constructed along open space and Killarney Chain of Ponds that will access the new residential areas.


The rezoning of part of the Vineyard precinct will create a new community with shops, cafes and substantial green open space in Sydney's North West. Green spaces will be integrated with new homes with landscaping and tree planting along streets and in public domain areas, and with protected remnant stands of vegetation, for local residents to enjoy.
Oakville Suburb Summary
References
Vineyard – Stage 1 Precinct Rezoning
Hawkesbury City Council Growth Centres Precinct - Development Control Plan
Popular Estates near River Oaks Estate - Oakville
Latest New Home Articles for You
27/Jan/2026 | OpenLot.com.au
Display Homes at Stockland Wildflower Estate: A Smart Community in Piara Waters
Welcome to Wildflower, a vibrant new neighbourhood nestled in the heart o...
16/Jan/2026 | OpenLot.com.au
South Australia Top 30 Most Searched Housing Developments (December 2025)
15/Jan/2026 | OpenLot.com.au
Queensland: Top 30 Most Searched Housing Developments (December 2025)
If you’ve been tracking housing demand across Queensland, December 2025 p...
14/Jan/2026 | OpenLot.com.au
Victoria: Top 30 Most Searched Housing Developments (December 2025)
If you’ve been exploring housing opportunities in Victoria, December 2025...
14/Jan/2026 | OpenLot.com.au
Display Homes at Apsley Estate: A Masterplanned Community in Mandogalup
Apsley is a bold, 1,800-lot masterplanned community just 25 minutes south...
13/Jan/2026 | OpenLot.com.au
Western Australia: Top 30 Most Searched Housing Developments (December 2025)
If you’ve been keeping an eye on housing demand across Western Australia,...
12/Jan/2026 | OpenLot.com.au
New South Wales: Top 30 Most Searched Housing Developments (December 2025)
If you’ve been considering making a move in New South Wales, December 202...
07/Jan/2026 | OpenLot.com.au
🏡 Top 30 Most Searched Estates by State - December
06/Jan/2026 | OpenLot.com.au
Display Homes Near Me (WA): Your Complete Guide to Display Villages Across Western Australia
Finding the right display home in Western Australia has never been easier...