Lot 1805 Galactic Way by Sherridon Homes - Strathfieldsaye

Unlock Your Dream Home When You Build With Sherridon Homes In This Prime Location!

- Site Costs Allowance Including Rock Removal
- 7 Star energy Rated Homes
- Double-glazed awning windows and sliding doors (where required)
- Council & Developer Requirements
- Bushfire Measures To Meet BAL 12.5
- Colorbond Roof
- Floor Coverings Throughout
- Colour-on concrete driveway (up to 36m2)
- Letterbox
- 3.5kw Split System To Living Area
- 2590mm Ceilings To Single Storey & Ground Floor In Double Storey Homes
- Block Out Roller Blinds Throughout
- Dishwasher
- 20mm Stone Benchtop Throughout
- Downlights Throughout

*Pricing Is Based On Developer Engineering Plans, Estate Guidelines And Plan Of Subdivision. Land Availability And Pricing Supplied By The Developer Are Subject To Change Without Notice. All House And Land Packages Are Subject To Developer Approval. Price Does Not Include Any Stamp Duty, Government, Legal Or Bank Charges. *Total Package Price Minus $10K FHOG (Subject To SRO Eligibility) The First Home Owners Grant Is A Government Incentive And Any Claims Will Be Lodged Externally. Photographs In This Flyer May Depict Fixtures, Finishes And Features Either Not Supplied Or Are Upgrade Options By Sherridon. All Floorplan, Facade Images And Photographs Have Been Used For Illustrative Purposes Only (Refer To Contract Documentation For Full Details) And May Not Represent The Final Product As Shown. Please Refer To Your Friendly New Home Consultant For An Exact List Of Inclusions With Detail. Sherridon Homes Reserves The Right To Amend Specification And Price Without Notice. VIC Builder's Licence: CDB-U 50039v
Sherridon Homes
Lot 1805 Galactic Way, Strathfieldsaye VIC 3551 Available
Bed  4 Bath  3 Car  2
Land Size: 528.00m²
Frontage: 14m
Depth: 38m
Floor Area: 24.26sq
Price: $683,200

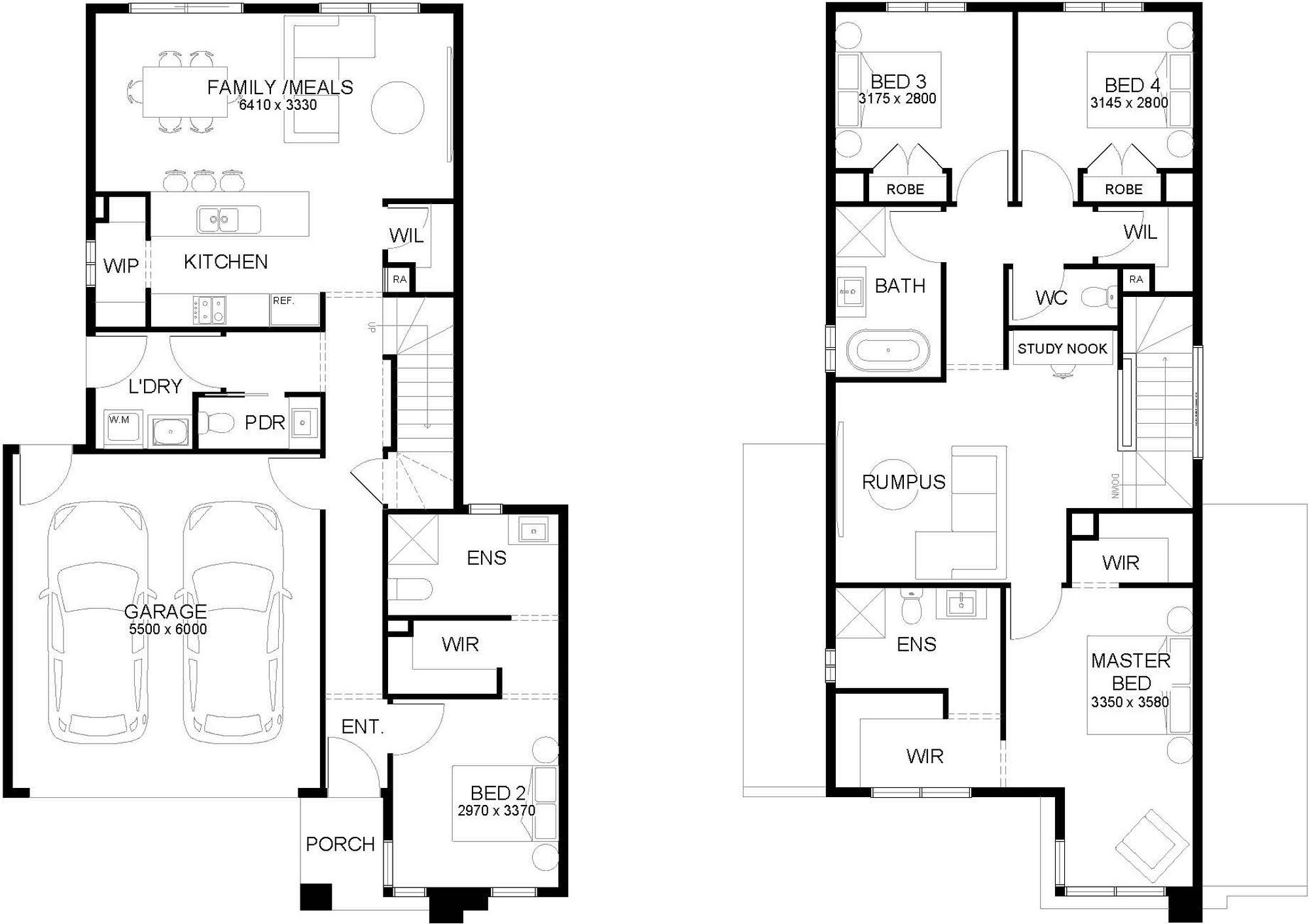
Floor-plan for Lot 1805: by Sherridon Homes


Location & Map of Strathfieldsaye

Loading...

Nearby Display Homes from Sherridon Homes (Home Builder)


Visit Display Villages near Strathfieldsaye VIC 3551


More House and Land Packages by Sherridon Homes (Home Builder)

Bed  3 Bath  2 Car  1
Land Size: 262.00m²
Frontage: 12.5m
Depth: 21m
Floor Area: 13.99sq
Unlock Your Dream Home When You Build With Sherridon Homes In This Prime Location!
- Fixed Site Cost Including Rock Removal
- 900mm appliance
- 20mm engineered stone bench tops
- Overhead cupboards
- Dishwasher
- NBN connection to home
- 2590 high ceilings
- Driveway 25m2
- Timber laminate to main area
- Brick Infill Over Windows And Door
- Minimum 7-Star Energy Rating For Standard House Plans
- Letter box
- Clothesline

*Pricing Is Based On Developer Engineering Plans, Estate Guidelines And Plan Of Subdivision. Land Availability And Pricing Supplied By The Developer Are Subject To Change Without Notice. All House And Land Packages Are Subject To Developer Approval. Price Does Not Include Any Stamp Duty, Government, Legal Or Bank Charges. *Total Package Price Minus $10K FHOG (Subject To SRO Eligibility) The First Home Owners Grant Is A Government Incentive And Any Claims Will Be Lodged Externally. Photographs In This Flyer May Depict Fixtures, Finishes And Features Either Not Supplied Or Are Upgrade Options By Sherridon. All Floorplan, Facade Images And Photographs Have Been Used For Illustrative Purposes Only (Refer To Contract Documentation For Full Details) And May Not Represent The Final Product As Shown. Please Refer To Your Friendly New Home Consultant For An Exact List Of Inclusions With Detail. Sherridon Homes Reserves The Right To Amend Specification And Price Without Notice. VIC Builder's Licence: CDB-U 50039v
Price: $580,906
Bed  4 Bath  2 Car  2
Land Size: 512.00m²
Frontage: 16m
Depth: 32m
Floor Area: 35.07sq
Unlock Your Dream Home When You Build With Sherridon Homes In This Prime Location!
- Fixed Site Cost Including Rock Removal
- 900mm appliance
- 20mm engineered stone bench tops
- Overhead cupboards
- Dishwasher
- NBN connection to home
- 2590 high ceilings
- Driveway 25m2
- Timber laminate to main area
- Brick Infill Over Windows And Door
- Minimum 7-Star Energy Rating For Standard House Plans
- Letter box
- Clothesline

*Pricing Is Based On Developer Engineering Plans, Estate Guidelines And Plan Of Subdivision. Land Availability And Pricing Supplied By The Developer Are Subject To Change Without Notice. All House And Land Packages Are Subject To Developer Approval. Price Does Not Include Any Stamp Duty, Government, Legal Or Bank Charges. *Total Package Price Minus $10K FHOG (Subject To SRO Eligibility) The First Home Owners Grant Is A Government Incentive And Any Claims Will Be Lodged Externally. Photographs In This Flyer May Depict Fixtures, Finishes And Features Either Not Supplied Or Are Upgrade Options By Sherridon. All Floorplan, Facade Images And Photographs Have Been Used For Illustrative Purposes Only (Refer To Contract Documentation For Full Details) And May Not Represent The Final Product As Shown. Please Refer To Your Friendly New Home Consultant For An Exact List Of Inclusions With Detail. Sherridon Homes Reserves The Right To Amend Specification And Price Without Notice. VIC Builder's Licence: CDB-U 50039v
Price: $897,098
Bed  3 Bath  2 Car  2
Land Size: 262.00m²
Frontage: 12.5m
Depth: 21m
Floor Area: 14.38sq
Unlock Your Dream Home When You Build With Sherridon Homes In This Prime Location!
- Fixed Site Costs Including Rock Removal
- 7-star energy rated home
- Double-glazed awning windows and sliding doors to single-storey homes (where required)
- Double-glazed awning windows and sliding doors to double-storey homes throughout
- Colour-through concrete driveway (up to 36m2)
- Letterbox
- 3.5kw split system to living area
- 2590mm high ceilings throughout (ground floor of double storey homes only)
- Block out roller blinds throughout including 2 standard sliding doors
- Omega 60cm dishwasher ODW700X
- 20mm Caesarstone benchtop throughout (kitchen, bathroom & ensuite only)
- Downlights throughout


*Pricing Is Based On Developer Engineering Plans, Estate Guidelines And Plan Of Subdivision. Land Availability And Pricing Supplied By The Developer Are Subject To Change Without Notice. All House And Land Packages Are Subject To Developer Approval. Price Does Not Include Any Stamp Duty, Government, Legal Or Bank Charges. *Total Package Price Minus $10K FHOG (Subject To SRO Eligibility) The First Home Owners Grant Is A Government Incentive And Any Claims Will Be Lodged Externally. Photographs In This Flyer May Depict Fixtures, Finishes And Features Either Not Supplied Or Are Upgrade Options By Sherridon. All Floorplan, Facade Images And Photographs Have Been Used For Illustrative Purposes Only (Refer To Contract Documentation For Full Details) And May Not Represent The Final Product As Shown. Please Refer To Your Friendly New Home Consultant For An Exact List Of Inclusions With Detail. Sherridon Homes Reserves The Right To Amend Specification And Price Without Notice. VIC Builder's Licence: CDB-U 50039v
Price: $593,923

Land Price Trend in Strathfieldsaye VIC 3551

  • In Oct - Dec 24, the median price for vacant land in Strathfieldsaye VIC 3551 was $295,000. *
  • From Oct - Dec 17 to Oct - Dec 24, the median price for vacant land in Strathfieldsaye VIC 3551 has increased 75.07%. *
  • From 2008 to 2024, the median price for vacant land in Strathfieldsaye VIC 3551 has increased 200%. *
* Price data comes from Valuer-General Victoria on 05/06/25

Vacancy Rate in Strathfieldsaye VIC 3551

View full vacancy rate history in Strathfieldsaye VIC 3551 via SQM Research.


Schools in Strathfieldsaye VIC 3551

There are 2 schools registered in on ACARA 2024

Lot 1805 Galactic Way by Sherridon Homes
Galactic Way, Strathfieldsaye VIC 3551
House & Land: 4 Bed | 3 Bath | 2 Car @ $683,200