Lot 4: The Kingston @ Taylors Crossing Estate - Cambewarra NSW 2540

Act Now to Secure Your Stamp Duty Rebate

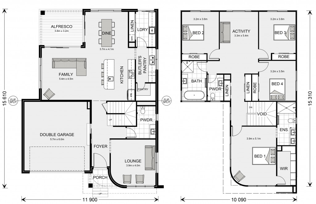
Functional and stylish, the Kingston provides separate living zones and elegant spatial flow in a stunning two storey family home.


Relax and entertain with family and guests in an open plan living area that provides seamless connections between indoor and outdoor spaces. The home’s covered alfresco area is positioned off the family and dining rooms, with a well-appointed kitchen and butler’s pantry at the heart of the home. A separate lounge room to the front provides a comfortable space to enjoy, relax and unwind.

The upper floor provides the private family zone with a kid’s activity, additional bedrooms, family bathroom and a master suite to the front including its own balcony, walk in robe and ensuite.


The layout allows the design to be flexible to site conditions including flipping the rear of the home or adding a split level to suit sloping sites.


Exclusive to G.J. Gardner Homes, the Kingston is a well-appointed family home that embraces the needs of family life, to be enjoyed for years to come.


Come Visit this Display Home at 4 Bickleigh Avenue, Wilton Greens NSW.


"This house and land package comes complete with:


- Carpet and Hardwood Timber Flooring Throughout


- Signature Inclusions (ask consultant for info)


- Palm Springs Facade (additional facades available at extra cost)


- Covered Alfresco and Porch


- Standard Site Costs, Council Fees & BASIX assessment


- Fixed Price until 30th June 2026


- House and Land subject to two separate contracts

For detailed home pricing please contact us today! NOTE: Package price is based on a standard floor plan and standard facade (actual facade may be smaller than facade shown). Package may be subject to developer’s design review panel, council final approval and G.J. Gardner Homes procedure of purchase. Package price excludes stamp duty on land, legal fees and conveyancing costs (including transfer of title and searches). Prices are inclusive of GST and may changed without notice. Package subject to two separate contracts. The land is being sold in conjunction with the developer and G.J Gardner Homes makes no guarantee the lot number advertised will be available at the time of purchase. This design and illustration remains the property of G.J Gardner Homes and may not be reproduced in whole or in part without written consent. For detailed home pricing, please talk to a New Homes Consultant. "
Lot 4 117 Lancaster Drive: The Kingston Available
Bed  4 Bath  2 Car  2
Home Design: The Kingston
Land Size: 785.00m²
Floor Area: 289sq
Price: From $1,526,844

Development Info of Taylors Crossing Estate - Cambewarra

Total new homes 171
Area size N/A
Growth Region Wollongong (Illawarra-Shoalhaven Region)
City council Shoalhaven City Council
Developer CAVI Developments
Project marketer One Agency Elite Property Group
Creative agency Wide Open Media

Location & Map for Taylors Crossing Estate - Cambewarra

Loading...

Visit Display Homes near Taylors Crossing Estate - Cambewarra


More House and Land Packages in Taylors Crossing Estate - Cambewarra

Bed  4 Bath  2 Car  2
Land Size: 776.00m²
Floor Area: 240sq
Handpicked Lots - Stamp Duty Rebate!
The Erskine 240 offers a thoughtfully designed, family-friendly floorplan that perfectly balances space, comfort and functionality.

Featuring three generously sized bedrooms with built-in robes, the private master suite is positioned for comfort and includes a walk-in robe and spacious ensuite. The heart of the home is set at the rear, where a light-filled open plan kitchen, dining and living area flows seamlessly to a large alfresco, ideal for entertaining or relaxed family living.

A separate lounge provides flexibility to create a rumpus room, media space or home theatre tailored to your lifestyle.

Premium Inclusions:

- 20mm stone benchtops

- 900mm stainless steel appliances

- BASIX sustainability requirements allowance

- Concrete driveway allowance

- Colorbond roof

- Ducted air conditioning

- LED downlights throughout

- Site cost allowance

- Vinyl plank flooring, carpet and tiles throughout

A home that combines modern finishes with practical design, perfect for growing families or those seeking relaxed contemporary living.

Images are for illustrative purposes only and may depict upgrades, fixtures, finishes and features not included in the advertised price. Pricing is based on current information provided by Hotondo Homes and is subject to change without notice. Package price is indicative only and dependent on final site conditions, engineering, council requirements and developer guidelines. Site costs are allowances only and may vary once final plans, soil tests and contour surveys are completed. All care has been taken to ensure accuracy; however, interested parties should make their own enquiries and obtain independent advice prior to entering into any contract.
Price: $1,187,500

Vacancy Rate in Cambewarra NSW 2540

View full vacancy rate history in Cambewarra NSW 2540 via SQM Research.


Schools near Taylors Crossing Estate - Cambewarra

Here are 6 schools near Taylors Crossing Estate - Cambewarra:

Lot 4: The Kingston by Designed for Modern Family Living – GJ Gardner Homes
Taylors Crossing Estate - Cambewarra