
Lot 125: @ Taylors Rise Estate - Deanside VIC 3336
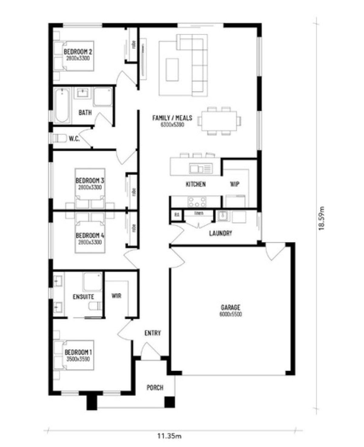
Situated on a spacious 448m² north-facing lot with a 14m frontage and 32m depth, this beautifully designed four-bedroom residence by Madison Property offers the perfect balance of style, space, and serenity. Located in the highly sought-after Taylors Rise estate, this home is ideal for families and those looking to enjoy elegant, low-maintenance living in a peaceful yet connected community.
Step inside and experience quality craftsmanship, a well-thought-out floorplan, and sunlit interiors that create a warm and welcoming atmosphere. Whether you're relaxing with family or entertaining friends, this home delivers on both comfort and functionality.
Set within a growing estate surrounded by established amenities, you’ll enjoy access to nearby parks, peaceful walking trails, and the exciting future addition of a local school and sports reserve. Just a short drive away, Caroline Springs and Taylors Hill provide a vibrant mix of shopping, dining, and leisure options.
With high-quality childcare and schools close by, along with reliable public transport—including bus services and nearby train stations—everything you need is within easy reach. Whether it’s a quick commute or a weekend outing, life here is simple and stress-free.
Only five minutes from Caroline Springs and Taylors Hill shopping centres, this is your chance to secure a modern family home in one of the west’s most promising and well-connected neighbourhoods. Taylors Rise offers more than just a place to live—it’s a lifestyle waiting to be enjoyed.
4
2
2Development Info of Taylors Rise Estate - Deanside
This information is estimated by the OpenLot research team. Let us know here to provide up-to-date information about this development.
| Total new homes | 921 |
| Area size | 64.00 hectares |
| Growth Region | Melbourne West Growth Corridor |
| City council | Melton City Council |
| Developer | Lawport Property Group |
| Project marketer | Latitude Real Estate |
| Creative agency | Tomorrow Agency |
| Distance to | Melbourne Airport - 12 km south-west Melbourne CBD - 23 km north-west |
Location & Map for Taylors Rise Estate - Deanside
Visit Display Homes near Taylors Rise Estate - Deanside
More House and Land Packages in Taylors Rise Estate - Deanside
Land Price Trend in Deanside VIC 3336
- In Oct - Dec 24, the median price for vacant land in Deanside VIC 3336 was $352,500. *
- From Jul - Sep 19 to Oct - Dec 24, the median price for vacant land in Deanside VIC 3336 has increased 7.96%. *
- From 2017 to 2024, the median price for vacant land in Deanside VIC 3336 has decreased 0.43%. *
Vacancy Rate in Deanside VIC 3336
View full vacancy rate history in Deanside VIC 3336 via SQM Research.
Schools near Taylors Rise Estate - Deanside
Here are 6 schools near Taylors Rise Estate - Deanside:
Prep-9 Government Combined School
7-10 Catholic Secondary School
10-12 Government Secondary School
7-12 Government Secondary School
Prep-6 Catholic Primary School
Prep-12 Independent Combined School
Popular Estates near Taylors Rise Estate - Deanside
Latest New Home Articles for You
28/Oct/2025 | OpenLot.com.au
🎥 New Neighbourhoods Episode 9: Melbourne South East
The ninth and final episode of New Neighbourhoods by OpenLot.com.au takes...
27/Oct/2025 | OpenLot.com.au
2025 National ABS Housing Data Report by OpenLot.com.au.
According to the latest ABS Housing Data Report 2025 by OpenLot.com.au, c...
20/Oct/2025 | OpenLot.com.au
🎥 New Neighbourhoods Episode 8: Gippsland
The eighth episode of New Neighbourhoods by OpenLot.com.au heads east to ...
13/Oct/2025 | OpenLot.com.au
🎥 New Neighbourhoods Episode 7: Melbourne North West
The seventh episode of New Neighbourhoods by OpenLot.com.au heads to Sunb...
07/Oct/2025 | OpenLot.com.au
🏡 Suburb Profile: Denman Prospect
Denman Prospect is a suburb of approximately 107 hectares within the Aust...
07/Oct/2025 | OpenLot.com.au
🏡 Suburb Profile: Googong
Googong is a suburb of approximately 780 hectares within the Queanbeyan-P...
07/Oct/2025 | OpenLot.com.au
🏡 Suburb Profile: Central Coast
Central Coast is a regional area, located in New South Wales on the coast...
07/Oct/2025 | OpenLot.com.au
🏡 Suburb Profile: Toowoomba
Toowoomba is a regional city, located on the crest of the Great Dividing ...
07/Oct/2025 | OpenLot.com.au
🏡 Suburb Profile: Cairns (Far North Queensland Region)
Cairns is a regional city, located along the north-eastern coastline betw...























