Lot 304 Drift Road by Metricon Homes - Warragul

More Home for Less

DELTA 21, AVALON FAÇADE, LOT 304 DRIFT ROAD, WARRAGUL, LILLIFIELD

If you're an eligible first home buyer, then you can apply for the First Home Owners' Grant, which is $10,000<, to this home and land package. At Metricon, we've helped thousands of first home buyers realise their new home dreams, and we can help you too.
At Metricon, we understand that great design is the sum of many parts, and for over 47 years, our mission has been to create homes where you truly love to live.
From the moment you step inside, you can't help but be impressed by the sleek modern design and wide-open, light-filled spaces of our 7 -Star energy efficient home.


We build beautiful and sustainable designed homes without the architect-designed price, our package includes:
• 7 star energy rating
• Lifetime Structural Guarantee#
• Personalised Studio M experience
• Floor coverings throughout
• 900mm kitchen appliances
• 20mm Zenith Stone benchtops to kitchen & bathroom
• Fibre Optic Package
• Coloured Concrete driveway (Up to 35m2)
• Developer and Council requirements^
• Site Cost Allowance*
• Stunning Façade Included
• Aluminium double glazed windows
• Colorbond Roof
Lillifield in Warragul invites you to enjoy rolling hills, scenic farmland, and a tranquil environment, all while being just minutes from local amenities and public transport.
At Metricon, we aim to provide you with innovative yet practical home designs that are designed to grow with your family's requirements well into the future. Since 1976, our design philosophy has remained the same - to design stunning homes where you'd love to live and which celebrate the diversity of Australian family life.

*Price excludes upgrade items above standard specification such as feature render and bricks, front entrance timber decking, front entry door, brick infills above garage, external lighting, fencing, concrete paths and driveway. Facade Image may also contain items not supplied by Metricon, namely landscaping and planter boxes. Aluminium double glazed windows are subject to specific home design, refer to plans.
Floorplan may not reflect developer guidelines and depicts the base Facade.
Package is correct at time of publication, availability, images, inclusions and prices are subject to change due to circumstances that may affect the price as set out in the building contract (including the land registration date not being met), changes in local, state or federal government laws and developer approval.Land is supplied by developer,land prices and availability are subject to change without notice.Advertised Package Price is based on Metricon's Freedom standard inclusions, any additional inclusions listed, Metricon's preferred siting of the home and the expected land titling date as notified by the developer and is subject to Metricon's price hold expiry date by which the owner must include essential information to Metricon to commence construction, including land title. Package price excludes customer account opening fees, stamp duty on land, legal fees and conveyancing costs including titles and property report. Typical site costs allowance is included in the price, additional site costs may apply if site survey and soil tests indicate footings and site works different to those expected for the location. Additional costs may incur if there are bushfire, wind rating or acoustic requirements. For more information on pricing and inclusions please speak with a Metricon New Home Advisor.
Newfield Real Estate Pty Ltd ACN 159 312 722, Licence number 028051L. VIC Builder's Licence: CDB-U 52967
#For details on our Lifetime structural guarantee and other terms and conditions visit www.metricon.com.au/terms-and-conditions
<State government conditions and eligibility criteria will apply. To see if you qualify visit www.sro.vic.gov.au/first-home-owner.
Metricon Homes
Lot 304 Drift Road, Warragul VIC 3820 Available
Bed  4 Bath  2 Car  2
Land Size: 392.00m²
Floor Area: 190sq
Price: $625,602

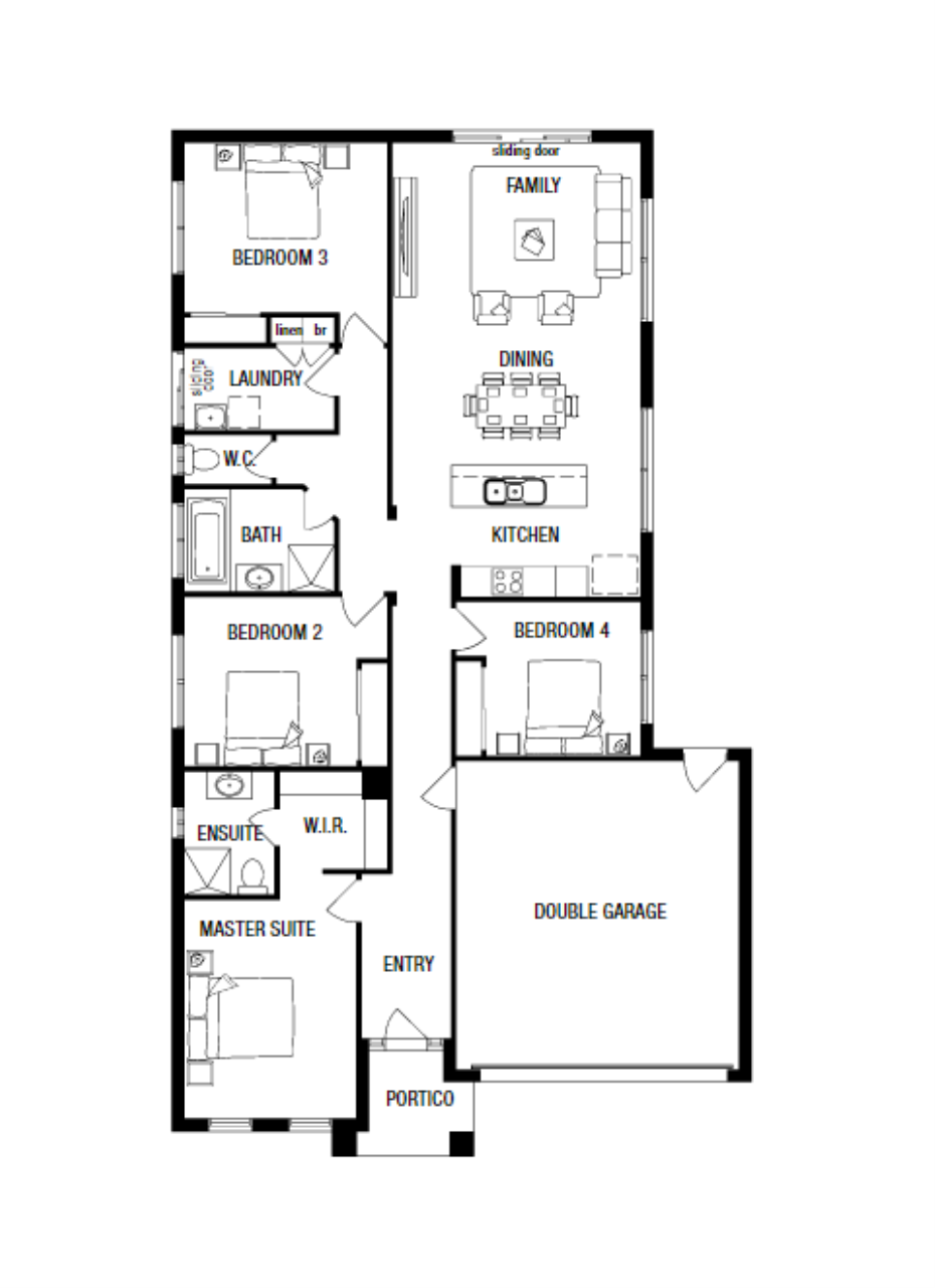
Floor-plan for Lot 304: by Metricon Homes


Location & Map of Warragul

Loading...

Visit Display Villages near Warragul VIC 3820


More House and Land Packages by Metricon Homes (Home Builder)

Bed  4 Bath  2 Car  2
Land Size: 857.00m²
Floor Area: 227sq
More Home for Less
MANTRA 24, KINGSTON FAÇADE, LOT 79 WHIMBREL CRESCENT, KIALLA, SEVEN CREEKS

If you're an eligible first home buyer, then you can apply for the First Home Owners' Grant, which is $10,000<, to this home and land package. At Metricon, we've helped thousands of first home buyers realise their new home dreams, and we can help you too.
At Metricon, we understand that great design is the sum of many parts, and for over 47 years, our mission has been to create homes where you truly love to live.
From the moment you step inside, you can't help but be impressed by the sleek modern design and wide-open, light-filled spaces of our 7 -Star energy efficient home.




We build beautiful and sustainable designed homes without the architect-designed price, our package includes:
• Lifetime Structural guarantee
• 7-star energy rating
• Double glazed windows & sliding doors
• PV solar system
• 2550mm Ceilings
• Floor Coverings Throughout
• Ducted Heating & Evaporative cooling
• 20mm zenith stone benchtops to kitchen
• 20mm zenith stone benchtops to bathrooms
• BAL 12.5 bushfire requirements
• 900mm Kitchen Appliances
• Dishwasher
• Driveway (Up to 35m2)
Seven Creeks is a premium estate designed for modern living, offering excellent access to schools, shopping centers, parks, and transport links. With a welcoming community and a focus on lifestyle, it's the perfect place to build your dream home.

At Metricon, we aim to provide you with innovative yet practical home designs that are designed to grow with your family's requirements well into the future. Since 1976, our design philosophy has remained the same - to design stunning homes where you'd love to live and which celebrate the diversity of Australian family life.

*Price excludes upgrade items above standard specification such as feature render and bricks, front entrance timber decking, front entry door, brick infills above garage, external lighting, fencing, concrete paths and driveway. Facade Image may also contain items not supplied by Metricon, namely landscaping and planter boxes. Aluminium double glazed windows are subject to specific home design, refer to plans.
Floorplan may not reflect developer guidelines and depicts the base Facade.
Package is correct at time of publication, availability, images, inclusions and prices are subject to change due to circumstances that may affect the price as set out in the building contract (including the land registration date not being met), changes in local, state or federal government laws and developer approval.Land is supplied by developer,land prices and availability are subject to change without notice.Advertised Package Price is based on Metricon's Freedom standard inclusions, any additional inclusions listed, Metricon's preferred siting of the home and the expected land titling date as notified by the developer and is subject to Metricon's price hold expiry date by which the owner must include essential information to Metricon to commence construction, including land title. Package price excludes customer account opening fees, stamp duty on land, legal fees and conveyancing costs including titles and property report. Typical site costs allowance is included in the price, additional site costs may apply if site survey and soil tests indicate footings and site works different to those expected for the location. Additional costs may incur if there are bushfire, wind rating or acoustic requirements. For more information on pricing and inclusions please speak with a Metricon New Home Advisor.
Newfield Real Estate Pty Ltd ACN 159 312 722, Licence number 028051L. VIC Builder's Licence: CDB-U 52967
#For details on our Lifetime structural guarantee and other terms and conditions visit www.metricon.com.au/terms-and-conditions
<State government conditions and eligibility criteria will apply. To see if you qualify visit www.sro.vic.gov.au/first-home-owner.
Price: $653,076
Bed  4 Bath  2 Car  2
Land Size: 519.00m²
Floor Area: 231sq
More Home for Less
ATESSA 25, ASCENT FAÇADE, LOT 213 PLANTATION ROAD, DROUIN, DROUIN FIELDS

If you're an eligible first home buyer, then you can apply for the First Home Owners' Grant, which is $10,000<, to this home and land package. At Metricon, we've helped thousands of first home buyers realise their new home dreams, and we can help you too.
At Metricon, we understand that great design is the sum of many parts, and for over 47 years, our mission has been to create homes where you truly love to live.
From the moment you step inside, you can't help but be impressed by the sleek modern design and wide-open, light-filled spaces of our 7 -Star energy efficient home.

Want to get a feel for this floorplan in person? This design is on display at Truganina or has a virtual tour available, head to metricon.com.au/display-homes to find out more.

• 7 star energy rating
• Lifetime Structural Guarantee#
• Personalised Studio M experience
• Floor coverings throughout
• BAL Requirement^
• 2550mm ceiling height to ground floor
• Stylish selection of fixtures and fittings
• 900mm kitchen appliances
• 20mm Zenith Stone benchtops to kitchen & bathroom
• Fibre Optic Package
• Coloured Concrete driveway (Up to 35m2)
• Developer and Council requirements^
• Site Cost Allowance*
• Stunning Façade Included
• Aluminium double glazed windows
• Colorbond Roof

Surrounded by rolling landscapes, Drouin Fields provides a serene lifestyle with easy access to local conveniences.
At Metricon, we aim to provide you with innovative yet practical home designs that are designed to grow with your family's requirements well into the future. Since 1976, our design philosophy has remained the same - to design stunning homes where you'd love to live and which celebrate the diversity of Australian family life.

*Price excludes upgrade items above standard specification such as feature render and bricks, front entrance timber decking, front entry door, brick infills above garage, external lighting, fencing, concrete paths and driveway. Facade Image may also contain items not supplied by Metricon, namely landscaping and planter boxes. Aluminium double glazed windows are subject to specific home design, refer to plans.
Floorplan may not reflect developer guidelines and depicts the base Facade.
Package is correct at time of publication, availability, images, inclusions and prices are subject to change due to circumstances that may affect the price as set out in the building contract (including the land registration date not being met), changes in local, state or federal government laws and developer approval.Land is supplied by developer,land prices and availability are subject to change without notice.Advertised Package Price is based on Metricon's Freedom standard inclusions, any additional inclusions listed, Metricon's preferred siting of the home and the expected land titling date as notified by the developer and is subject to Metricon's price hold expiry date by which the owner must include essential information to Metricon to commence construction, including land title. Package price excludes customer account opening fees, stamp duty on land, legal fees and conveyancing costs including titles and property report. Typical site costs allowance is included in the price, additional site costs may apply if site survey and soil tests indicate footings and site works different to those expected for the location. Additional costs may incur if there are bushfire, wind rating or acoustic requirements. For more information on pricing and inclusions please speak with a Metricon New Home Advisor.
Newfield Real Estate Pty Ltd ACN 159 312 722, Licence number 028051L. VIC Builder's Licence: CDB-U 52967
#For details on our Lifetime structural guarantee and other terms and conditions visit www.metricon.com.au/terms-and-conditions
<State government conditions and eligibility criteria will apply. To see if you qualify visit www.sro.vic.gov.au/first-home-owner.
Price: $728,182
Bed  4 Bath  2 Car  2
Land Size: 515.00m²
Floor Area: 231sq
More Home for Less
AMIRA 25S, AVALON FAÇADE, LOT 204 PLANTATION ROAD, DROUIN, DROUIN FIELDS

If you're an eligible first home buyer, then you can apply for the First Home Owners' Grant, which is $10,000<, to this home and land package. At Metricon, we've helped thousands of first home buyers realise their new home dreams, and we can help you too.
At Metricon, we understand that great design is the sum of many parts, and for over 47 years, our mission has been to create homes where you truly love to live.
From the moment you step inside, you can't help but be impressed by the sleek modern design and wide-open, light-filled spaces of our 7 -Star energy efficient home.

Want to get a feel for this floorplan in person? This design is on display at Armstrong Creek, Cobblebank, Lucas or has a virtual tour available, head to metricon.com.au/display-homes to find out more.

• 7 star energy rating
• Lifetime Structural Guarantee#
• Personalised Studio M experience
• Floor coverings throughout
• BAL Requirement^
• 2550mm ceiling height to ground floor
• Stylish selection of fixtures and fittings
• 900mm kitchen appliances
• 20mm Zenith Stone benchtops to kitchen & bathroom
• Fibre Optic Package
• Coloured Concrete driveway (Up to 35m2)
• Developer and Council requirements^
• Site Cost Allowance*
• Stunning Façade Included
• Aluminium double glazed windows
• Colorbond Roof

Surrounded by rolling landscapes, Drouin Fields provides a serene lifestyle with easy access to local conveniences.
At Metricon, we aim to provide you with innovative yet practical home designs that are designed to grow with your family's requirements well into the future. Since 1976, our design philosophy has remained the same - to design stunning homes where you'd love to live and which celebrate the diversity of Australian family life.

*Price excludes upgrade items above standard specification such as feature render and bricks, front entrance timber decking, front entry door, brick infills above garage, external lighting, fencing, concrete paths and driveway. Facade Image may also contain items not supplied by Metricon, namely landscaping and planter boxes. Aluminium double glazed windows are subject to specific home design, refer to plans.
Floorplan may not reflect developer guidelines and depicts the base Facade.
Package is correct at time of publication, availability, images, inclusions and prices are subject to change due to circumstances that may affect the price as set out in the building contract (including the land registration date not being met), changes in local, state or federal government laws and developer approval.Land is supplied by developer,land prices and availability are subject to change without notice.Advertised Package Price is based on Metricon's Freedom standard inclusions, any additional inclusions listed, Metricon's preferred siting of the home and the expected land titling date as notified by the developer and is subject to Metricon's price hold expiry date by which the owner must include essential information to Metricon to commence construction, including land title. Package price excludes customer account opening fees, stamp duty on land, legal fees and conveyancing costs including titles and property report. Typical site costs allowance is included in the price, additional site costs may apply if site survey and soil tests indicate footings and site works different to those expected for the location. Additional costs may incur if there are bushfire, wind rating or acoustic requirements. For more information on pricing and inclusions please speak with a Metricon New Home Advisor.
Newfield Real Estate Pty Ltd ACN 159 312 722, Licence number 028051L. VIC Builder's Licence: CDB-U 52967
#For details on our Lifetime structural guarantee and other terms and conditions visit www.metricon.com.au/terms-and-conditions
<State government conditions and eligibility criteria will apply. To see if you qualify visit www.sro.vic.gov.au/first-home-owner.
Price: $716,382

Land Price Trend in Warragul VIC 3820

  • In Oct - Dec 24, the median price for vacant land in Warragul VIC 3820 was $316,700. *
  • From Oct - Dec 17 to Oct - Dec 24, the median price for vacant land in Warragul VIC 3820 has increased 85.2%. *
  • From 2008 to 2024, the median price for vacant land in Warragul VIC 3820 has increased 240.54%. *
* Price data comes from Valuer-General Victoria on 05/06/25

Vacancy Rate in Warragul VIC 3820

View full vacancy rate history in Warragul VIC 3820 via SQM Research.


Schools in Warragul VIC 3820

There are 9 schools registered in on ACARA 2025

Lot 304 Drift Road by Metricon Homes
Drift Road, Warragul VIC 3820
House & Land: 4 Bed | 2 Bath | 2 Car @ $625,602