Lot 5825: Gembrook @ Westbrook Estate - Truganina VIC 3029
- Fixed Site Costs
- 2550mm ceiling height ground floor
- Modern kitchen cooktop, oven and rangehood
- Timber look laminate flooring to main living area, meals, kitchen and entry
- Carpet to bedrooms
- LED Downlights
- Landscaping to front yard
- Wall panel heaters to all bedrooms
- Split system to main living
- 20mm Stone Composite kitchen & bathroom benchtops
- Letterbox
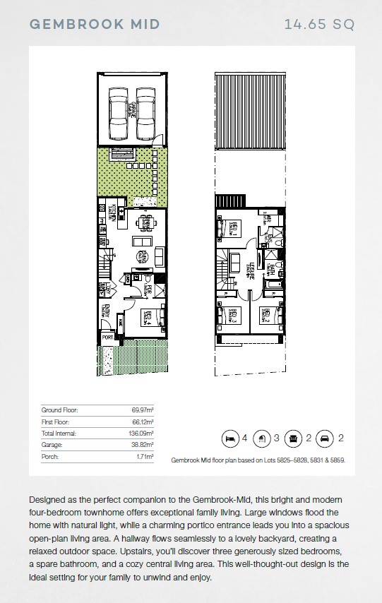
4
2
2
Development Info of Westbrook Estate - Truganina
This information is estimated by the OpenLot research team. Let us know here to provide up-to-date information about this development.
| Total new homes | 4,000 |
| Area size | 314.00 hectares |
| Growth Region | Melbourne West Growth Corridor |
| City council | Wyndham City Council |
| Developer | Dennis Family Corporation |
| Creative agency | Helsinki Agency |
| Other names | Botania Townhomes |
| Distance to | Melbourne Airport - 21 km south-west Melbourne CBD - 23 km west |
Location & Map for Westbrook Estate - Truganina
Visit Display Homes near Westbrook Estate - Truganina
More House and Land Packages in Westbrook Estate - Truganina
Land Price Trend in Truganina VIC 3029
- In Oct - Dec 24, the median price for vacant land in Truganina VIC 3029 was $347,500. *
- From Oct - Dec 17 to Oct - Dec 24, the median price for vacant land in Truganina VIC 3029 has increased 0.72%. *
- From 2008 to 2024, the median price for vacant land in Truganina VIC 3029 has increased 150.72%. *
Vacancy Rate in Truganina VIC 3029
View full vacancy rate history in Truganina VIC 3029 via SQM Research.
Schools near Westbrook Estate - Truganina
Here are 6 schools near Westbrook Estate - Truganina:
Prep-9 Government Combined School
Prep-6 Government Primary School
7-12 Catholic Secondary School
Prep-6 Catholic Primary School
Prep-6 Government Primary School
Prep-9 Government Combined School
Popular Estates near Westbrook Estate - Truganina
Latest New Home Articles for You
27/Jan/2026 | OpenLot.com.au
Display Homes at Stockland Wildflower Estate: A Smart Community in Piara Waters
Welcome to Wildflower, a vibrant new neighbourhood nestled in the heart o...
16/Jan/2026 | OpenLot.com.au
South Australia Top 30 Most Searched Housing Developments (December 2025)
15/Jan/2026 | OpenLot.com.au
Queensland: Top 30 Most Searched Housing Developments (December 2025)
If you’ve been tracking housing demand across Queensland, December 2025 p...
14/Jan/2026 | OpenLot.com.au
Victoria: Top 30 Most Searched Housing Developments (December 2025)
If you’ve been exploring housing opportunities in Victoria, December 2025...
14/Jan/2026 | OpenLot.com.au
Display Homes at Apsley Estate: A Masterplanned Community in Mandogalup
Apsley is a bold, 1,800-lot masterplanned community just 25 minutes south...
13/Jan/2026 | OpenLot.com.au
Western Australia: Top 30 Most Searched Housing Developments (December 2025)
If you’ve been keeping an eye on housing demand across Western Australia,...
12/Jan/2026 | OpenLot.com.au
New South Wales: Top 30 Most Searched Housing Developments (December 2025)
If you’ve been considering making a move in New South Wales, December 202...
07/Jan/2026 | OpenLot.com.au
🏡 Top 30 Most Searched Estates by State - December
06/Jan/2026 | OpenLot.com.au
Display Homes Near Me (WA): Your Complete Guide to Display Villages Across Western Australia
Finding the right display home in Western Australia has never been easier...