Lot 1: @ WM Residences - Mordialloc VIC 3195
North/West Facing | 193m² of Total Space | 3 Levels | 2-Car Garage
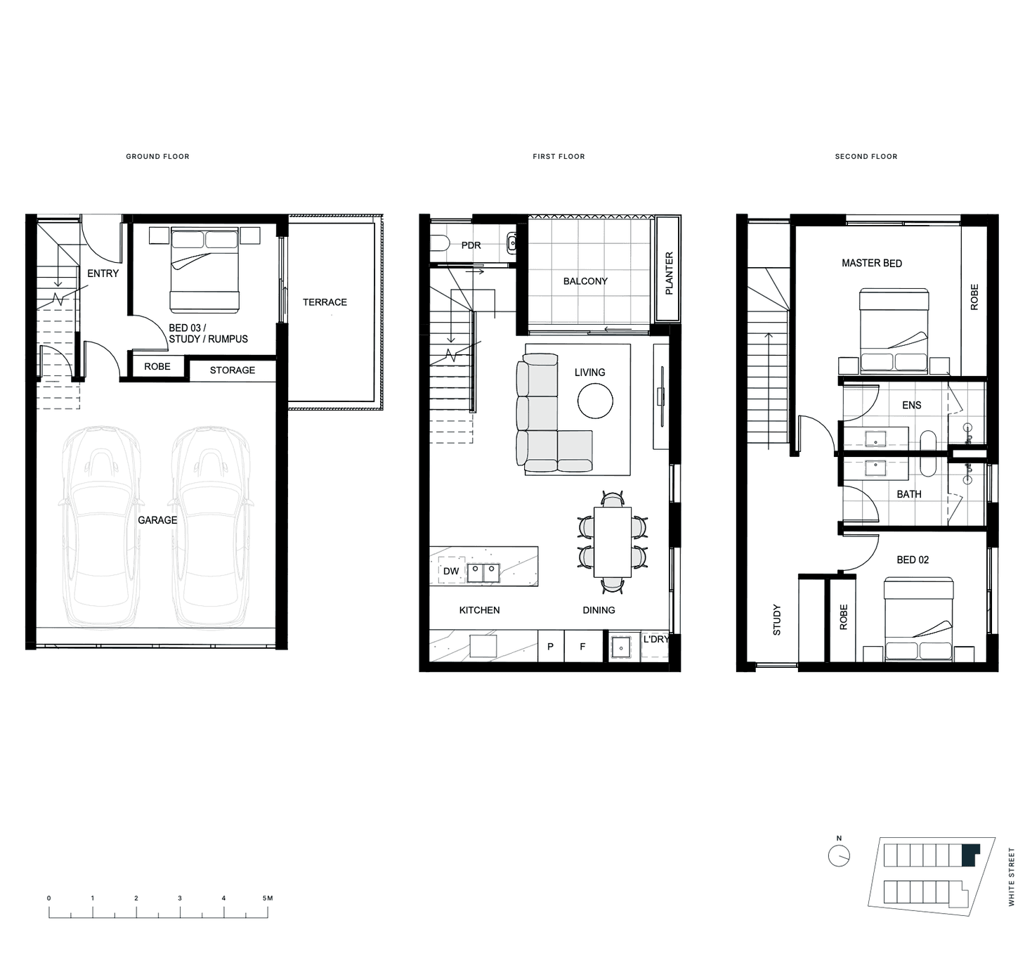
Positioned at the front of the development with exclusive street frontage and its own private pedestrian entrance, TH01 is the signature home in the boutique WM Residences collection — a premium offering of just 13 architect-designed townhomes by Ewert Leaf, delivered by respected developer LDS and proudly built by RISER
This impressive three-level residence is intelligently planned and beautifully appointed, featuring:
Ground Floor
• Private entry from White Street
• Flexible bedroom 3 / study / rumpus room with built-in robe and direct terrace access
• Fully tiled bathroom
• Double lock-up garage with internal access
• Under-stair storage
Level One
• Expansive, open-plan living and dining area
• Designer kitchen with oversized island bench, Bosch appliances,
• Separate laundry and powder room (PDR)
• Sliding doors to north-west facing balcony
Level Two
• Private master suite with walk-in robe and ensuite
• Second bedroom with built-in robe
• Main bathroom with floor-to-ceiling tiling
• Dedicated study nook
Outdoor Areas
• 10m² ground-level terrace — perfect for entertaining or relaxing
• 9m² balcony off the first-floor living area
Every aspect of TH01 has been carefully considered — with zoned living, generous storage, and an abundance of natural light from its corner aspect.
A unique opportunity to own a front-facing, house-like residence in the heart of Mordialloc, moments from the beach, Woodlands Golf Club, local cafés, schools, and transport.
3
3
2
Development Info of WM Residences - Mordialloc
This information is estimated by the OpenLot research team. Let us know here to provide up-to-date information about this development.
| Total new homes | 13 |
| Area size | 0.16 hectares |
| Growth Region | Melbourne South East Growth Corridor |
| City council | Kingston City Council |
| Developer | LDS Property |
| Project marketer | Tomassi & Co |
| Distance to | Melbourne CBD - 24 km south-east Melbourne Airport - 43 km south-east |
Location & Map for WM Residences - Mordialloc
More Townhouses in WM Residences - Mordialloc
Land Price Trend in Mordialloc VIC 3195
- In Jan - Mar 22, the median price for vacant land in Mordialloc VIC 3195 was $478,400. *
- From Oct - Dec 21 to Jan - Mar 22, the median price for vacant land in Mordialloc VIC 3195 has increased 0%. *
- From 2021 to 2021, the median price for vacant land in Mordialloc VIC 3195 has increased 0%. *
Vacancy Rate in Mordialloc VIC 3195
View full vacancy rate history in Mordialloc VIC 3195 via SQM Research.
Schools near WM Residences - Mordialloc
Here are 6 schools near WM Residences - Mordialloc:
Prep-6 Government Primary School
Prep-6 Catholic Primary School
Prep-6 Catholic Primary School
7-12 Government Secondary School
7-12 Government Secondary School
U Government Special School
Popular Estates near WM Residences - Mordialloc
Latest New Home Articles for You
27/Jan/2026 | OpenLot.com.au
Display Homes at Stockland Wildflower Estate: A Smart Community in Piara Waters
Welcome to Wildflower, a vibrant new neighbourhood nestled in the heart o...
16/Jan/2026 | OpenLot.com.au
South Australia Top 30 Most Searched Housing Developments (December 2025)
15/Jan/2026 | OpenLot.com.au
Queensland: Top 30 Most Searched Housing Developments (December 2025)
If you’ve been tracking housing demand across Queensland, December 2025 p...
14/Jan/2026 | OpenLot.com.au
Victoria: Top 30 Most Searched Housing Developments (December 2025)
If you’ve been exploring housing opportunities in Victoria, December 2025...
14/Jan/2026 | OpenLot.com.au
Display Homes at Apsley Estate: A Masterplanned Community in Mandogalup
Apsley is a bold, 1,800-lot masterplanned community just 25 minutes south...
13/Jan/2026 | OpenLot.com.au
Western Australia: Top 30 Most Searched Housing Developments (December 2025)
If you’ve been keeping an eye on housing demand across Western Australia,...
12/Jan/2026 | OpenLot.com.au
New South Wales: Top 30 Most Searched Housing Developments (December 2025)
If you’ve been considering making a move in New South Wales, December 202...
07/Jan/2026 | OpenLot.com.au
🏡 Top 30 Most Searched Estates by State - December
06/Jan/2026 | OpenLot.com.au
Display Homes Near Me (WA): Your Complete Guide to Display Villages Across Western Australia
Finding the right display home in Western Australia has never been easier...