Lot 927 Parklands Estate by Simonds Homes - Wonthaggi

Offers luxury, with well-zoned bedrooms and multiple living areas.

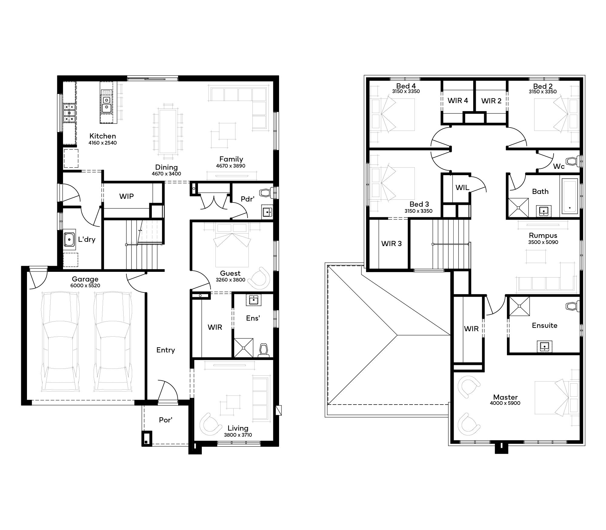
The Armidale 34, a double-storey home ideal for 14m+ blocks, features 5 bedrooms and 3 bathrooms with a 2-car garage. The ground floor boasts an open-plan living area with a large kitchen and walk-in pantry. A guest bedroom with a private ensuite and walk-in wardrobe, plus a spare lounge, provides impressive spaces for hosting. Upstairs, the floor plan includes three bedrooms with walk-in closets, a rumpus room, and a resort-style master suite to ensure relaxation and enjoyment for the entire family.
Simonds Homes
Lot 927 Parklands Estate, Wonthaggi VIC 3995 Available
Bed  5 Bath  3 Car  2
Land Size: 392.00m²
Frontage: 14m
Floor Area: 34.48sq
Price: $749,925

Floor-plan for Lot 927: by Simonds Homes


Location & Map of Wonthaggi

Loading...

More House and Land Packages by Simonds Homes (Home Builder)

Bed  3 Bath  2 Car  2
Land Size: 372.00m²
Frontage: 15m
Depth: 25m
Floor Area: 19.3sq
Thoughtfully designed for comfort, the Alberta offers modern open-plan family living.
Modern Family Living
From the moment you enter the Alberta, a long hallway guides you into a spacious open-plan living area that forms the heart of the home. With two bedrooms positioned around a central bathroom, a private master suite with an ensuite, and a double garage, the Alberta is thoughtfully designed for comfortable and contemporary family living.

Simonds Fixed Price Home & Land Package

Simonds have been Building Homes Since 1949, and every year, help thousands of Australian's realise their dream of owning a brand new home.

In choosing a builder, we believe that each buyer is looking for the best quality, the best service, and the best price.
Whilst it is impossible to have all three, Simonds have built our Fixed Price reputation on great quality and service, for what is often the largest investment in our clients lives.
As a National Builder with large buying power, our homes are very competitively priced, and most importantly, fantastic value for money.

With the transparency of an itemised quotation, a refundable initial deposit, and a Fixed Price contract at the end of the journey, why not enquire with one of the Simonds Sales team today!

This Attractive House and Land Package Includes:

Fixed price Site Costs
Developer & council requirements
Photovoltaic panels with inverter
Feature front entry door
Colorbond Sectional garage door & remote controls
Floor coverings to entire house
20mm Stone benchtops to kitchen
Quality stainless steel cooktop & oven
Towel Rails & Toilet Roll Holders
800mm Laundry Cabinet
Ducted Heating
Plus much more!


All Fixed Price Home and Land packages are subject to Developer and Council approval and is based on Simonds standard floor plan with preferred siting (without alterations). Package Price does not include stamp duty, government, legal or bank charges. Community Infrastructure Levy and Asset Protection Permit are not included in pricing and is to be arranged by the client directly with the Developer (if applicable). Any alterations may incur additional charges. Confirm land price and availability prior to purchase. Simonds reserves the right to withdraw or amend pricing, inclusions and promotion at any time without notice. Please refer to the terms and conditions at www.simonds.com.au/terms-and-conditions. This package applies to VIC - Aspirations range only. Please speak with your sales consultant for further details. Pricing is current at 15/03/2026.

Facade & Internal images are taken from a similar Simonds display home and are for illustration purposes only. Please talk to your sales consultant for more details
Price: $714,019

Land Price Trend in Wonthaggi VIC 3995

  • In Oct - Dec 24, the median price for vacant land in Wonthaggi VIC 3995 was $269,000. *
  • From Oct - Dec 17 to Oct - Dec 24, the median price for vacant land in Wonthaggi VIC 3995 has increased 90.11%. *
  • From 2008 to 2024, the median price for vacant land in Wonthaggi VIC 3995 has increased 129.79%. *
* Price data comes from Valuer-General Victoria on 05/06/25

Vacancy Rate in Wonthaggi VIC 3995

View full vacancy rate history in Wonthaggi VIC 3995 via SQM Research.


Schools in Wonthaggi VIC 3995

There are 5 schools registered in on ACARA 2025

Lot 927 Parklands Estate by Simonds Homes
Parklands Estate, Wonthaggi VIC 3995
House & Land: 5 Bed | 3 Bath | 2 Car @ $749,925