Lot Beachside by Stylemaster Homes - Yaroomba

My Serenity 300

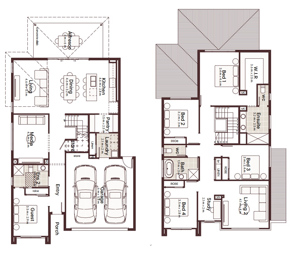
Discover your dream home with this beautifully designed Double Storey House and Land Package from our exclusive My Dream Collection. Thoughtfully crafted for modern living, The My Serenity 300 combines elegant design, quality finishes, and everyday functionality – the perfect balance of luxury and practicality across two spacious levels.

This package offers exceptional value with premium inclusions that make moving in effortless and enjoyable.

Package Highlights:
• Luxury European Kitchen Appliances
• Air Conditioning for Year-Round Comfort
• Stone Benchtops Throughout
• Truecore Steel Frame & Colorbond Roof
• Quality Carpet and Tiles Throughout
• 2.5kW Solar System
• 2570mm Ceiling Height to Ground Floor

Designed for growing families and modern lifestyles, The My Serenity offers open-plan living, light-filled interiors, and carefully zoned spaces that provide the perfect mix of connection and privacy. With thoughtful design and premium inclusions throughout, this home delivers true style, quality, and value in one complete package.
Stylemaster Homes
Lot Beachside, Yaroomba QLD 4573 Available
Bed  5 Bath  3 Car  2
Land Size: 480.00m²
Floor Area: 300m²
Price: $1,765,525

Location & Map of Yaroomba

Loading...

More House and Land Packages by Stylemaster Homes (Home Builder)

Bed  4 Bath  2 Car  2
Land Size: 568.00m²
Floor Area: 235m²
Baybreeze 25

Welcome to your future grounded in elegance.
This Premier Single Storey House & Land Package showcases our top-tier design and inclusions, offering a refined living experience for discerning homeowners who value sophistication, comfort, and effortless functionality.

Our Premiere Collection of single storey homes features pre-drawn design variations and premium inclusions, with flexibility for personal customisation—ensuring your home is uniquely yours.

Premiere Inclusions & Features
• Luxury Miele Kitchen Appliances
• Ducted Air Conditioning
• 40mm Stone to Kitchen Island
• Truecore Steel Frame & Colorbond Roof
• Carpet and Tiles throughout
• 2590mm Ceiling Height throughout
• Exposed Aggregate Driveway

This single storey design is thoughtfully crafted to suit modern family living—with generous open-plan spaces, a private master suite with ensuite and walk-in robe, and seamless indoor-outdoor flow for entertaining. Every detail reflects timeless design, comfort, and quality.


Located on the southern end of the stunning Sunshine Coast near beautiful beaches, home to award winning parks and state-of-the-art facilities, Aura is a blossoming coastal city.

The Avenues, bordered by the Northern Bells Creek Conservation Area and surrounded by native trees, offers the very best of Aura living combined with a secluded serenity and exclusivity all of its own.
Price: $1,314,367
Bed  4 Bath  2 Car  2
Land Size: 6,000.00m²
Floor Area: 344m²
Maleny 344

Welcome to your future grounded in elegance.
This Premier Single Storey House & Land Package showcases our top-tier design and inclusions, offering a refined living experience for discerning homeowners who value sophistication, comfort, and effortless functionality.

Our Premiere Collection of single storey homes features pre-drawn design variations and premium inclusions, with flexibility for personal customisation—ensuring your home is uniquely yours.

Premiere Inclusions & Features
• Luxury Miele Kitchen Appliances
• Ducted Air Conditioning
• 40mm Stone to Kitchen Island
• Truecore Steel Frame & Colorbond Roof
• Carpet and Tiles throughout
• 2590mm Ceiling Height throughout
• Exposed Aggregate Driveway

This single storey design is thoughtfully crafted to suit modern family living—with generous open-plan spaces, a private master suite with ensuite and walk-in robe, and seamless indoor-outdoor flow for entertaining. Every detail reflects timeless design, comfort, and quality.


In the scenic hills of Samford Valley, the prestigious community of Samford Rise offers peaceful acreage living in one of Brisbane’s most sought-after locations and only a 15 to 20 minute walk to the heart of Samford Village.

Spectacular sweeping views and adjoining 250ha Brian Burke Reserve Samford Rise is a boutique new development set in a prime Samford Valley position, surrounded by luxury homes, the 250ha Brian Burke Reserve, across the road from the South Pine River and close to all essential amenities including shops, schools and a sporting facilities.
Price: $2,165,525

Vacancy Rate in Yaroomba QLD 4573

View full vacancy rate history in Yaroomba QLD 4573 via SQM Research.


Schools in Yaroomba QLD 4573

There are 0 schools registered in on ACARA 2025

Lot Beachside by Stylemaster Homes
Yaroomba QLD 4573
House & Land: 5 Bed | 3 Bath | 2 Car @ $1,765,525